Appartamento
Asta
Asta Appartamento

Appartamento

Via venezia, Monteroni di Lecce, Lecce

115.875 €
527
mq
5+
Locali

Recensisci questo Immobile

Devi essere registrato per lasciare una recensione.

Accedi

Nessuna recensione ancora. Sii il primo!

Descrizione

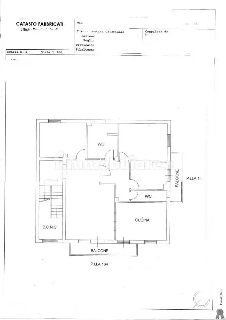
Piena proprietà abitazione al piano terra e piano primo composta a piano terra da vano scala e studio, a piano primo da soggiorno, cottura-pranzo, bagno, n. 3 letto, w.c., lavanderia, ripostiglio, zona lettura, disimpegno e terrazza a livello retrostante

***IMMOBILE ALL’ASTA VISITABILE ATTRAVERSO LA NOSTRA AGENZIA SENZA IMPEGNO NE COSTI***

Risparmiare su un immobile non è mai stato così facile! Affidati a Professionisti competenti che analizzeranno minuziosamente tutta la documentazione presso i tribunali. Chiedi subito un appuntamento presso i nostri uffici a Monopoli!

TierrApulia Consulting & Management è l’unica azienda a livello nazionale con documentazione dimostrabile in ogni tipo di operazione d’asta che possiede un Team di Esperti Legali e Commerciali a completa disposizione della clientela. Siamo affiliati Gardemar, società leader nel settore delle aste giudiziarie, Saldo e Stralcio, NPL e proposte di acquisto direttamente all’Ente creditore.

Comprare un immobile all’asta è una eccellente opportunità economica! Con Noi tutto il processo sarà facile e fluido, permettendoti di partecipare alle aste immobiliari di tuo interesse senza errori e senza intoppi.

Le nostre tariffe sono chiare, oneste, fisse e le più competitive sul mercato. Vieni a conoscerci di persona a Monopoli e richiedi subito la visita dell’immobile!

Possibilità di mutuo anche se l’immobile è all’asta.

TierrApulia Consulting & Management offre i seguenti servizi:

* Consulenza: appuntamento presso i nostri uffici per offrire chiarimenti sulle aste, ascoltare le vostre esigenze immobiliari e guidarvi anche per la visita dell’immobile;
* Mediazione creditizia: servizio esclusivo con studio di fattibilità, mutuo fino al 100% e agevolazioni Prima Casa;
* Assistenza tecnico-legale:
* Disbrigo pratiche per la partecipazione alle aste giudiziarie di interesse e proposta di immobili similari;
* Studio di tutta la documentazione, accertamenti catastali per eventuali abusi edilizi e gestione delle pratiche di sanatoria;
* Accompagnamento alla visita dell’immobile e/o rappresentanza il giorno della vendita;
* Assistenza per il saldo del prezzo e di tutti gli adempimenti, durante la consegna dell’immobile e rilascio celere del decreto di trasferimento.

Per ulteriori informazioni utilizza il modulo di contatto o chiamaci!

NB: Le immagini dei nostri annunci sono reali dell’immobile e sono prese dai portali dei Tribunali, se disponibili sui portali delle vendite. Vengono inoltre aggiunte anche delle immagini di rendering dalla nostra AI per dare una idea di progetti realizzabili negli ambienti dell’immobile annunciato.
TierrApulia Consulting & Management
Contatti:
+39 371 7878 915
+34 722 701188
tierrapulia@gmail.com

Caratteristiche

Ascensore No
Riscaldamento Assente

Posizione

Storico

Pubblicato 02 Jan 2026
Aggiornato 15 Feb 2026
Sul mercato 51 giorni
ID Annuncio 124925715

Recensioni

Vedi tutte
D

Davide Furlan

4.7

Stavo cercando un appartamento in zona Barletta per i miei figli universitari e ho trovato subito molta disponibilità e professionalità. L'agenzia è stata veloce nel rispondere alle mie richieste e si...

T

Tito Gallo

5.0

Ho trovato facilmente la casa perfetta grazie all’ampia scelta di immobili e alla gestione professionale della trattativa. Mi sono sentito seguito passo dopo passo, senza stress, durante tutto il proc...