Appartamento all'asta via Crocifisso, 74026 Pulsano Italia, Pulsano
Asta
Asta Appartamento

Appartamento all'asta via Crocifisso, 74026 Pulsano Italia, Pulsano

Via Crocifisso, 74026 Pulsano TA, Italia, Pulsano, Taranto

120.866 €
116
mq
5+
Locali
8
Camere

Recensisci questo Immobile

Devi essere registrato per lasciare una recensione.

Accedi

Nessuna recensione ancora. Sii il primo!

Descrizione

Asta appartamento a Pulsano (TA) [SY597988]
Via Crocifisso, 74026 Pulsano TA, Italia
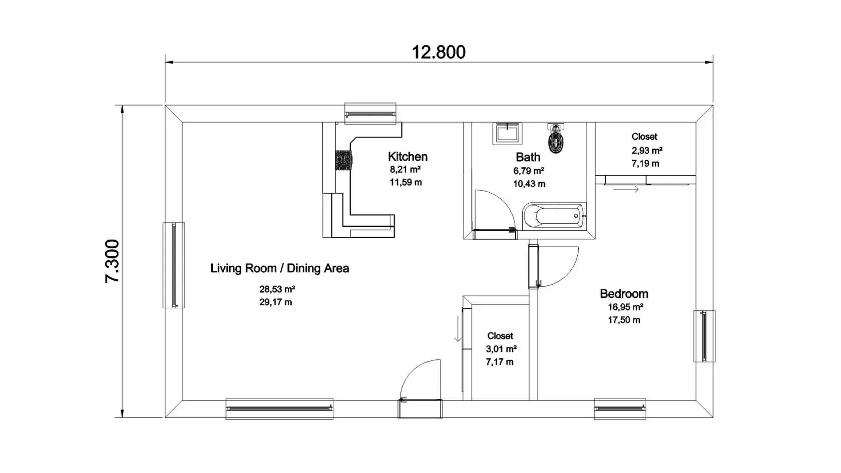
Appartamento con due ingressi pedonali prospicienti la Via Crocifisso e la Via Paolucci, piano terra e 1^piano. Il piano terra composto da ingresso, soggiorno, sala pranzo, cucina, studio, bagno e 2 ripostigli; Il 1^piano composto da 2 camere da letto e bagno.

Proposta immobiliare in asta. Info dettagliate in agenzia o telefonicamente.

Possibilita’ di Mutuo al 100%

Per maggiori informazioni puoi contattare il nostro referente di zona

SU QUESTO IMMOBILE E’ POSSIBILE:

- Mutuo al 100%
- Visita Interni
- NO Oneri Notarili
- Nessuna Ipoteca
- Agevolazione Prima Casa

Le foto pubblicate potrebbero non corrispondere all'immobile specifico, i documenti ufficiali sono visionabili in filiale.

CENTRO ASTE OFFRE I SEGUENTI SERVIZI:

1. PRIMA CONSULENZA
Appuntamento presso una delle 50 Filiali in Italia per offrire chiarimenti sulle aste ed ascoltare le tue esigenze immobiliari.

2. MEDIAZIONE CREDITIZIA
Servizio esclusivo ad alto valore aggiunto, proponendo un ventaglio di prodotti tra i più completi con studio fattibilità per la partecipazione in asta con mutuo fino al 100%

3. ASSISTENZA TECNICO - LEGALE
- Ricerca Immobili ed invio settimanale per email
- Studio della perizia e della documentazione
- Accertamenti catastali per eventuali abusi edilizi
- Accompagnamento Visita Immobile
- Disbrigo pratiche per la partecipazione
- Rappresentanza Legale il giorno della vendita
- Rilascio del decreto di trasferimento in tempi brevi
- Assistenza per il Saldo Prezzo
- Compilazione F24 per Tasse
- Disbrigo Pratiche per Eventuale Sanatoria
- Assistenza alla Consegna Immobile

Per maggiori informazioni puoi contattare il nostro referente di zona
Data Asta: 13-01-2026
Codice Riferimento: SY597988

Caratteristiche

Piano Piano terra
Ascensore No
Stato Buono / Abitabile
Riscaldamento Autonomo

Servizi e accessori

Impianto di allarme Cancello elettrico Cucina Impianto tv con parabola satellitare

Posizione

Referente

Roberta Dongiovanni

Storico

Pubblicato 03 Jan 2026
Aggiornato 14 Feb 2026
Sul mercato 48 giorni
ID Annuncio 124937951

Recensioni

Vedi tutte
G

Gabriella Bellini

4.7

Ho trovato l’ufficio perfetto per la mia attività in poco tempo, grazie alla professionalità e alla flessibilità dell'agenzia negli orari di visita. Sono stata seguita passo passo, con grande attenzio...

G

Gabriele Pasquale

4.7

Appena sono entrato in agenzia, sono stato colpito dalla cura con cui hanno preparato tutta la documentazione, rendendo il processo davvero semplice e trasparente. Mi hanno seguito passo dopo passo, d...