Appartamento
Asta
Asta Appartamento

Appartamento

CORSO SAN GIUSEPPE , 23, Leonessa, Rieti

35.595 €
Ottimo Affare: 25% sotto la media
197
mq
5+
Locali

Recensisci questo Immobile

Devi essere registrato per lasciare una recensione.

Accedi

Nessuna recensione ancora. Sii il primo!

Descrizione

Leonessa CORSO SAN GIUSEPPE 23
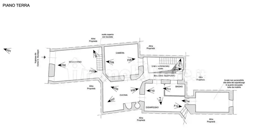
Abitazione civile distribuita su più livelli in aggregato edilizio in centro storico del capoluogo leonessa, di cinque piani totali, di cui uno seminterrato ed uno di sottotetto. l'ingresso principale all'appartamento avviene da portone posto sulla centrale corso san giuseppe, mentre al piano semiterrato vi è un secondo ingresso tramite portone posto su via durante dorio, quindi entrami gli accessi sono raggiungibili direttamente dalla via pubblica.
DATA DELL’ASTA IL 2 FEBBRAIO
Lo studio legale è specializzato nell'assistere privati e aziende nelle procedure di acquisto o vendita di beni all'asta giudiziaria. Lo studio offre consulenza e assistenza legale in tutte le fasi, dalla valutazione dell'immobile all'assistenza durante l'asta e per gli adempimenti post-aggiudicazione; dall'analisi della perizia, alla formulazione dell'offerta e l’ immissione in possesso dell'immobile.
Gestiamo la totalità di immobili ai prezzi più interessanti su tutti i 140 tribunali civili italiani ovunque ubicati.
Affianchiamo i nostri assistiti in ogni fase del processo, con competenza, trasparenza e strategie su misura per trasformare ogni asta in un acquisto sicuro e conveniente.
DI NICCOLO & PARTNERS Via Federico Cesi, 72 - 00193 Roma
paolodiniccolo*studiolegaleastegiudiziarie it - 380. 123. 6912
vincenzodiniccolo*studiolegaleastegiudiziarie it - 339. 158. 2941
francescodiniccolo*studiolegaleastegiudiziarie it - 327. 861. 5128

Caratteristiche

Piano Piano terra, con ascensore
Ascensore Si
Stato Buono / Abitabile
Riscaldamento Centralizzato

Servizi e accessori

Porta blindata

Posizione

Storico

Pubblicato 01 Jan 2026
Aggiornato 15 Feb 2026
Sul mercato 50 giorni
ID Annuncio 124953121

Recensioni

Vedi tutte
E

Elia Visco

4.7

Durante il processo di acquisto della mia seconda casa al mare sono stato molto tranquillo, grazie alla gestione efficiente della burocrazia e al supporto costante. La trattativa è stata gestita senza...

S

Silvano Villa

4.7

Devo dire che questa agenzia si è rivelata super affidabile e molto flessibile con gli orari, il che per me è stato fondamentale. Ho finalmente trovato la casa che cercavo dopo anni di affitto e sono...

T

Tullio Pasquale

4.7

Ho trovato l’agenzia molto professionale e disponibile. Mi hanno seguito passo dopo passo nelle visite e sono stati sempre pronti ad aiutarmi con ogni domanda. Anche dopo aver firmato il contratto, ha...

U

Ugo Capasso

4.7

Stavo cercando un magazzino a Roma per la mia azienda e ho trovato questa agenzia che ha saputo ascoltarmi e aiutarmi a trovare la soluzione giusta. Sono stato molto colpito dalla loro puntualità negl...

V

Vito Testa

4.0

Dopo aver provato diverse agenzie in passato, posso dire che questa è stata davvero una scoperta speciale. Mi sono sentito seguito con grande trasparenza e tutte le proposte sono state presentate con...