Appartamento
Asta
Asta Appartamento

Appartamento

Contrada S. Basilio, 75015 Pisticci MT, Italia, Pisticci, Matera

79.912 €
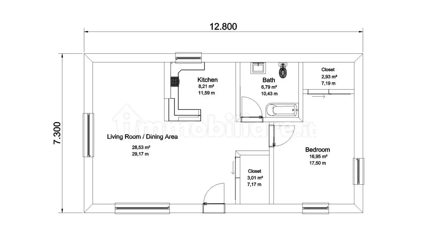
92
mq
5
Locali
5
Camere

Recensisci questo Immobile

Devi essere registrato per lasciare una recensione.

Accedi

Nessuna recensione ancora. Sii il primo!

Descrizione

Asta appartamento a Pisticci (MT) [SY598311]
Contrada S. Basilio, 75015 Pisticci MT, Italia
Piena proprietà dell’abitazione sita in Contrada San Basilio di Pisticci, Borgo San Basilio, Sobborgo degli Ulivi, scala B, interno 3, piano 2
Il villaggio turistico "Borgo San Basilio" di Marina di Pisticci è composto da 9 sobborghi ciascuno
dotato di piscina e solarium, immersi nel verde condominiale ad uso esclusivo degli ospiti. Nello
specifico l'immobile staggito appartiene al sobborgo denominato "degli Ulivi 1" a N-E del villaggio.
Al centro del villaggio c'è un grande parco con l'anfiteatro per gli spettacoli teatrali e musicali organizzati dall'amministrazione condominiale, oltre un periptero utilizzato per i tornei e i giochi
all'aperto. All'esterno del borgo un centro sportivo con campi da calcetto e da tennis oltre un piccolo centro commerciale.

Proposta immobiliare in asta. Info dettagliate in agenzia o telefonicamente.

Possibilita’ di Mutuo al 100%

Per maggiori informazioni puoi contattare il nostro referente di zona

SU QUESTO IMMOBILE E’ POSSIBILE:

- Mutuo al 100%
- Visita Interni
- NO Oneri Notarili
- Nessuna Ipoteca
- Agevolazione Prima Casa

Le foto pubblicate potrebbero non corrispondere all'immobile specifico, i documenti ufficiali sono visionabili in filiale.

CENTRO ASTE OFFRE I SEGUENTI SERVIZI:

1. PRIMA CONSULENZA
Appuntamento presso una delle 50 Filiali in Italia per offrire chiarimenti sulle aste ed ascoltare le tue esigenze immobiliari.

2. MEDIAZIONE CREDITIZIA
Servizio esclusivo ad alto valore aggiunto, proponendo un ventaglio di prodotti tra i più completi con studio fattibilità per la partecipazione in asta con mutuo fino al 100%

3. ASSISTENZA TECNICO - LEGALE
- Ricerca Immobili ed invio settimanale per email
- Studio della perizia e della documentazione
- Accertamenti catastali per eventuali abusi edilizi
- Accompagnamento Visita Immobile
- Disbrigo pratiche per la partecipazione
- Rappresentanza Legale il giorno della vendita
- Rilascio del decreto di trasferimento in tempi brevi
- Assistenza per il Saldo Prezzo
- Compilazione F24 per Tasse
- Disbrigo Pratiche per Eventuale Sanatoria
- Assistenza alla Consegna Immobile

Per maggiori informazioni puoi contattare il nostro referente di zona
Data Asta: 03-02-2026
Codice Riferimento: SY598311

Caratteristiche

Piano
Ascensore No
Stato Buono / Abitabile
Riscaldamento Autonomo

Servizi e accessori

Impianto di allarme Cancello elettrico Cucina Piscina Impianto tv con parabola satellitare Giardino comune

Posizione

Referente

Roberta Dongiovanni

Storico

Pubblicato 02 Jan 2026
Aggiornato 15 Feb 2026
Sul mercato 48 giorni
ID Annuncio 124997845

Recensioni

Vedi tutte
G

Gabriella Bellini

4.7

Ho trovato l’ufficio perfetto per la mia attività in poco tempo, grazie alla professionalità e alla flessibilità dell'agenzia negli orari di visita. Sono stata seguita passo passo, con grande attenzio...

G

Gabriele Pasquale

4.7

Appena sono entrato in agenzia, sono stato colpito dalla cura con cui hanno preparato tutta la documentazione, rendendo il processo davvero semplice e trasparente. Mi hanno seguito passo dopo passo, d...