Appartamento
Asta
Asta Appartamento

Appartamento

Via Legnano, 88/21, 76012 Canosa di Puglia BT, Italia, Canosa di Puglia, Barletta-Andria-Trani

73.635 €
195
mq
5+
Locali
8
Camere

Recensisci questo Immobile

Devi essere registrato per lasciare una recensione.

Accedi

Nessuna recensione ancora. Sii il primo!

Descrizione

Asta appartamento a Canosa di Puglia (BT) [SY496612]
Via Legnano, 88/21, 76012 Canosa di Puglia BT, Italia
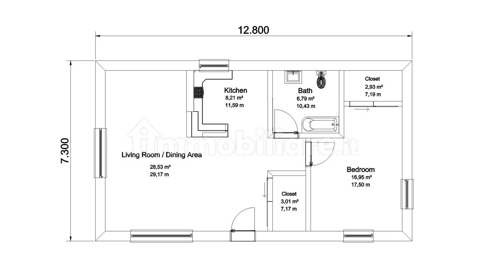
Piena proprietà per la quota di 1000/1000 dell’appartamento ubicato in Canosa di Puglia (BT) alla via Legnano n. 88/A e n. 88/B e del box auto ubicato in Canosa di Puglia (BT) alla via Legnano n. 88/C
L'appartamento, ubicato al piano terra e distinto dal numero interno 1, è parte di un edificio condominiale
realizzato negli anni 2007-2012. Detto appartamento, prospiciente via Legnano, si caratterizza per la presenza
di due distinti ingressi individuati ciascuno da un diverso numero civico. Trattasi di un ingresso indipendente
distinto dal numero 88/A e di un ingresso condominiale distinto dal numero 88/B, entrambi prospicienti la
predetta via. L'appartamento si compone di tre vani oltre accessori ed è dotato di due pertinenze scoperte
esclusive, l'una di superficie netta pari a mq. 21,65 e avente accesso dalla pubblica via nonché antistante la zona
giorno, l'altra di superficie netta pari a mq. 195,62 e accessibile dal solo vano cucina mediante il superamento
di una comoda scala costituita da tre scalini nonché antistante la zona notte. In particolare, superata la
pertinenza scoperta avente ingresso esclusivo dal cancello prospiciente via Legnano n. 88/A, mediante la porta
d'ingresso all'appartamento, ci s'immette nell’ampio vano destinato a soggiorno/pranzo direttamente collegato
al vano cucina. In detto vano insiste anche il secondo ingresso all’appartamento avente accesso dal pianerottolo
di distribuzione condominiale che a sua volta ha ingresso dal civico n. 88/B di via Legnano.
La zona notte è separata dalla zona giorno ed ha accesso da una porta scorrevole interno muro posta in
adiacenza al vano cucina. Detta porta immette nel corridoio di distribuzione dei vani letto 1, letto 2, bagno 1,
ripostiglio e bagno 2, come denominati nel rilevo metrico (Cfr. Allegato 2: Tav. 2) in virtù delle destinazioni
rilevate sui luoghi.
Tutti i vani, ad eccezione del ripostiglio, sono provvisti di porta finestra e/o finestra. Si precisa che le finestre
insistenti in entrambi i bagni sono luci legali tanto che prospicono sulle altre proprietà adiacenti all’immobile.
L’appartamento sviluppa una superficie commerciale di mq. 138,27 ed ha un’altezza utile di m. 2,68 ad
eccezione del vano cucina-soggiorno-pranzo che misura un’altezza di m. 2,57 a seguito della realizzazione di
una controsoffittatura per l’alloggiamento delle luci
Proposta immobiliare in asta. Info dettagliate in agenzia o telefonicamente.

Possibilita’ di Mutuo al 100%

Per maggiori informazioni puoi contattare il nostro referente di zona

SU QUESTO IMMOBILE E’ POSSIBILE:

- Mutuo al 100%
- Visita Interni
- NO Oneri Notarili
- Nessuna Ipoteca
- Agevolazione Prima Casa

Le foto pubblicate potrebbero non corrispondere all'immobile specifico, i documenti ufficiali sono visionabili in filiale.

CENTRO ASTE OFFRE I SEGUENTI SERVIZI:

1. PRIMA CONSULENZA

Caratteristiche

Piano Piano terra
Ascensore No
Stato Buono / Abitabile
Riscaldamento Autonomo

Servizi e accessori

Cucina Impianto tv con parabola satellitare

Posizione

Referente

Roberta Dongiovanni

Storico

Pubblicato 26 Dec 2025
Aggiornato 15 Feb 2026
Sul mercato 57 giorni
ID Annuncio 124997919

Recensioni

Vedi tutte
G

Gabriella Bellini

4.7

Ho trovato l’ufficio perfetto per la mia attività in poco tempo, grazie alla professionalità e alla flessibilità dell'agenzia negli orari di visita. Sono stata seguita passo passo, con grande attenzio...

G

Gabriele Pasquale

4.7

Appena sono entrato in agenzia, sono stato colpito dalla cura con cui hanno preparato tutta la documentazione, rendendo il processo davvero semplice e trasparente. Mi hanno seguito passo dopo passo, d...