Villa
Asta
Asta Villa

Villa

73050 Torre Pali LE, Italia, Salve, Lecce

190.076 €
1419
mq
5+
Locali
6
Camere

Recensisci questo Immobile

Devi essere registrato per lasciare una recensione.

Accedi

Nessuna recensione ancora. Sii il primo!

Descrizione

Asta villa a Salve, loc. TORRE PALI (LE) [SY599413]
73050 Torre Pali LE, Italia
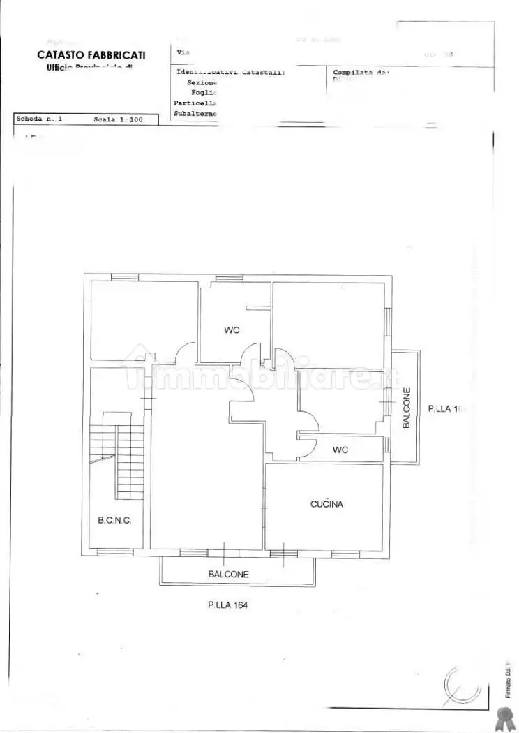
Villa sita in Salve (Le), località Torre Pali, della superficie complessiva di mq 1.419,75. Secondo perizia, salvo errori od omissioni, l'immobile risulta stimato per un valore di euro 303.875,00.
La villa, comprensiva di box auto (mq 27) e giardino pertinenziale (mq 1.178), si compone di zona giorno con soggiorno- pranzo, cucina, disimpegno, due camere da letto e due bagni, oltre ampia veranda (mq 218). Il presente annuncio è un estratto meramente indicativo. Alcune immagini potrebbero essere dimostrative. Le informazioni potrebbero contenere degli errori dovuti ai software utilizzati. La procedura potrebbe essere sospesa od estinta nei termini di legge. L’aggiornamento potrebbe non essere immediato. Eventuali segnalazioni in merito saranno evase con priorità alta e comunicate all’ufficio amministrativo o al dipartimento legale. I dati riportati vanno sempre verificati con gli atti ufficiali, attraverso gli organi e gli ausiliari della procedura a ciò preposti istituzionalmente. Si declina ogni tipo di responsabilità per un uso diverso e/o improprio delle presenti note e dei relativi dati in esse contenuti. Centro Aste è una società leader nazionale nel settore della consulenza in aste giudiziarie (pre-aste, saldi e stralci ed NPL), estranea agli organi della procedura e pertanto priva di qualsivoglia conflitto di interesse. Per maggiori informazioni utilizzare i contatti indicati. La risposta avverrà nelle ore ufficio, festivi esclusi.

Data Asta: 27-02-2026
Codice Riferimento: SY599413

Caratteristiche

Piano 2° piano
Ascensore No
Stato Buono / Abitabile
Riscaldamento Autonomo
Garage 1 in box privato/box in garage

Servizi e accessori

Impianto tv con parabola satellitare Giardino privato

Posizione

Storico

Pubblicato 03 Jan 2026
Aggiornato 14 Feb 2026
Sul mercato 50 giorni
ID Annuncio 125036287

Recensioni

Vedi tutte
M

Mario Magnani

5.0

Ho appena comprato la mia prima casa a Lecce grazie a un team molto disponibile e cortese. La gestione della trattativa è stata fluida e senza stress, grazie alla loro professionalità e attenzione ai...

R

Rocco Costa

4.7

Durante il mio percorso di acquisto della seconda casa al mare, mi sono sentito subito seguito da professionisti affidabili e disponibili, che hanno reso tutto il processo molto più semplice e rassicu...