Vendita Appartamento Luxury

Appartamento via Marconi, Marconi, Bologna

VIA MARCONI, Bologna, Bologna

780.000 €
152
mq
5
Locali
2
Bagni

Recensisci questo Immobile

Devi essere registrato per lasciare una recensione.

Accedi

Nessuna recensione ancora. Sii il primo!

Descrizione

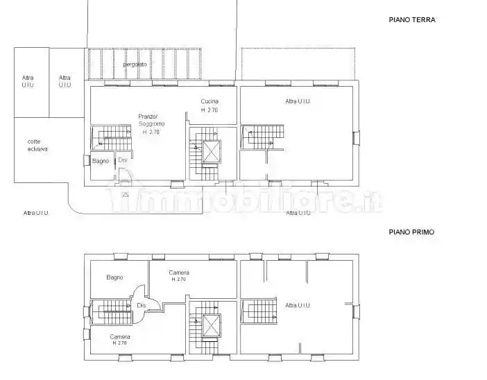
Nel cuore della città di Bologna all’interno di un elegante palazzo del 1958, proponiamo in vendita una residenza panoramica di 152 mq caratterizzata da spazi generosi, luce naturale in ogni ambiente e finiture curate. L’appartamento, oggetto di una ristrutturazione completa nel 2005, si apre su un ingresso impreziosito da controsoffitti con illuminazione integrata che introducono alla zona giorno: ampio soggiorno doppio con pavimenti in marmo, librerie su misura e grandi finestre panoramiche, affiancato da una cucina abitabile, tutto servito da un bagno finestrato con materiali neutri e di qualità. La zona notte è composta da una camera matrimoniale con bagno en suite. Seconda camera, attualmente utilizzata come studio. La sala, grazie all’ampiezza, offre la possibilità di ricavare una terza camera senza compromettere l’equilibrio complessivo dell’abitazione. Completano la proprietà un balcone con affaccio interno e una spaziosa cantina al piano interrato. L’immobile è dotato di impianto di climatizzazione, infissi in legno con vetrocamera, pavimenti in parquet nelle camere e in marmo nella zona giorno. Il palazzo, con portineria attiva l'intera giornata, ha deliberato il rifacimento dell’ascensore con abbattimento delle barriere architettoniche e il restauro della facciata interna: entrambi gli interventi sono già stati pagati dalla proprietà.

Caratteristiche

Piano
Riscaldamento Assente

Posizione

Zona: Marconi (Centro)

Storico

Pubblicato 30 Dec 2025
Disattivato 27 Feb 2026
Sul mercato 58 giorni
ID Annuncio 125096377

Recensioni

Vedi tutte
E

Enzo Costantini

5.0

Ricordo ancora il momento in cui ho visto la casa dei miei sogni e subito ho sentito che fosse quella giusta. Grazie alla cortesia e alla pazienza dello staff, che mi ha accompagnato con professionali...

E

Enrico Rossetti

4.3

Ho trovato l’ufficio perfetto per la mia attività grazie a questa agenzia, che si è dimostrata davvero competente e disponibile. Mi ha seguito passo dopo passo, spiegandomi bene tutte le normative e m...