Vendita Appartamento

Trilocale nuovo, piano terra, Acquaviva Picena

Acquaviva Picena, Ascoli Piceno

Prezzo
75
mq
3
Locali
2
Camere
1
Bagni

Recensisci questo Immobile

Devi essere registrato per lasciare una recensione.

Accedi

Nessuna recensione ancora. Sii il primo!

Descrizione

Appartamento in contesto residenziale, in vendita nelle Marche, in provincia di Ascoli Piceno, nel comune di Acquaviva Picena, posto al piano terra di palazzina di nuova costruzione.
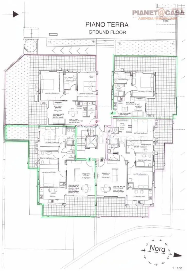
L'appartamento, di mq 46 coperti, è composto da: ingresso su soggiorno con cucina a vista, disimpegno, bagno finestrato con doccia, camera matrimoniale e studio.
Completano la proprietà una corte/terrazza abitabile, con accesso dal soggiorno e dalla camera da letto, per totali mq 50, oltre a cantina e posto auto ad uso esclusivo.
Realizzato secondo le ultime normative antisismiche, l'appartamento presenta tutte le nuove tecnologie di costruzione e di risparmio energetico, dal cappotto termico al riscaldamento a pavimento, con sistema integrato a pompa di calore per riscaldamento, acqua calda sanitaria ed eventuale aggiunta di raffrescamento (classe energetica A2)
Ideale per chi vuole vivere in un contesto tranquillo, ai piedi di un borgo medioevale ed a soli 10 minuti di macchina dalle bellissime spiagge della Riviera delle Palme.
Interno 3 su planimetria

Per INFO: Agenzia immobiliare Pianeta Casa - Via A. De Gasperi, 4 - Pagliare del Tronto (AP) - Cell. 388.3581930

Caratteristiche

Piano Piano terra, con ascensore
Ascensore Si
Stato Nuovo / In costruzione
Riscaldamento Autonomo
Garage 1 in parcheggio/garage comune

Servizi e accessori

Videocitofono Accesso per disabili Terrazzo Impianto tv centralizzato Cantina

Posizione

Storico

Pubblicato 25 Dec 2025
Aggiornato 31 May 2026
Sul mercato 157 giorni
ID Annuncio 125117741

Recensioni

Vedi tutte
R

Ruggero Bertini

4.7

Le mie esperienze precedenti con agenzie immobiliari erano state poco soddisfacenti, ma questa volta ho trovato un team competente e disponibile. Hanno un’ampia scelta di immobili e sono riusciti a se...

R

Renzo Prandini

4.7

Ho trovato facilmente il magazzino ideale grazie all’ampia scelta di immobili e all’attenzione alle mie esigenze. L’agenzia è stata molto disponibile e mi ha seguito passo dopo passo, rendendo tutto i...

A

Alessandro Melandri

4.7

Durante il processo di affitto del magazzino mi sono sentito tranquillo e ben seguito, grazie all’efficienza nella gestione burocratica e alla professionalità dimostrata. L’agenzia si è rivelata affid...

C

Cesare Franca

4.3

Grazie di cuore per l'ottimo supporto! Sono stato davvero colpito dalla rapidità con cui hanno trovato l’ufficio perfetto per la mia attività, accompagnandomi durante tutte le visite con grande profes...