Vendita Appartamento

Appartamento

Via Giuseppe Albini, 4, Tradate, Varese

145.000 €
60
mq
2
Locali
1
Camere
1
Bagni

Recensisci questo Immobile

Devi essere registrato per lasciare una recensione.

Accedi

Nessuna recensione ancora. Sii il primo!

Descrizione

In una posizione strategica di Tradate, comoda sia per il centro cittadino che per Abbiate Guazzone, proponiamo in vendita un appartamento al primo piano di un condominio del 2008, con una superficie di 60 mq.
L'immobile, recentemente aggiornato nel 2023, presenta bagno modernizzato con finiture curate, pavimentazione nuova, porte interne sostituite, allarme perimetrale e volumetrico, oltre alla posa delle zanzariere sui serramenti in legno doppio vetro.
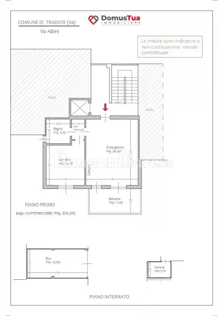
Per comprendere al meglio gli spazi, conviene partire dalla planimetria: il soggiorno con cucina a vista di 30 mq offre una disposizione regolare e versatile. Attualmente è presente una parete divisoria, realizzata per esigenze familiari, che verrà rimossa a breve, restituendo così un ampio ambiente unico e luminoso. Dal portoncino d'ingresso si accede quindi alla zona giorno confortevole e funzionale, che si apre su un meraviglioso terrazzino di 11 mq, perfetto per momenti di relax all'aperto.
Il disimpegno conduce alla zona notte, composta da una camera matrimoniale e da un bagno elegante e funzionale, completando l'armonia degli spazi.
L'appartamento è inoltre dotato di aria condizionata con due split, box singolo e cantina, garantendo comfort e praticità.
Una soluzione ideale per chi cerca un appartamento pronto da vivere, con spazi ben distribuiti, comfort moderni e una posizione comoda per muoversi facilmente in città e nei dintorni.

Caratteristiche

Piano 1
Ascensore Si
Stato Buono / Abitabile
Riscaldamento Autonomo, a radiatori

Servizi e accessori

Fibra ottica Infissi esterni in doppio vetro / legno VideoCitofono

Posizione

Referente

Domus Tua srl

Storico

Pubblicato 13 Jan 2026
Aggiornato 25 Feb 2026
Sul mercato 43 giorni
ID Annuncio 125118569

Recensioni

Vedi tutte
G

Gabriella Basile

5.0

Stavo cercando un investimento immobiliare a Tradate e l’ho trovata molto competente e professionale. Mi ha seguita passo dopo passo, aiutandomi anche a gestire lo stress durante la trattativa e suppo...

E

Erica Ceccarelli

5.0

Ho trovato l’appartamento perfetto per la mia famiglia in crescita grazie all’aiuto di questa agenzia. Sono stata davvero soddisfatta del supporto continuo, anche nella fase di mutuo, e della loro dis...

D

Diego Fiorucci

4.7

Stavo cercando un bilocale a Tradate dopo il mio trasferimento per lavoro e l'agenzia è stata molto disponibile fin da subito. Sono stato stato seguito con professionalità e flessibilità negli orari,...

E

Enzo Lodi

4.3

Ho scelto questa agenzia perché mi hanno colpito la professionalità e la chiarezza nel spiegare le procedure. Durante tutto il percorso, mi hanno seguito passo dopo passo, accompagnandomi nelle visite...