Appartamento
Asta
Asta Appartamento

Appartamento

Strada Pironda, 92/B, Reggiolo, Reggio Emilia

87.000 €
157
mq
5+
Locali

Recensisci questo Immobile

Devi essere registrato per lasciare una recensione.

Accedi

Nessuna recensione ancora. Sii il primo!

Descrizione

---
DIRETTAMENTE DAL TRIBUNALE, NESSUNA SPESA DI CONSULENZA A CARICO
DELL'INTERESSATO ALL'ACQUISTO!!!!
---
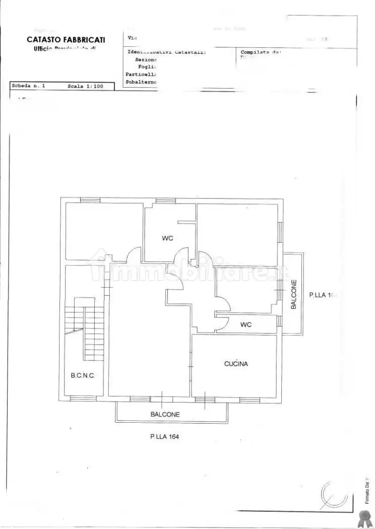
Piena proprietà di porzione di fabbricato ex rurale ad uso abitativo facente parte del complesso immobiliare denominato "Corte Pironda" sul quale sono stati eseguiti lavori di risanamento conservativo. L'alloggio, di circa mq. 157 di superficie commerciale, è costituito al piano terra da ingresso-soggiorno-cucina, wc, autorimessa di circa mq. 34 catastali e cortili in proprietà esclusiva; al piano primo da disimpegno, tre camere da letto, ripostiglio e wc; al secondo piano da vano sottotetto accessibile tramite botola, con scala interna collegante i piani.
L'immobile verrà consegnato libero a cura del Custode Giudiziario in seguito all'emissione del decreto di trasferimento.
---
PER MAGGIORI INFORMAZIONI CONTATTARE l'IVG
---

Caratteristiche

Piano Piano terra
Ascensore No
Riscaldamento Autonomo

Servizi e accessori

Giardino privato

Posizione

Storico

Pubblicato 03 Jan 2026
Aggiornato 15 Feb 2026
Sul mercato 48 giorni
ID Annuncio 125133047

Recensioni

Vedi tutte
I

Ilaria Sabbatini

4.0

Stavo cercando un ufficio a Reggio Emilia per la mia attività e sono stata davvero fortunata a trovare questa agenzia. Mi sono sentita seguita e supportata in ogni fase, con valutazioni oneste e trasp...

C

Caterina Ruotolo

4.7

Se cercate un’agenzia affidabile per trovare casa a Reggio Emilia, consiglio di rivolgervi a professionisti che sappiano ascoltare e curare ogni dettaglio. Mi sono trovata benissimo: sono stata seguit...

F

Federica Baldini

5.0

Ho trovato l’ufficio perfetto per la mia attività grazie a un’agenzia immobiliare molto professionale e affidabile. Sono stata seguita con cura e attenzione, e ho apprezzato molto la loro onestà nelle...

C

Cecilia Barone

4.7

Se cercate un’agenzia affidabile, consiglio di rivolgervi a loro: sono stati molto professionali e flessibili negli orari, adattandosi alle mie esigenze. Mi sono trovata subito seguita e assistita dur...