Appartamento
Asta
Asta Appartamento

Appartamento

Via Palermo, Gela, Caltanissetta

24.917 €
Ottimo Affare: 26% sotto la media
147
mq
5
Locali
3
Camere

Recensisci questo Immobile

Devi essere registrato per lasciare una recensione.

Accedi

Nessuna recensione ancora. Sii il primo!

Descrizione

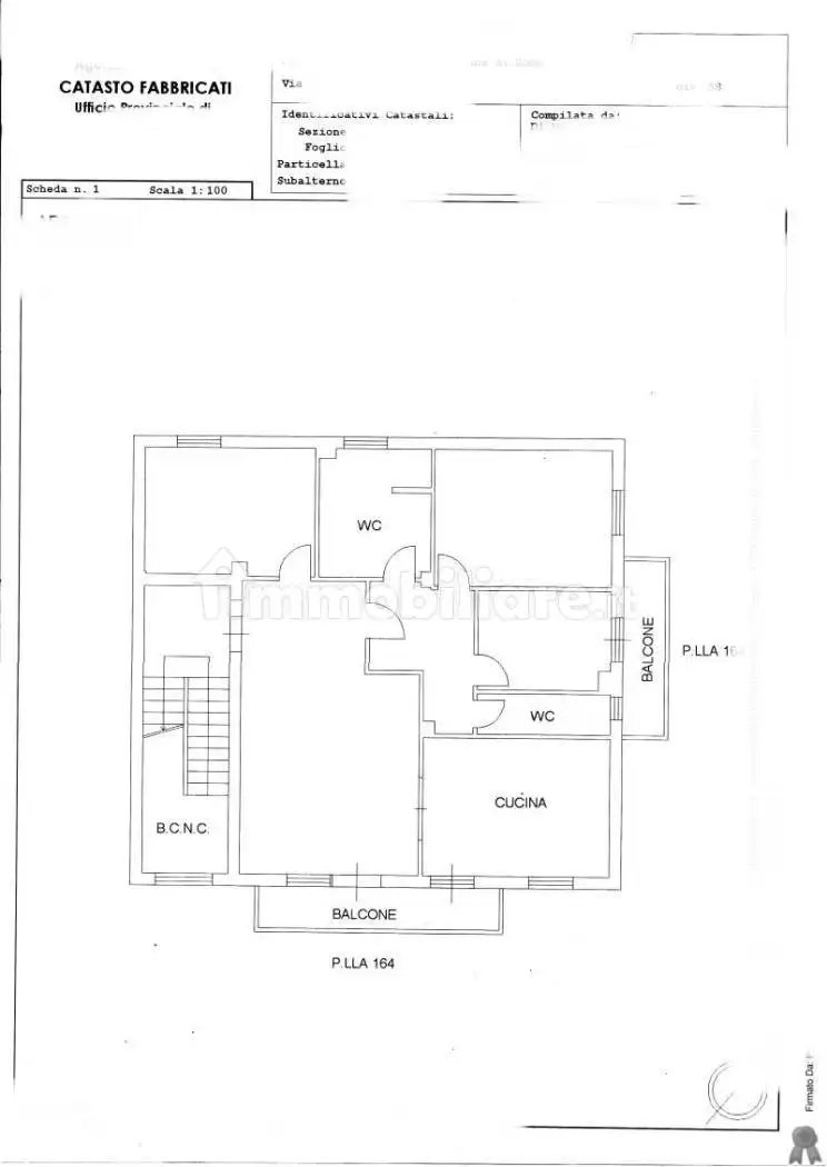
Lotto Unico - Trattasi di Appartamento sito nel Comune di Gela

Appartamento posto al primo piano, sito nel Comune di Gela, nel quartiere Sant'Ippolito, tra Via Palermo n. 25 angolo Via Monza e Via Po composto cinque vani e accessori con superficie utile mq 147 circa, con balconi sui tre prospetti per mq 32 circa.
L'appartamento è posto al primo piano di un edificio composto da quattro elevazioni fuori terra, situato all'angolo tra le vie sopra citate. Il fabbricato presenta una struttura portante in calcestruzzo armato ed è completamente privo di intonaco esterno. Il bene, raggiungibile unicamente tramite scala, è internamente rifinito con pavimenti in clinker, pareti in pittura lavabile, infissi interni in legno tamburato ed esterni in alluminio anodizzato con serrande avvolgibili in plastica.
L'immobile è privo di impianto di riscaldamento ed ha classe di prestazione energetica F.

Caratteristiche

Piano
Ascensore No
Stato Buono / Abitabile
Riscaldamento Assente

Servizi e accessori

Cucina Balcone Infissi esterni in vetro / legno

Posizione

Referente

Guber S.p.a.

Storico

Pubblicato 01 Jan 2026
Aggiornato 15 Feb 2026
Sul mercato 50 giorni
ID Annuncio 125144785

Recensioni

Vedi tutte
G

Gianni Tagliaferri

4.7

Ho trovato la seconda casa al mare grazie a un’agenzia molto flessibile negli orari, sempre disponibile a seguire ogni mia esigenza. La loro conoscenza delle normative e dei dettagli burocratici mi ha...

G

Giorgio Palermo

4.3

Grazie di cuore per il supporto: sono stato molto colpito dall'attenzione che avete dedicato a ogni dettaglio. La vostra precisione nella documentazione e la costante affidabilità mi hanno permesso di...