Appartamento
Asta
Asta Appartamento

Appartamento

Localita` Verzolina snc, Fermignano, PU,, Fermignano, Pesaro Urbino

87.637 €
110
mq
3
Locali
2
Camere

Recensisci questo Immobile

Devi essere registrato per lasciare una recensione.

Accedi

Nessuna recensione ancora. Sii il primo!

Descrizione

Appartamento con Terreno e Magazzino a Fermignano (PU) [SY599420]
Localita` Verzolina snc, Fermignano, PU,
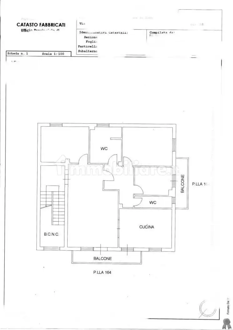
A) Civile abitazione sito in Comune di Fermignano (PU), Località Verzolina snc, categoria A/4, classe 1, vani 3,5, della superficie commerciale di mq.110,50, inserito in un piccolo agglomerato rurale costituito da fabbricati edificati in data anteriore al 1900, in parte disabitati. Il fabbricato, in mediocre stato di conservazione, si sviluppa su due livelli non comunicanti tra loro, precisamente: al piano terra due vani indipendenti con accesso esterno autonomo, destinati a cantina e magazzino; al primo piano, accessibile mediante scala di collegamento esterna, tre vani.
B) Manufatto agricolo sito in Comune di Fermignano (PU), Località Verzolina snc, della superficie commerciale di 143,10 mq. costituito da due magazzini al piano terra non comunicanti tra loro, con accesso autonomo, e tettoia che si sviluppa su due lati. Il fabbricato in pessimo stato di conservazione, è attualmente utilizzato come stalla e ricovero di animali da cortile.
C) Terreni agricoli siti in Comune di Fermignano (PU), Località Verzolina snc, della superficie complessiva di 77.254 mq. costituiti da vari appezzamenti intervallati da fondi destinati a colture diverse.
ATTENZIONE: si segnala che le caratteristiche precompilate automaticamente dal software nell’annuncio potrebbero contenere refusi (ad esempio in merito a: le foto pubblicate potrebbero non corrispondere all'immobile specifico, indirizzo e/o mappa e/o geolocalizzazione; tipologia; superficie; vani; piani; disponibilità; garanzie; efficienza energetica; scadenza; ipotesi mutuo; stato buono/sufficiente ecc.). Pertanto, si consiglia di riferirsi preferibilmente alla descrizione del bene di cui sopra, oltre che al referente indicato.

Possibilità di Mutuo al 100%

Per maggiori informazioni puoi contattare il nostro referente di zona

Marco Foglietti Agenzia Centro Aste Fil. Pesaro Urbino

Tel. 0721/1722360

email: centroastepesaro @ gmail.com

SU QUESTO IMMOBILE E’ POSSIBILE:

- Mutuo al 100%
- Visita Interni
- NO Oneri Notarili
- Nessuna Ipoteca
- Agevolazione Prima Casa

Le foto pubblicate potrebbero non corrispondere all'immobile specifico, i documenti ufficiali sono visionabili in filiale.

CENTRO ASTE OFFRE I SEGUENTI SERVIZI:

1. PRIMA CONSULENZA
Appuntamento presso una delle 50 Filiali in Italia per offrire chiarimenti sulle aste ed ascoltare le tue esigenze immobiliari.

2. MEDIAZIONE CREDITIZIA
Servizio esclusivo ad alto valore aggiunto, proponendo un ventaglio di prodotti tra i più completi con studio fattibilità per la partecipazione in asta con mutuo fino al 100%

3. ASSISTENZA TECNICO - LEGALE
- Ricerca Immobili ed invio settimanale per email
- Studio della perizia e della documentazione
- Accertamenti catastali per eventuali abusi edilizi
- Accompagnamento Visita Immobile
- Disbrigo pratiche per la partecipazione
- Rappresentanza Legale il giorno della vendita
- Rilascio del decreto di trasfe

Caratteristiche

Piano Piano terra
Ascensore No
Stato Buono / Abitabile
Riscaldamento Autonomo

Servizi e accessori

Cucina Impianto tv con parabola satellitare Giardino privato

Posizione

Referente

Marco Foglietti

Storico

Pubblicato 01 Jan 2026
Aggiornato 15 Feb 2026
Sul mercato 50 giorni
ID Annuncio 125204561

Recensioni

Vedi tutte
S

Simone Alemagna

4.0

Il loro team è stato davvero disponibile fin dal primo momento, ascoltando ogni mia esigenza e guidandomi con attenzione nella scelta del terreno. La vasta scelta di immobili e la professionalità degl...

G

Grazia Ruggiero

4.3

Ricordo ancora quando ho deciso di vendere l’appartamento di famiglia: sono stata subito trovata da un’agenzia davvero professionale e disponibile. Mi hanno seguita passo passo, spiegandomi tutto con...

S

Silvana Turco

4.7

Prima di questa esperienza, avevo sempre trovato il mondo immobiliare un po’ complicato e pieno di incertezze, ma questa volta è stato diverso. Mi sono sentita seguita passo dopo passo, con spiegazion...

S

Simona Tommasi

4.7

Ho scelto questa agenzia perché mi ha colpito la loro puntualità negli appuntamenti e la tanta affidabilità che trasmettono. Mi sono trovata subito seguita e aiutata nella ricerca di un affitto a Pesa...