Indietro
Vendita Villetta a schiera

Villetta a schiera

Via Sacco, Zevio, Verona

425.000 €
188
mq
5
Locali
3
Camere
2
Bagni

Recensisci questo Immobile

Devi essere registrato per lasciare una recensione.

Accedi

Nessuna recensione ancora. Sii il primo!

Descrizione

Ampie metrature, personalizzazione e posizione strategica: nuova villetta d’angolo in centro a Zevio

A soli cinque minuti a piedi dalle piazze principali, in una zona tranquilla ma comodissima a tutti i servizi, nasce una nuova iniziativa immobiliare pensata per chi cerca spazi ampi, funzionali e la possibilità di modellare la casa sulle esigenze della propria famiglia.
Consegna prevista: metà 2027.

Spazi che fanno la differenza

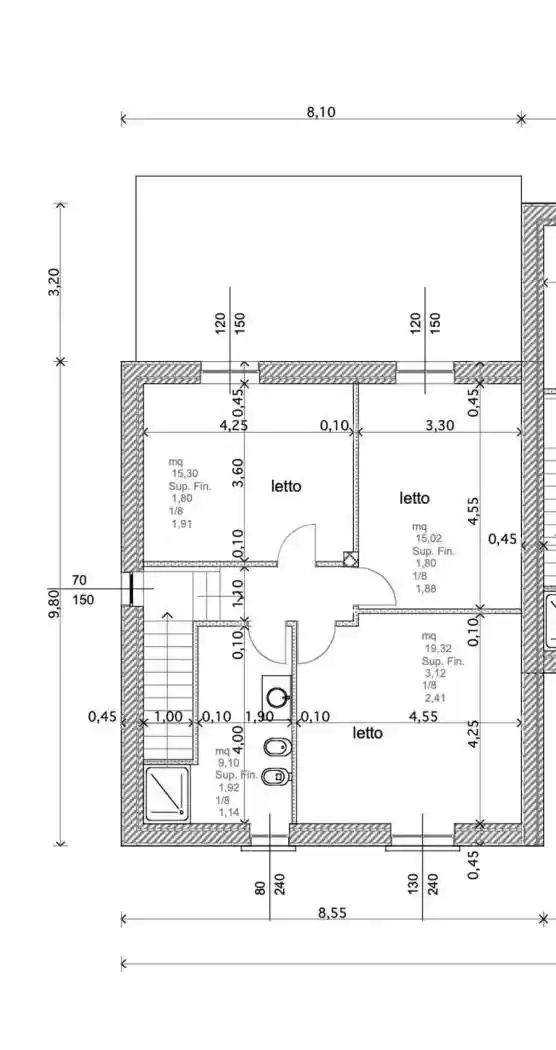
La villetta d’angolo, sviluppata su due livelli fuori terra, offre ambienti di dimensioni ormai rare nelle nuove costruzioni.

Piano Terra
- Zona giorno di quasi 50 mq, ideale per chi desidera un grande open space o preferisce mantenere cucina e soggiorno separati
- Bagno finestrato
- Locale lavanderia/centrale termica
- Autorimessa comunicante di oltre 24 mq
- All’esterno, un giardino privato di 160 mq, disposto su tre lati, è perfetto per cene, pranzi e momenti conviviali, oltre che per vivere l’outdoor in totale libertà.

Piano Primo
- Tre camere matrimoniali, tutte davvero spaziose
- Secondo bagno

Personalizzazione totale e qualità costruttiva
La casa offre un alto grado di finitura e la possibilità di personalizzare gli spazi interni in base alle abitudini e ai gusti della famiglia: distribuzione degli ambienti, finiture e scelte estetico-funzionali.

Efficienza e comfort
Realizzata con tecnologie di ultima generazione, l’abitazione raggiunge la classe energetica A4, sinonimo di benessere abitativo, consumi ridotti e massimo comfort.
Per maggiori informazioni, capitolato, visione progetto, rendering, telefona o scrivi:
Telefono: 378 415 86 87
WhatsApp: 378 415 86 87
Email: vrhsh@tecnocasa.it

Caratteristiche

Ascensore No
Stato Nuovo / In costruzione
Riscaldamento Autonomo
Garage 1 in box privato/box in garage

Servizi e accessori

Accesso per disabili Giardino privato

Posizione

Storico

Pubblicato 04 Jan 2026
Aggiornato 26 Feb 2026
Sul mercato 53 giorni
ID Annuncio 125211521

Recensioni

Vedi tutte
F

Fulvio Leone

4.7

Ho trovato l’agenzia molto disponibile e paziente, hanno davvero un’ampia scelta di immobili a Zevio. Mi hanno seguito passo dopo passo, ascoltando le mie esigenze e aiutandomi a trovare l’appartament...

N

Nicole Delfino

4.7

Ho scelto questa agenzia perché cercavo un servizio efficiente e che ascoltasse davvero le mie esigenze. Mi sono trovata molto bene: sono stata seguita passo passo, con grande attenzione e professiona...

A

Alessandro Seri

4.7

Ho trovato l’appartamento vista mare che cercavo grazie a un team molto competente e cortese. Sono stato seguito con professionalità e hanno dimostrato una buona conoscenza delle normative immobiliari...

E

Emanuele De Filippo

4.3

Grazie di cuore per avermi seguito in questa ricerca! Sono stato davvero soddisfatto, hanno dimostrato grande onestà nelle valutazioni e avevano un’ampia scelta di immobili tra cui scegliere. Mi hanno...

N

Nicola Morandi

4.3

Ho concluso la vendita della mia casa a Zevio con grande soddisfazione, grazie all'efficienza e alla professionalità dell'agenzia. Sono stato seguito passo dopo passo, con molta attenzione e rispetto,...