Appartamento
Asta
Asta Appartamento

Appartamento

Via Ugo Foscolo, 62, 85020 Maschito PZ, Italia, Maschito, Potenza

60.975 €
116
mq
5+
Locali
6
Camere

Recensisci questo Immobile

Devi essere registrato per lasciare una recensione.

Accedi

Nessuna recensione ancora. Sii il primo!

Descrizione

Asta appartamento a Maschito (PZ) [SY599186]
Via Ugo Foscolo, 62, 85020 Maschito PZ, Italia
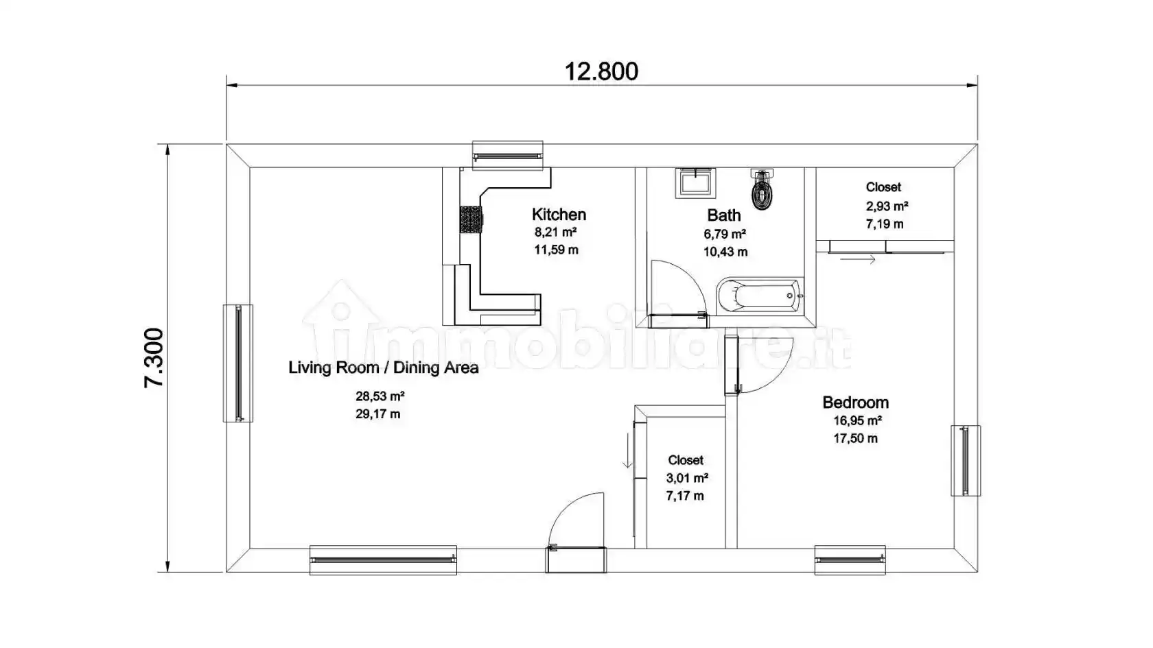
Piena e intera proprietà quota 1/1 in Comune di MASCHITO, di appartamento per civile abitazione, alla via Ugo Foscolo n. 62 Piano 1°, in Catasto Fabbricati al foglio 23 p.lla 800 sub. 40, cat. A/2, di vani 6, superficie commerciale mq 116; e locale garage, alla via Ugo Foscolo n. 62, Piano S1°, in Catasto Fabbricati al foglio 23 p.lla 800 sub. 16, cat. C/6, consistenza catastale mq 25, superficie commerciale mq 30. Appartamento libero da persone e/o cose, mentre il locale garage è libero da persone, ma occupato da oggetti e materiali di varia natura.l’appartamento per civile abitazione, parte di un complesso di villette a schiera, superficie commerciale mq 116, ubicato al Piano 1°; sito in zona periferica Ovest del Comune di MASCHITO (PZ), alla Via Ugo Foscolo n. 62, identificato in Catasto Fabbricati al foglio 23 p.lla 800 sub. 40, cat. A/2, consistenza vani 6, L’U.I. confina a Est con altra U.I. di terzi sub.41 e ad Ovest con altra U.I. di terzi sub. 39, L’accesso avviene in modo diretto dal passaggio carrabile e dalle rampe della scala esterna comuni (sub. 30) che, a loro volta, hanno accesso diretto alla strada pubblica (Via Ugo Foscolo).e Locale garage, superficie commerciale mq 30, ubicato al piano S1°; sito in zona periferica Ovest del Comune di MASCHITO (PZ), alla Via Ugo Foscolo n. 62, identificato in Catasto Fabbricati al foglio 23 p.lla 800 sub. 16, cat. C/6, consistenza mq 25. L’U.I. confina a Nord con U.I. di terzi sub. 11, ad Est con altra U.I. di terzi sub. 17, ad Ovest con altra U-I- di terzi sub. 10 ed a Sud con passaggio carrabile comune sub. 3. L’accesso avviene dal passaggio carrabile e dalla rampa comuni (sub. 2 e sub. 3), da cui si accede direttamente alla strada pubblica (Via Ugo Foscolo).

Proposta immobiliare in asta. Info dettagliate in agenzia o telefonicamente.

Possibilita’ di Mutuo al 100%

Per maggiori informazioni puoi contattare il nostro referente di zona

SU QUESTO IMMOBILE E’ POSSIBILE:

- Mutuo al 100%
- Visita Interni
- NO Oneri Notarili
- Nessuna Ipoteca
- Agevolazione Prima Casa

Le foto pubblicate potrebbero non corrispondere all'immobile specifico, i documenti ufficiali sono visionabili in filiale.

CENTRO ASTE OFFRE I SEGUENTI SERVIZI:

1. PRIMA CONSULENZA
Appuntamento presso una delle 50 Filiali in Italia per offrire chiarimenti sulle aste ed ascoltare le tue esigenze immobiliari.

2. MEDIAZIONE CREDITIZIA
Servizio esclusivo ad alto valore aggiunto, proponendo un ventaglio di prodotti tra i più completi con studio fattibilità per la partecipazione in asta con mutuo fino al 100%

3. ASSISTENZA TECNICO - LEGALE
- Ricerca Immobili ed invio settimanale per email
- Studio della perizia e della documentazione
- Accertamenti catastali per eventuali abusi edilizi
- Accompagnamento Visita Immobile
- Disbrigo pratiche per la partecipazione
- Rappresentanza Legale il giorno della vend

Caratteristiche

Piano
Ascensore No
Stato Buono / Abitabile
Riscaldamento Autonomo

Servizi e accessori

Cucina Impianto tv con parabola satellitare

Posizione

Referente

Roberta Dongiovanni

Storico

Pubblicato 01 Jan 2026
Aggiornato 15 Feb 2026
Sul mercato 50 giorni
ID Annuncio 125215121

Recensioni

Vedi tutte
G

Gabriella Bellini

4.7

Ho trovato l’ufficio perfetto per la mia attività in poco tempo, grazie alla professionalità e alla flessibilità dell'agenzia negli orari di visita. Sono stata seguita passo passo, con grande attenzio...

G

Gabriele Pasquale

4.7

Appena sono entrato in agenzia, sono stato colpito dalla cura con cui hanno preparato tutta la documentazione, rendendo il processo davvero semplice e trasparente. Mi hanno seguito passo dopo passo, d...