Appartamento
Asta
Asta Appartamento

Appartamento

Via Camillo Benso Conte di Cavour, 20, 72100 Brindisi BR, Italia, Brindisi, Brindisi

150.000 €
300
mq
5+
Locali
10
Camere

Recensisci questo Immobile

Devi essere registrato per lasciare una recensione.

Accedi

Nessuna recensione ancora. Sii il primo!

Descrizione

Asta appartamento a Brindisi (BR) [SY577207]
Via Camillo Benso Conte di Cavour, 20, 72100 Brindisi BR, Italia
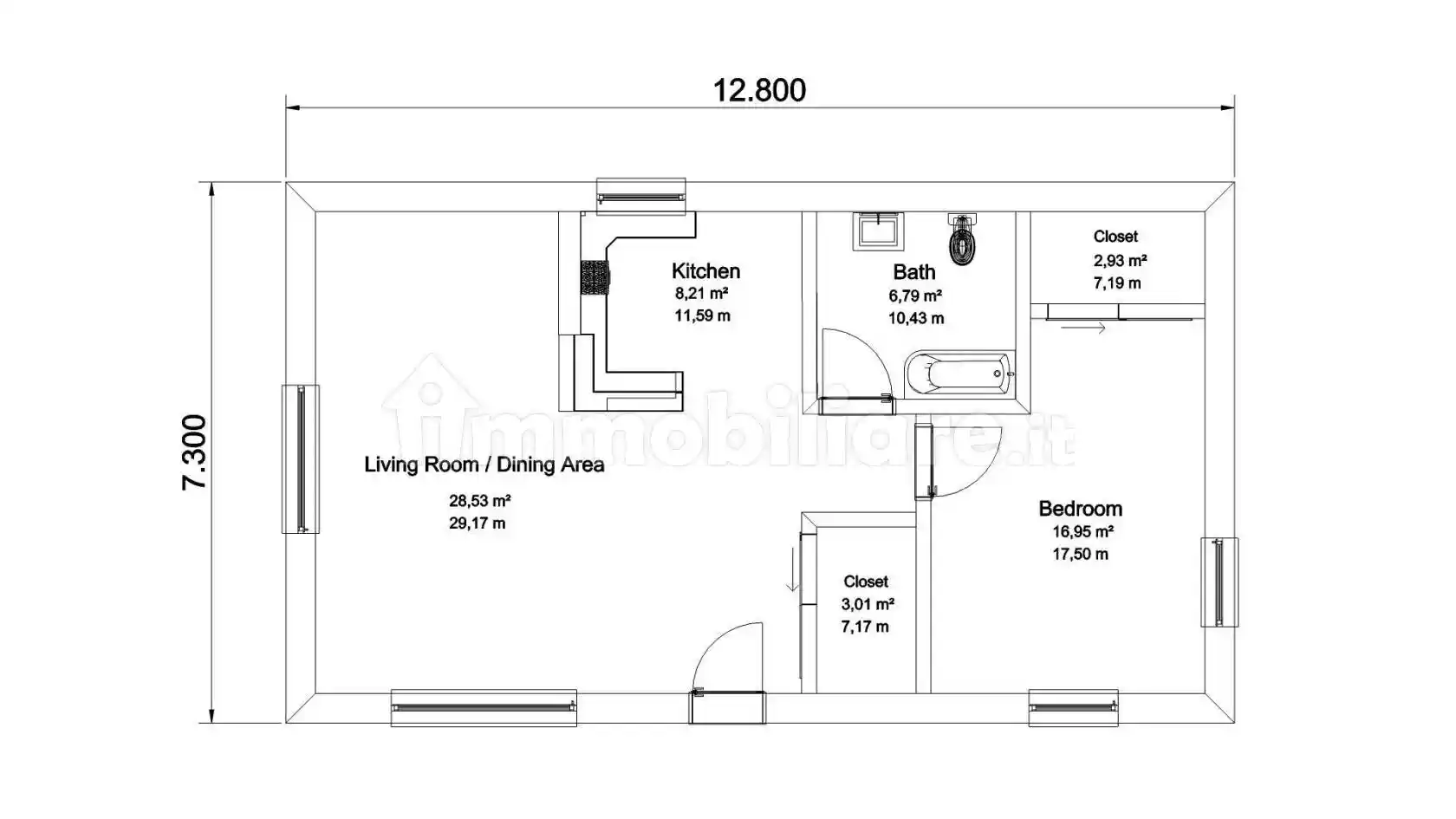
Immobile costituito da: a) unità abitativa posta a P.T. composta da due vani con accesso da via Cavour n.22, superficie commerciale mq.44,18. Nel N.C.E.U. individuata al foglio 190, particella 2083 sub.3 cat. A/4, cl.5^ vani 2, R.C. € 196,25; b) unità abitativa posta a P.T. composta da due vani con accesso da via Cavour n.20, superficie commerciale mq.48,36. Nel N.C.E.U. individuata al foglio 190, particella 2083 sub.4, cat A/4 cl.5^ vani 2 R.C. € 196,25; c) unità abitativa posta a P.T. composta da un vano e accessorio con accesso da via Cavour 24, superficie commerciale mq.24,05. Nel N.C.E.U. individuata al foglio 190, particella 2083 sub.8 cat. A/4, cat. A/4, cl.5^, vani 1,5, R.C. € 147,19; d) unità abitativa posta a P.T. composta da un vano con accesso da via Cavour n.24, superficie commerciale mq.23,08. Nel N.C.E.U. al foglio 190, particella 2083 sub.9, cat. A/4, cl.5, vani 1, R.C. € 98,13; e) unità abitativa posta al 1^ P. con accesso da via Cavour n.24, superficie commerciale mq.159,45. Nel N.C.E.U. al foglio 190, particella 2083 sub.12, cat A/3, cl.2^, vani 7, R.C. € 560,36; f) cortile interno individuato nel N.C.E.U. al foglio 190, particella 2083 sub.23 BCNC g) vano scala individuato nel N.C.E.U. al foglio 190, particella 2083 sub.22 BCNC; h) lastrico solare.

Proposta immobiliare in asta. Info dettagliate in agenzia o telefonicamente.

Possibilita’ di Mutuo al 100%

Per maggiori informazioni puoi contattare il nostro referente di zona

SU QUESTO IMMOBILE E’ POSSIBILE:

- Mutuo al 100%
- Visita Interni
- NO Oneri Notarili
- Nessuna Ipoteca
- Agevolazione Prima Casa

Le foto pubblicate potrebbero non corrispondere all'immobile specifico, i documenti ufficiali sono visionabili in filiale.

CENTRO ASTE OFFRE I SEGUENTI SERVIZI:

1. PRIMA CONSULENZA
Appuntamento presso una delle 50 Filiali in Italia per offrire chiarimenti sulle aste ed ascoltare le tue esigenze immobiliari.

2. MEDIAZIONE CREDITIZIA
Servizio esclusivo ad alto valore aggiunto, proponendo un ventaglio di prodotti tra i più completi con studio fattibilità per la partecipazione in asta con mutuo fino al 100%

3. ASSISTENZA TECNICO - LEGALE
- Ricerca Immobili ed invio settimanale per email
- Studio della perizia e della documentazione
- Accertamenti catastali per eventuali abusi edilizi
- Accompagnamento Visita Immobile
- Disbrigo pratiche per la partecipazione
- Rappresentanza Legale il giorno della vendita
- Rilascio del decreto di trasferimento in tempi brevi
- Assistenza per il Saldo Prezzo
- Compilazione F24 per Tasse
- Disbrigo Pratiche per Eventuale Sanatoria
- Assistenza alla Consegna Immobile

Per maggiori informazioni puoi contattare il nostro referente di zona
Data Asta: 02-03-2026
Codice Riferimento: SY577207

Caratteristiche

Piano Piano terra
Ascensore No
Stato Buono / Abitabile
Riscaldamento Autonomo

Servizi e accessori

Cucina Impianto tv con parabola satellitare

Posizione

Zona: Centro Storico (Centro Storico, Cappuccini, Commenda)

Referente

Roberta Dongiovanni

Storico

Pubblicato 31 Dec 2025
Aggiornato 15 Feb 2026
Sul mercato 51 giorni
ID Annuncio 125215165

Recensioni

Vedi tutte
G

Gabriella Bellini

4.7

Ho trovato l’ufficio perfetto per la mia attività in poco tempo, grazie alla professionalità e alla flessibilità dell'agenzia negli orari di visita. Sono stata seguita passo passo, con grande attenzio...

G

Gabriele Pasquale

4.7

Appena sono entrato in agenzia, sono stato colpito dalla cura con cui hanno preparato tutta la documentazione, rendendo il processo davvero semplice e trasparente. Mi hanno seguito passo dopo passo, d...