Quadrilocale nuovo, secondo piano, Caldonazzo
Vendita
Vendita Appartamento

Quadrilocale nuovo, secondo piano, Caldonazzo

Caldonazzo, Trento

348.000 €
120
mq
4
Locali
3
Camere
2
Bagni

Recensisci questo Immobile

Devi essere registrato per lasciare una recensione.

Accedi

Nessuna recensione ancora. Sii il primo!

Descrizione

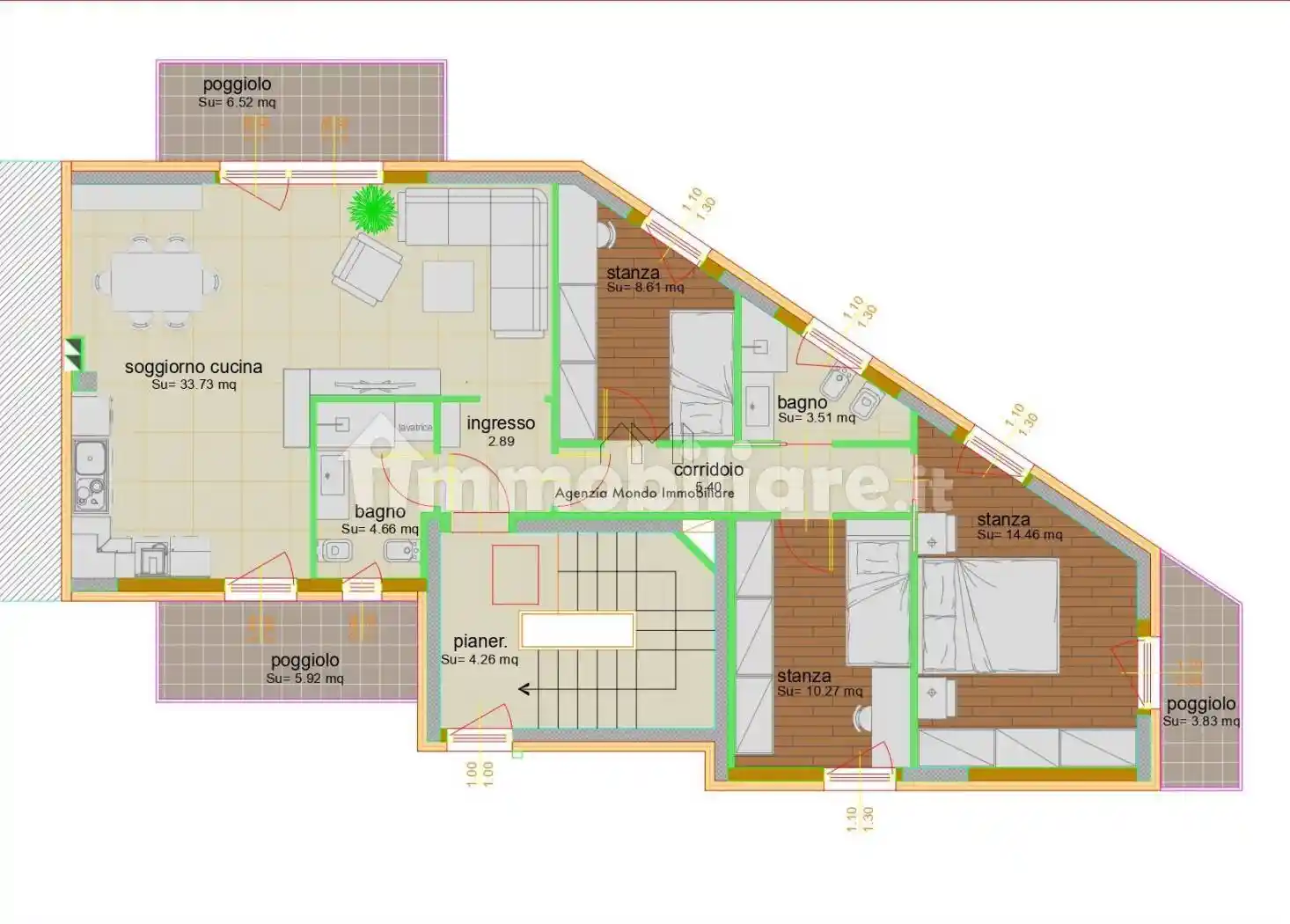
A Caldonazzo, in edificio in fase di costruzione vendiamo appartamento a secondo e ultimo piano in classe A+.

Il progetto prevede la realizzazione 3 diversi appartamenti dislocati su 3 piani fuori terra: un appartamento a piano.
L'appartamento in questione si colloca al secondo e ultimo piano e si compone di tre camere da letto, zona soggiorno con angolo cottura, due bagni, tre comodi poggioli.

A piano terra verrà realizzato un appartamento con due camere da letto, una spaziosa zona giorno e due bagni e avrà un giardino che lo circonda; mentre a primo piano vi sarà un ulteriore tre stanze come per il piano attico.

La palazzina verrà costruita rispettando quanto richiesto per ottenere una classe energetica “A+”.
Sarà previsto il riscaldamento a pavimento a mezzo di una pompa di calore, infissi esterni in triplo vetro, pannelli fotovoltaici e cappotto esterno. Per il periodo estivo è previsto un impianto di deumidificazione canalizzato per ogni appartamento.
Essendo una palazzina di soli 3 piani non è stato previsto l'ascensore.

Gli spazi sono in fase di progettazione e possono essere ancora personalizzati in base alle necessità e le esigenze di chi è interessato.

Il prezzo riportato di 348.000€, si riferisce alla soluzione a secondo piano.
Possibilità di acquisto 2 posti auto e cantina a piano terra.

Il piano terra con giardino viene venduto a 325.000€, mentre per il primo piano vengono richiesti 335.000€

Le immagini pubblicate e le dimensioni sono da considerarsi puramente indicative del progetto in elaborazione.
Maggiori informazioni in ufficio

<hr>

Il compenso dovuto dall’acquirente per la mediazione a AMI Immobiliare, maggiorato dell’IVA secondo l’aliquota di legge, si stabilisce al 4% del prezzo di vendita.

Vuoi rimanere aggiornato sulle nostre proposte?
Lascia un "LIKE" alla nostra pagina Facebook e seguici su Instagram

Caratteristiche

Piano
Ascensore No
Stato Nuovo / In costruzione
Riscaldamento Centralizzato
Garage 2 in parcheggio/garage comune

Servizi e accessori

Porta blindata Esposizione esterna Balcone Impianto tv con parabola satellitare Cantina Infissi esterni in triplo vetro / pvc

Posizione

Referente

Francesca Celva

Storico

Pubblicato 28 Dec 2025
Aggiornato 15 Feb 2026
Sul mercato 54 giorni
ID Annuncio 125230533

Recensioni

Vedi tutte
M

Michele De Falco

4.7

Appena ho varcato la porta, ho subito notato l'attenzione ai dettagli e la professionalità dello staff. Sono stato seguito passo passo con entusiasmo e competenza, trovando l'ufficio perfetto per la m...

C

Cristian Santoro

4.7

Ho trovato l'appartamento vista mare perfetto grazie all'agenzia, che aveva un'ampia scelta di immobili e mi ha accompagnato durante tutte le visite con grande professionalità. Il team è stato molto d...

V

Vito Donato

4.0

Appena ho visto le case che mi avete mostrato, sono rimasto colpito dalla vostra disponibilità e dalla chiarezza con cui spiegavate ogni dettaglio. Dopo aver scelto di trasferirmi in una zona più tran...

E

Emanuele Lamberti

4.7

Durante tutto il processo mi sono sentito davvero supportato e ascoltato, come se avessi un amico al mio fianco. L’efficienza nella gestione di tutta la parte burocratica è stata sorprendente, rendend...

F

Fabio Stella

5.0

Ho cercato un bilocale a Trento per trasferirmi per lavoro e ho trovato rapidamente quello che cercavo grazie all'agenzia. Sono stato molto soddisfatto della trasparenza durante tutta la trattativa e...