Appartamento
Asta
Asta Appartamento

Appartamento

Via San Bernardino, 74, Novellara, Reggio Emilia

40.500 €
146
mq
5+
Locali

Recensisci questo Immobile

Devi essere registrato per lasciare una recensione.

Accedi

Nessuna recensione ancora. Sii il primo!

Descrizione

---
DIRETTAMENTE DAL TRIBUNALE, NESSUNA SPESA DI CONSULENZA A CARICO
DELL'INTERESSATO ALL'ACQUISTO!!!!
---
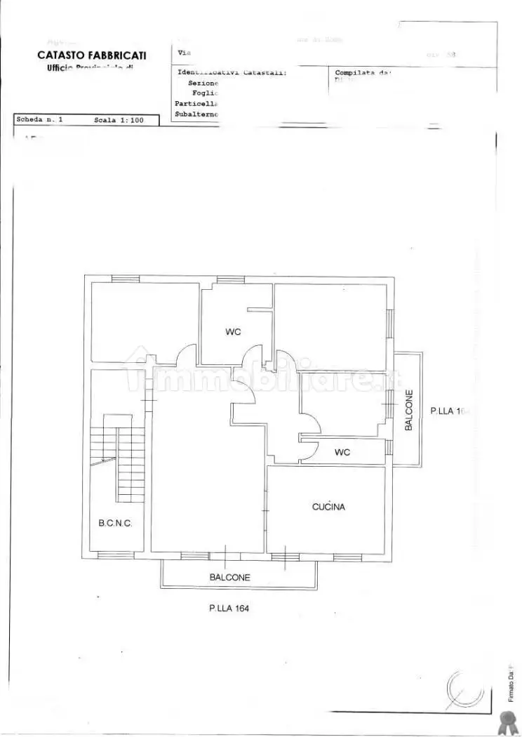
Piena proprietà di fabbricato di civile abitazione, suddiviso su tre piani fuori terra, con circostante area cortiliva. L'unità risulta composta al piano terra da cucina, ingresso, soggiorno-pranzo, antibagno e bagno, ripostiglio e due scale per l'accesso al primo piano, costituito da quattro locali; al piano secondo quattro ampi locali a sottotetto. Superficie commerciale totale pari a mq. 146,90 circa; area cortiliva e di sedime complessivamente pari a mq. 385.
L'immobile verrà consegnato libero a cura del Custode Giudiziario.
---
PER MAGGIORI INFORMAZIONI CONTATTARE l'IVG
---

Caratteristiche

Piano Piano terra
Ascensore No
Riscaldamento Autonomo

Servizi e accessori

Giardino privato

Posizione

Storico

Pubblicato 02 Jan 2026
Aggiornato 15 Feb 2026
Sul mercato 49 giorni
ID Annuncio 125236001

Recensioni

Vedi tutte
I

Ilaria Sabbatini

4.0

Stavo cercando un ufficio a Reggio Emilia per la mia attività e sono stata davvero fortunata a trovare questa agenzia. Mi sono sentita seguita e supportata in ogni fase, con valutazioni oneste e trasp...

C

Caterina Ruotolo

4.7

Se cercate un’agenzia affidabile per trovare casa a Reggio Emilia, consiglio di rivolgervi a professionisti che sappiano ascoltare e curare ogni dettaglio. Mi sono trovata benissimo: sono stata seguit...

F

Federica Baldini

5.0

Ho trovato l’ufficio perfetto per la mia attività grazie a un’agenzia immobiliare molto professionale e affidabile. Sono stata seguita con cura e attenzione, e ho apprezzato molto la loro onestà nelle...

C

Cecilia Barone

4.7

Se cercate un’agenzia affidabile, consiglio di rivolgervi a loro: sono stati molto professionali e flessibili negli orari, adattandosi alle mie esigenze. Mi sono trovata subito seguita e assistita dur...