Asta Appartamento

Appartamento all'asta via Generale Carlo Alberto Dalla Chiesa 16, Bolzano Vicentino

Via Generale Carlo Alberto Dalla Chiesa, Bolzano Vicentino, Vicenza

Prezzo
111
mq
4
Locali
3
Camere

Recensisci questo Immobile

Devi essere registrato per lasciare una recensione.

Accedi

Nessuna recensione ancora. Sii il primo!

Descrizione

"Asta del 29-01-2026 da Euro 92.850
Via Generale Dalla Chiesa 16 int.4 - Bolzano Vicentino (VI)

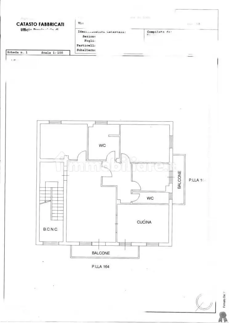
Trattasi di appartamento ai piani primo e secondo (superficie commerciale di circa mq. 139,29) con autorimessa (superficie commerciale di circa mq. 12,29) e posto auto scoperto (superficie commerciale di circa mq. 2,80) al piano terra. Ubicata in contesto condominiale, l’abitazione in oggetto risulta composta: p.primo cucina-soggiorno, lavanderia, camera, bagno, vano scale e terrazza; p.secondo vano scale, bagno, camera e due locali accessori.
Gli annunci vengono caricati tramite un software. Pertanto potrebbero sussistere degli errori nei dati inseriti. Per verificare con esattezza la descrizione della vendita richiedeteci sempre la documentazione e le foto disponibili per l'immobile oggetto dell'asta. Classe energetica in via di definizione se non indicata nell'annuncio.

IN COSA CONSISTE LA NOSTRA CONSULENZA:
Se l'immobile corrisponderà alle tue aspettative, sarà nostra cura analizzare che la procedura non abbia problemi rilevanti, programmare la visita degli interni ed infine preparare tutta la documentazione per permetterti di partecipare all'asta.
In caso di aggiudicazione, verranno curate tutte le fasi successive, dal saldo del prezzo fino alla consegna della chiavi.
Possibilità di mutuo pari al 100%.

Per maggiori informazioni clicca qui https://bit.ly/43VKTf0.
Riceverai via WhatsApp la documentazione e le foto della casa più un video che ti spiegherà le fasi che si sono da affrontare per arrivare all'asta.

Per vedere le case che sono ora all'asta clicca qui: https://bit.ly/3qiaW2a vai nella sezione mappa e la restringi nella zona che le interessa
(è aggiornata settimanalmente, quindi puoi collegarti ogni decina di giorni per vedere le nuove aste)."

Caratteristiche

Piano Piano terra, con ascensore
Ascensore Si
Riscaldamento Assente

Servizi e accessori

Accesso per disabili

Posizione

Referente

Paolo Lovato

Storico

Pubblicato 25 Dec 2025
Disattivato 27 Feb 2026
Sul mercato 113 giorni
ID Annuncio 125269633

Recensioni

Vedi tutte
C

Cristina Curci

4.7

Anche con le esperienze precedenti, questa agenzia si è dimostrata davvero efficiente e professionale. Mi sono trovata subito seguita con cortesia e rapidità, il processo di vendita del mio locale com...

M

Marilena Lama

4.3

Ricordo ancora il momento in cui ho trovato il terreno perfetto per costruire, grazie alla loro conoscenza approfondita del mercato locale. Mi sono sentita subito seguita e aiutata in ogni fase delle...