Asta Appartamento

Appartamento

Via Giacomo Trevis, 35, 00147 Roma RM, Italia, Roma, Roma

Prezzo
129
mq
5+
Locali
2
Camere

Recensisci questo Immobile

Devi essere registrato per lasciare una recensione.

Accedi

Nessuna recensione ancora. Sii il primo!

Descrizione

TRIBUNALE DI ROMA
contenzioso civile 28903/2025 - LOTTO UNICO

Vuoi acquistare questo immobile all'asta? Attiva gratuitamente il servizio di consulenza e semplifica gli ostacoli burocratici.

Proposta di vendita di:
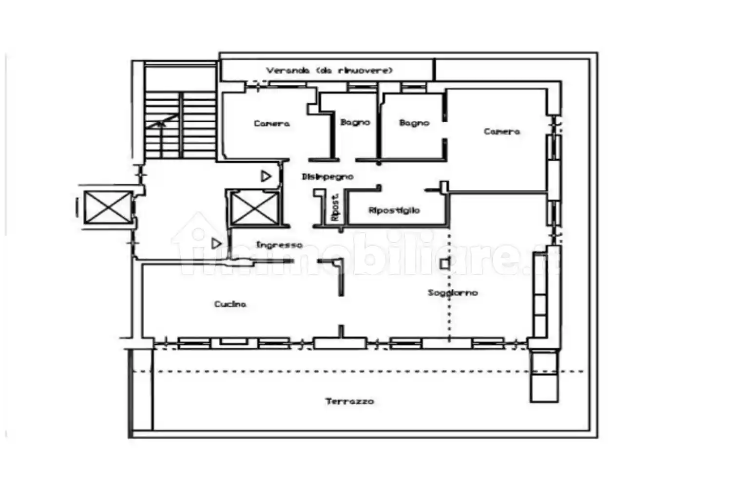
Appartamento Via Giacomo Trevis 35, piano 7, int. 14, soggiorno, due camere, cucina, due bagni, due ripostigli, un disimpegno, un ingresso e terrazzo a livello, mq 153,09 (sup.convenz.). Foglio 827, Part. 64, Sub. 519. Sono presenti difformità, talune non sanabili.

Scopri il servizio di consulenza alle aste di Fallimenti.it: ci occupiamo della compravendita di immobili tramite vendita giudiziaria e siamo pronti a supportarti offrendoti tutta l’esperienza di un portale attivo da oltre 10 anni.

L'attivazione della consulenza è gratuita e pagherai un costo di commissione solo se ti aggiudicherai l’immobile di tuo interesse: ti forniremo tutte le informazioni di cui hai bisogno e ti seguiremo passo dopo passo nel tuo acquisto all’asta. Pensiamo a tutto noi: organizziamo la visita in loco, ti assistiamo nella raccolta di foto e documenti e ti aiutiamo a compilare e inviare correttamente la tua offerta. Potrai richiedere, inoltre, un ulteriore supporto tecnico e legale: contattaci subito per conoscere tutti i nostri servizi.

Caratteristiche

Piano 7° piano, con ascensore
Ascensore Si
Stato Buono / Abitabile
Riscaldamento Centralizzato

Servizi e accessori

Balcone Terrazzo

Posizione

Zona: Navigatori (Garbatella, Navigatori, Ostiense)

Storico

Pubblicato 30 Dec 2025
Disattivato 27 Feb 2026
Sul mercato 142 giorni
ID Annuncio 125283601

Recensioni

Vedi tutte
M

Martina Malerba

5.0

Ho trovato l'appartamento perfetto a Faenza grazie a questa agenzia, sono stata davvero felice di essere seguita da persone così affidabili. Durante tutta la trattativa, hanno gestito ogni dettaglio c...