Appartamento all'asta frazione Fuino-via C. Moscatelli  , 20, Boca
Asta
Asta Appartamento

Appartamento all'asta frazione Fuino-via C. Moscatelli , 20, Boca

Frazione Fuino-Via C. Moscatelli , 20, Boca, Novara

60.750 €
Buon Prezzo: 23% sotto la media
253
mq
5+
Locali
4
Camere

Recensisci questo Immobile

Devi essere registrato per lasciare una recensione.

Accedi

Nessuna recensione ancora. Sii il primo!

Descrizione

OTTIMA OCCASIONE - ASTA IMMOBILIARE
Casa di ringhiera - immobile da cielo a terra composto da due appartamenti:
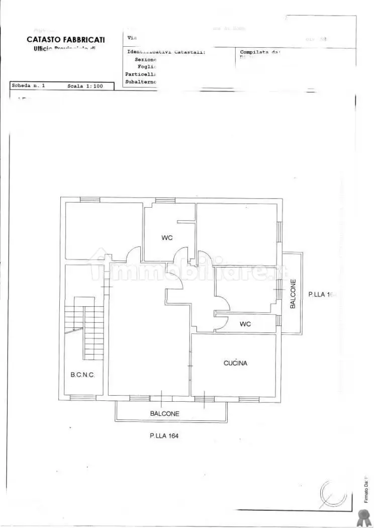
-Piano Terra: 1°Appartamento composto da 4 locali e bagno, di cui camera superficie utile di mq. 15,50 circa, camera adiacente a scala per accedere a cantina superficie utile mq. 12,50, circa, cucina superficie utile di mq. 20,50 circa, ripostiglio accessibile dalla cucina sup. utile mq. 2,50 circa, locale di sgombero superficie utile mq. 20,20 circa, bagno esterno superficie utile mq. 2,02 circa, le camere sono accessibili solo dal cortile e comunicanti, cucina e locale sgombero accessibili solo dal cortile e comunicanti;
-Piano Primo: 2° Appartamento, si accede con scala esterna alla veranda di mq. 18,00 utili circa, soggiorno superficie utile di mq. 15,60 circa, cucina superficie utile di mq. 15,50 circa, bagno superficie utile di mq. 4,00 circa, camera superficie utile di mq. 20,50 circa, seconda camera superficie utile mq. 20,20 circa.
-Piano Interrato si accede alla cantina con scala esterna sup. utile mq. 20,50.
-Piano Sottotetto si accede con scala retrattile posta davanti al bagno con superficie utile di mq. 100,00 circa e terrazzo mq. 18,00 circa.

"Biproget Group " è lo studio di consulenza che ti può accompagnare per tutto il percorso relativo all'acquisto tramite asta giudiziaria, compresa l'assistenza per le nuove procedure TELEMATICHE;
l'immobile viene venduto dal tribunale e il prezzo indicato si riferisce all'offerta minima, per assistenza e consulenza chiamare Tel. 0331/784170
Possibilità di mutuo 100%, ulteriori vantaggi se acquisti la prima casa.
· Hai problemi con le rate del mutuo?
· Hai ricevuto un pignoramento del tuo immobile?
· Hai già la tua casa all’asta con data fissata?
Il nostro Team di esperti Professionisti e Avvocati sono specializzati nel trattare con le banche e i creditori e evitare che la tua casa venga messa all’asta. Ti liberiamo dal mutuo, dalle ipoteche e da eventuali altri prestiti in protesto.
Ti diamo modo di poter ricominciare a vivere una vita serena, senza più i pensieri dei debiti, del mutuo che non riesci a pagare, delle telefonate dei creditori, delle tante lettere nella posta, chiama Tel. 0331 784170

Caratteristiche

Ascensore No
Stato Da ristrutturare
Riscaldamento Assente

Servizi e accessori

Terrazzo Cantina

Posizione

Storico

Pubblicato 25 Dec 2025
Aggiornato 15 Feb 2026
Sul mercato 57 giorni
ID Annuncio 125396857

Recensioni

Vedi tutte
M

Manuela Castelli

4.7

Ricordo ancora il momento in cui ho trovato l’appartamento perfetto per i miei figli, grazie alla gentilezza e professionalità dello staff. Mi sono sentita seguita passo dopo passo, dall'inizio alla f...

C

Cristina Laconi

4.7

Ricordo ancora quando sono arrivata in città e avevo bisogno di trovare un affitto in tempi brevi. Sono stata seguita con molta professionalità e chiarezza, che mi ha fatto sentire sicura e tranquilla...

M

Marta Curci

4.0

Ho trovato il bilocale perfetto per me grazie a un’agenzia davvero speciale. Mi sono sentita seguita con molta pazienza e professionalità, apprezzando soprattutto la chiarezza nelle spiegazioni e la f...