Indietro
Attico via Sicilia, Grottasanta - Tunisi, Siracusa
Vendita
Vendita Attico - Mansarda Nuovo

Attico via Sicilia, Grottasanta - Tunisi, Siracusa

Via Sicilia, Siracusa, Siracusa

330.000 €
130
mq
4
Locali
1
Camere
2
Bagni

Recensisci questo Immobile

Devi essere registrato per lasciare una recensione.

Accedi

Nessuna recensione ancora. Sii il primo!

Descrizione

NUOVI APPARTAMENTI IN VENDITA ATTICO DI 130MQ COMMERCIALI - Consegna Entro fine 2026

Zona Viale Tunisi, all'angolo tra Via Algeri e Via Sicilia, proponiamo in vendita una nuova palazzina residenziale di prossima costruzione con consegna prevista entro il 2026. Il complesso si sviluppa su 4 piani e sarà caratterizzato da un design moderno e linee eleganti, pensato per offrire il massimo del comfort, dell’efficienza energetica e della luminosità.

Descrizione degli appartamenti:
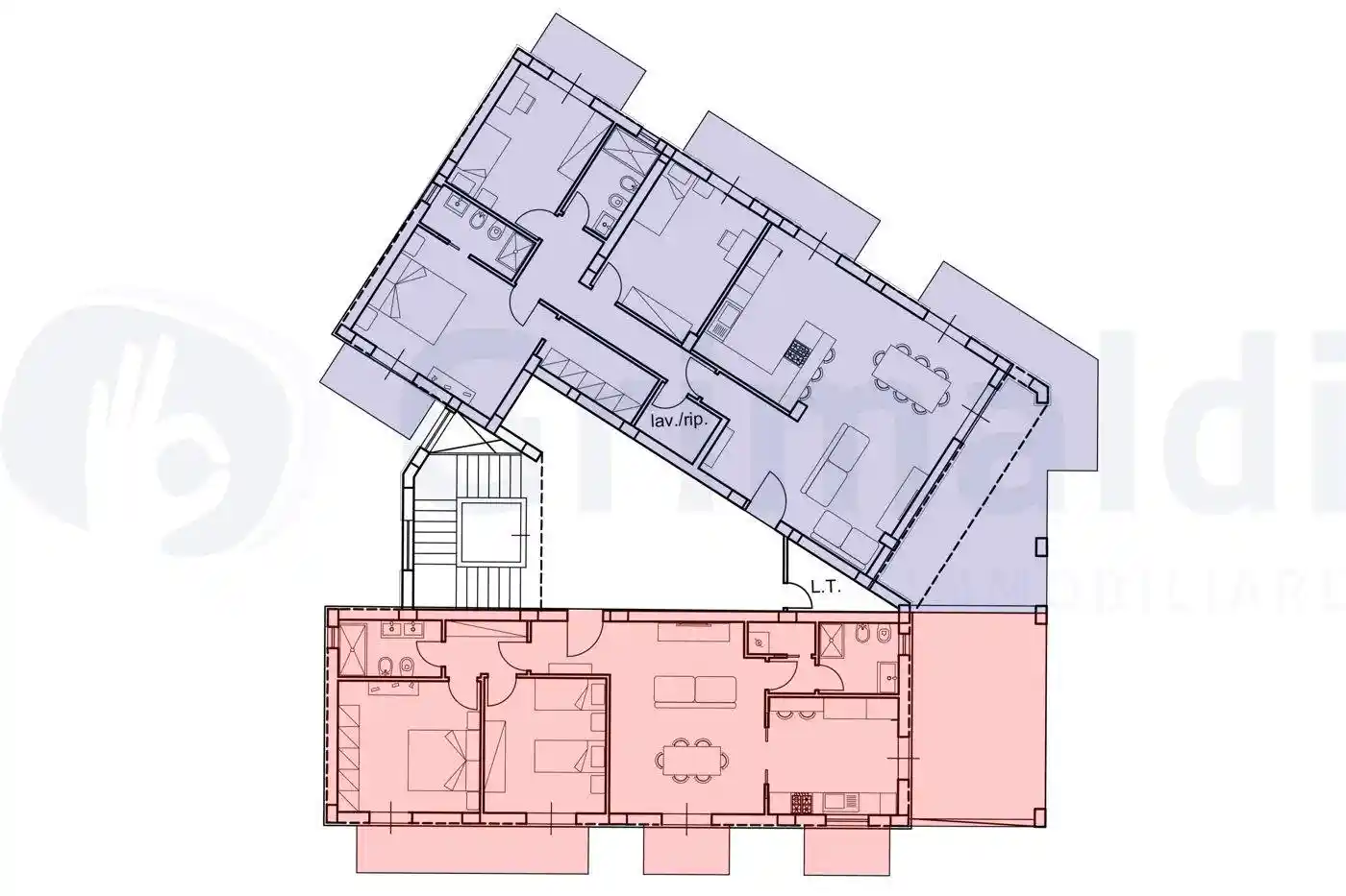
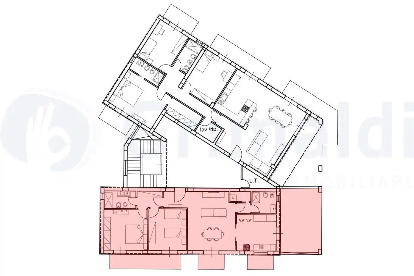
- Quarto Piano (attico):
Quadrilocale con zona living (soggiorno/cucina) che si affaccia su una grande veranda, 3 camere da letto, di cui una con cabina armadio, 2 bagni e ripostiglio per un totale di 100mq interni, due balconi per un totale di 16mq e ampia veranda di 23mq

Tutti gli appartamenti sono stati progettati per garantire ampia luminosità e ottima ventilazione, con ampie balconate che affacciano su ogni ambiente principale. Saranno dotati di impianto di climatizzazione, riscaldamento ad alta efficienza, infissi con vetro camera e cappotto termico, garantendo così una classe energetica A/3 o A/4.

Caratteristiche principali del complesso:
- Ascensore di ultima generazione
- Ampio atrio comune
- Possibilità di personalizzare gli appartamenti in fase di realizzazione
- Parco pubblico con verde e area giochi che sarà realizzato entro il 2026, situato nell'area antistante la palazzina.
Inoltre, l’edificio sarà dotato di ampia area recintata adibita a parcheggi con cancello automatico, e saranno disponibili dei garage che potranno essere acquistati separatamente a partire da €25.000.

Prezzi:
Appartamento a partire da €330.000
Garage: a partire da €25.000

Non perdere l'opportunità di acquistare un immobile nuovo, in una posizione strategica, in una zona che nei prossimi anni vedrà un forte sviluppo urbanistico. Contattaci per maggiori informazioni o per fissare un appuntamento!

Contattaci per maggiori informazioni o per fissare un appuntamento:
Grimaldi Immobiliare Siracusa
Viale Scala Greca 405/d
Tel: 0931 585347 – 351 4729466

Caratteristiche

Piano 4°, con ascensore
Ascensore Si
Stato Nuovo / In costruzione
Riscaldamento Autonomo
Garage 1 in parcheggio/garage comune

Servizi e accessori

Fibra ottica Videocitofono Accesso per disabili Balcone Terrazzo Giardino comune Db_fullname_external_fixtures.id_7m

Posizione

Zona: Grottasanta - Tunisi (Grottasanta, Tunisi, Mazzarrona)

Storico

Pubblicato 29 Dec 2025
Aggiornato 16 Feb 2026
Sul mercato 53 giorni
ID Annuncio 125411211

Recensioni

Vedi tutte
E

Enrico Parodi

5.0

Ho scelto questa agenzia perché mi ha colpito la loro trasparenza e attenzione ai dettagli durante tutto il processo di vendita. Mi sono trovato bene, hanno seguito ogni passo con professionalità e mi...

E

Enzo Falcone

5.0

Ho scelto questa agenzia perché mi hanno colpito la loro flessibilità negli orari e la capacità di seguire ogni dettaglio con grande efficienza nella gestione delle pratiche burocratiche. Dopo aver de...

M

Matteo Chiari

4.7

Ho scelto questa agenzia immobiliare perché mi ha colpito la loro onestà nelle valutazioni e la capacità di ascolto. Sono stato aiutato con professionalità e attenzione, il che mi ha dato molta fiduci...