Casa indipendente
Asta
Asta Casa indipendente

Casa indipendente

Via Roma, 76, Pertica Bassa, Brescia

41.250 €
131
mq
3
Locali
2
Camere

Recensisci questo Immobile

Devi essere registrato per lasciare una recensione.

Accedi

Nessuna recensione ancora. Sii il primo!

Descrizione

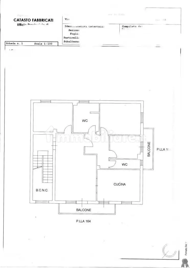
In Comune di Pertica Bassa (BS), frazione Forno d’Ono, via Roma n. 76, piena proprietà di abitazione con accessori disposta da piano terra a piano terzo di fabbricato.
Al piano terra, con accesso indipendente dalla pubblica via, si trova una cantina con finiture al semicivile, dotata di caminetto. Dal civico 76 di via Roma si accede all’abitazione e, attraverso scala esclusiva, al piano primo del
fabbricato, ove si trova la cucina, quindi, con una ulteriore porzione di rampa
scala, al piano secondo, ove si trovano due camere da letto ed il servizio igienico; da una camera da letto si accede ad un balcone dotato di ringhiera
metallica. Al piano superiore (terzo), con accesso indipendente dall’esterno, si trovano un locale di altezza mt 2,40, un servizio igienico e due porzioni di soffitta.

ASTE IMMOBILIARI: Per informazioni e visite immobiliari contattare il
numero 030/6363111. L'immobile viene venduto dal tribunale tramite asta
giudiziaria e il prezzo indicato si riferisce all’offerta minima.
Inoltre, per chi acquista come prima casa, sono previste ulteriori e
vantaggiose agevolazioni. NEOVIT srl consulting è una società di
consulenza che accompagna il cliente in tutto il percorso relativo
all'acquisto tramite asta giudiziaria, abilitata anche nel ritiro dei
crediti immobiliari. Contattaci per avere tutte le informazioni
necessarie, i nostri consulenti sono a tua disposizione per
accompagnarti dalla ricerca dell' immobile fino alla consegna delle
chiavi, compreso l'eventuale assistenza per l'ottenimento di un mutuo.
Il nostro staff è formato da professionisti del settore con competenze
diverse, in grado di fornire una consulenza e assistenza a 360 gradi sia
da un punto di vista tecnico-immobiliare legale.
Il progetto NPL nasce nel nostro studio nel 2022 con l'intento ed al
fine di massimizzare il recupero del credito deteriorato attraverso le
chiusure stragiudiziali dei contenziosi o incentivando la partecipazione
alle aste.

L’acquisto di crediti NPL permette di:

-di acquistare crediti con garanzia ipotecaria a un prezzo vantaggioso
(anche al 50% in meno sull’importo di mercato)

-riqualificare gli immobili acquistati con appositi interventi di
ristrutturazione allo scopo di accrescerne il valore

-ottenere un ritorno certo dai crediti deteriorati in tempi ragionevoli
grazie alle diverse exit strategy

La nostra prestazione non si configura come attività di
intermediazione, in quanto persegue esclusivamente gli interessi del
cliente e i nostri consulenti, legati da un codice deontologico, seguono
l’operazione di acquisto al fine di concludere il miglior affare
possibile.

Caratteristiche

Piano Piano terra
Ascensore No
Stato Buono / Abitabile
Riscaldamento Assente

Servizi e accessori

Esposizione esterna Caminetto Cucina Balcone Impianto tv con parabola satellitare Cantina Infissi esterni in vetro / legno

Posizione

Referente

Marco Legrati

Storico

Pubblicato 02 Jan 2026
Aggiornato 14 Feb 2026
Sul mercato 50 giorni
ID Annuncio 125418569

Recensioni

Vedi tutte
M

Maurizio Lombardo

4.3

Ho trovato un'agenzia seria e affidabile che mi ha accompagnato in ogni visita, facendomi sentire sempre seguito e a mio agio. Dopo il divorzio, sono stato aiutato a vendere la casa senza stress, graz...

V

Vittorio Padovani

4.3

Ho trovato un appartamento con vista mare perfetto, rispondente esattamente alle mie esigenze. L'agenzia ha dimostrato grande attenzione alle mie richieste, guidandomi passo dopo passo con onestà e pr...