Appartamento
Asta
Asta Appartamento Nuovo

Appartamento

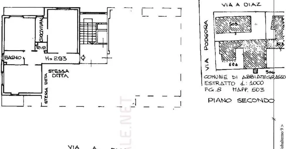
Via Generale Armando Diaz , 15, Abbiategrasso, Milano

62.850 €
75
mq
5
Locali
3
Camere

Recensisci questo Immobile

Devi essere registrato per lasciare una recensione.

Accedi

Nessuna recensione ancora. Sii il primo!

Descrizione

appartamento al piano secondo di circa 75 mq costituito da corridoio di ingresso e di distribuzione dei locali, soggiorno-pranzo con limitrofo vano cuoci vivande, due camere da letto, servizio igienico, un piccolo ripostiglio e due balconi. annessa cantina di un unico vano nel seminterrato.

Caratteristiche

Piano 2° piano
Ascensore No
Stato Buono / Abitabile
Riscaldamento Centralizzato

Servizi e accessori

Cucina Balcone Parzialmente arredato Cantina Infissi esterni in vetro / legno

Posizione

Storico

Pubblicato 25 Dec 2025
Aggiornato 15 Feb 2026
Sul mercato 58 giorni
ID Annuncio 125422139

Recensioni

Vedi tutte
C

Cecilia Pasquale

4.7

Ho trovato la mia seconda casa al mare grazie a un'agenzia che si è dimostrata molto professionale e attenta alle mie esigenze, ascoltando con pazienza ogni mio desiderio. Sono stata seguita passo dop...

E

Erica Palumbo

4.7

Stavo cercando un appartamento in zona Milano, preferibilmente vicino al mio nuovo lavoro, e ho trovato questa agenzia che mi ha colpito per l’ampia scelta di immobili disponibili. Sono stata accompag...

A

Arianna Pandolfi

4.3

Se cercate un’agenzia immobiliare affidabile a Milano, consiglio di rivolgervi a chi conosce bene il mercato locale e sa gestire con attenzione ogni dettaglio. Sono stata seguita passo passo durante t...

N

Noemi Proietti

4.7

Ho trovato un appartamento perfetto in pieno centro grazie a questa agenzia. Sono stata seguita con molta cura e attenzione ai dettagli, il che ha reso tutto il processo davvero semplice e trasparente...

N

Nunzia Boni

4.7

Ho scelto questa agenzia perché cercavo un team affidabile e onesto, capace di aiutarmi a trovare un appartamento più spazioso per la mia famiglia in crescita. Sono stata molto soddisfatta della profe...