Asta Appartamento Nuovo

Appartamento

Via Battisti, 52, Cornate d'Adda, Monza e Brianza

Prezzo
77
mq
4
Locali
3
Camere

Recensisci questo Immobile

Devi essere registrato per lasciare una recensione.

Accedi

Nessuna recensione ancora. Sii il primo!

Descrizione

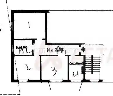
Appartamento al piano primo con ingresso e disimpegno.
Cucina con accesso al balcone.
Tre camere e un bagno.
Cantina al piano terra.

Nessun costo di iscrizione con Case all'Asta - Acquista senza Rischi.

Data di asta: 12/03/2026
Offerta minima: 57.750 €
Procedura: 18/2025 lotto 1

Su www.case-asta.it scopri tutte le occasioni

PERCHÉ CONVIENE COMPRARE ALL'ASTA
• Risparmio medio del 37%
• Mutuo anche al 100%
• Investimento redditizio

COME FUNZIONA
• Visita all'immobile
• Analisi tecnico-legale del nostro avvocato
• Valutazione del reale valore dell'immobile
• Partecipazione all'asta
• Gestione post-asta fino alle chiavi

PERCHÈ SCEGLIERE NOI
• Sicurezza: Ti tuteliamo al 100% con consulenza legale inclusa
• Zero costi di iscrizione: Siamo gli unici a non chiedere un contributo iniziale
• Semplicità: Niente linguaggi complicati. Siamo diretti, pratici e rendiamo facile il tuo percorso

CHI SIAMO | Case all'Asta
• 600+ aste aggiudicate con successo
• 37% di risparmio medio rispetto al valore di mercato
• 94% di clienti soddisfatti

SEDI Le sedi a te più vicine sono: Lallio (BG), via Provinciale 9/A e Milano, Via Benigno Crespi, 19 - edificio MAC 4 - piano 4.

Se preferisci, possiamo seguire l'intero processo anche da remoto, offrendoti la massima flessibilità.
Siamo presenti anche a Lodi, Pavia, Brescia, Piacenza, Cremona, Torino.

Case all'Asta srl precisa che i dati contenuti in questo annuncio potrebbero contenere errori e/o omissioni.
Tali dati saranno esaminati e verificati dal nostro ufficio legale interno prima della partecipazione all'asta per garantire l'accuratezza.

Caratteristiche

Piano 1°, con ascensore
Ascensore Si
Riscaldamento Autonomo

Servizi e accessori

Porta blindata Balcone Impianto tv con parabola satellitare Cantina Infissi esterni in triplo vetro / pvc

Posizione

Storico

Pubblicato 28 Dec 2025
Disattivato 09 Mar 2026
Sul mercato 147 giorni
ID Annuncio 125441113

Recensioni

Vedi tutte
V

Vincenzo Palmieri

4.3

Se cercate un’agenzia immobiliare affidabile a Brescia, vi consiglio di rivolgervi a loro. Mi sono trasferito in una zona più tranquilla dopo la pensione e sono stato seguito con grande disponibilità...

P

Piero Bernardi

5.0

Ho trovato un affitto perfetto grazie a questa agenzia, che si è dimostrata incredibilmente professionale e attenta a ogni dettaglio. Sono stato seguito con molta cura e competenza nella trattativa, i...

T

Tullio Marino

5.0

Quello che mi ha colpito di più è stata la professionalità con cui hanno spiegato ogni passo della vendita, rendendo tutto molto più semplice e chiaro. Avevano una conoscenza profonda del mercato di B...

A

Amedeo Masi

4.3

Le mie precedenti esperienze con agenzie mi avevano lasciato un po’ insoddisfatto, ma questa volta ho trovato davvero quello che cercavo. Hanno un’ampia scelta di immobili e una conoscenza approfondit...

A

Alice Tommasi

4.7

Avevo sempre sognato un appartamento con vista mare e questa agenzia è stata fantastica nel realizzare il mio desiderio. Mi sono sentita seguita con molta pazienza e disponibilità, anche quando le mie...