Appartamento
Asta
Asta Appartamento

Appartamento

Via don l. maran , 3, Terrassa Padovana, Padova

43.500 €
80
mq
4
Locali
2
Camere

Recensisci questo Immobile

Devi essere registrato per lasciare una recensione.

Accedi

Nessuna recensione ancora. Sii il primo!

Descrizione

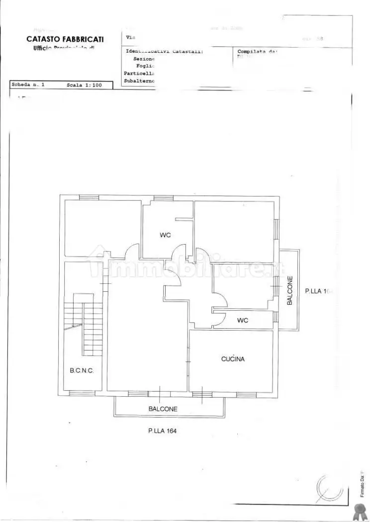
Appartamento al piano secondo, prospetto sul lato nord con accesso dalla scala "A", così disposto: ingresso, ripostiglio, soggiorno-pranzo, cucina, disimpegno, due camere da letto, bagno, due poggioli e garage al piano terra per una superficie commerciale complessiva di mq. 82. LIBERO
Immobile all'asta, contattaci per fissare una prima consulenza gratuita presso il nostro Studio.
Siamo aperti dal lunedì al sabato, su appuntamento.

AD ASTA affiliato Gardemar Srl offre servizi professionali di consulenza nell'ambito di procedure esecutive immobiliari e fallimentari.

La nostra missione è quella di avvicinare il privato e le società agli acquisti di immobili oggetto di procedura esecutiva immobiliare e, al contempo, cercare di aiutare i soggetti esecutati nel risolvere la propria posizione debitoria grazie ad accordi di saldo e stralcio con i relativi creditori.

IL NOSTRO TEAM DI ESPERTI E’ SPECIALIZZATO ANCHE IN ACQUISTO PRE-ASTA.

Ad oggi Gardemar vede un network di 19 filiali autonome su territorio nazionale e dispone della collaborazione di uno Studio Legale partner.

Servizi di consulenza offerti:

Aste giudiziarie immobiliari
Esecuzioni immobiliari
Procedure fallimentari
Ricerca di immobili all'asta
Procedura di saldo e stralcio
Aste telematiche immobiliari
Business plan per i costi di partecipazione all'asta
Valutazione globale dell'investimento
Analisi delle perizie tecniche
Analisi su eventuali abusi edilizi
Analisi sugli avvisi di vendita e ordinanze del giudice
Analisi su eventuali diritti di terzi sull'immobile
Consulenza post-aggiudicazione asta immobiliare
Ottenimento finanziamenti tramite professionisti dedicati
Consulenza legale tramite Studio Legale partner
Consulenza costi di ristrutturazione immobiliare con nostri partner affiliati.

Caratteristiche

Piano 2° piano, con ascensore
Ascensore Si
Stato Buono / Abitabile
Riscaldamento Assente
Garage 1 in box privato/box in garage

Posizione

Storico

Pubblicato 04 Jan 2026
Aggiornato 15 Feb 2026
Sul mercato 47 giorni
ID Annuncio 125444599

Recensioni

Vedi tutte
M

Marina Celentano

4.3

Ho trovata un'agenzia immobiliare molto professionale a Campodarsego, che mi ha seguito con attenzione e rispetto in ogni fase. Mi sono sentita supportata anche nella richiesta di mutuo e nella gestio...

V

Vanessa Colella

4.3

Se cercate un'agenzia immobiliare, consiglio di sceglierne una che ascolti davvero le vostre esigenze e conosca bene il mercato locale. Mi sono trovata molto bene: sono stata seguita passo dopo passo,...