Asta Appartamento Nuovo

Appartamento

Via Colle Nuovo, Cassino, Frosinone

Prezzo
682
mq
5+
Locali
5
Camere

Recensisci questo Immobile

Devi essere registrato per lasciare una recensione.

Accedi

Nessuna recensione ancora. Sii il primo!

Descrizione

Riferimento: 4479575

Via Collenuovo loc. Giunture, Cassino Frosinone

Lotto: LOTTO UNICO

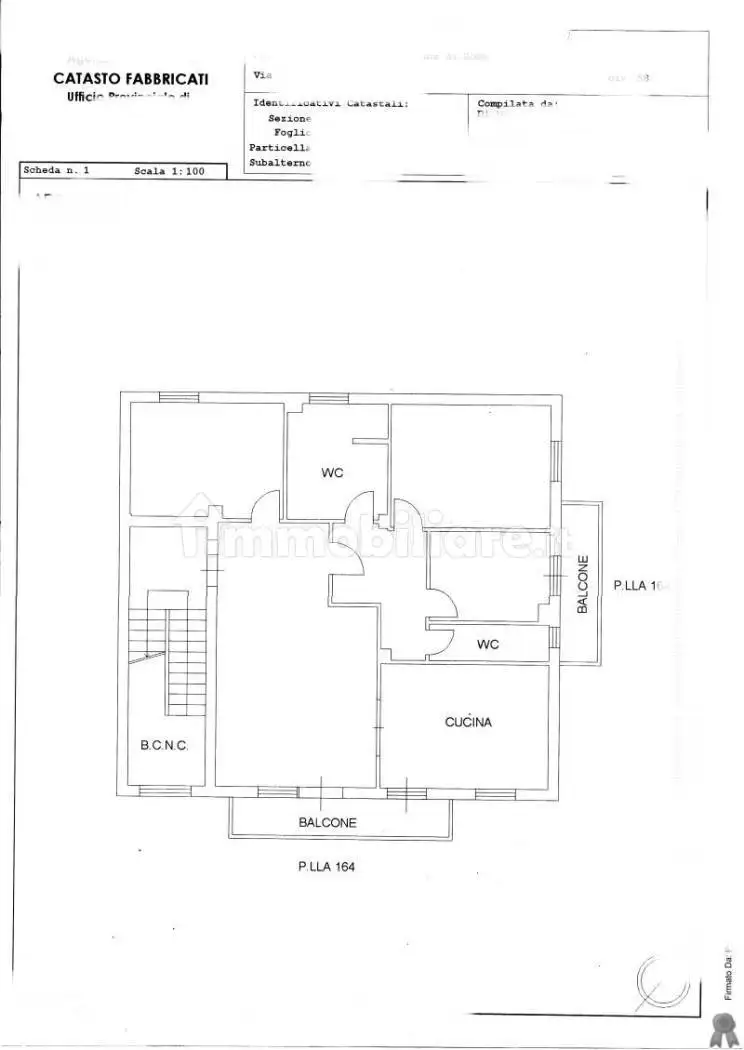
LOTTO 3 Bene N° 1 - Fabbricato civile ubicato a Cassino (FR) - Via Collenuovo loc. Giunture Trattasi di un fabbricato per civile abitazione in corso di costruzione (F/3) sito in Cassino (FR) alla Via Collenuovo, località "Giunture", e iscritto in catasto alla sezione urbana del Comune di Cassino al foglio n. 78 particella 376, zona cens. 1 in corso di costruzione privo di rendita ( viene posto in vendita per il diritto di Proprietà (1/1)

Data di vendita: 26/02/2026 10:00

Offerta minima: € 47.990

Valore di stima€ 540.105,50

Studio di Fattibilità Pre-Asta

Offriamo consulenza legale completa per l'acquisto tramite asta giudiziaria.
I nostri servizi includono:

Ricerca dell'immobile secondo le esigenze del cliente
Studio di fattibilità pre-asta in fase di richiesta di visita
Studio di fattibilità del mutuo tramite banche convenzionate
Esame della perizia e documentazione correlata
Verifica legale

Preparazione e deposito delle offerte di partecipazione

Gestione della gara

Consulenza post-aggiudicazione fino all'emissione del decreto di trasferimento o del rogito

Vi invitiamo a fissare una prima consulenza gratuita presso una delle nostre 80 sedi sparse su tutto il territorio per ricevere maggiori informazioni sul processo di partecipazione ad un'asta giudiziaria, tempistiche, costi e modalità di acquisto.

Ulteriore documentazione disponibile verrà messa a disposizione durante la consulenza.

+39 06 4006 1824

Visitate il nostro sito www.asteflorio.com dove potrete trovare più di 20.000 Aste disponibili
NB: Le immagini potrebbero essere solo esempi e non rappresentare gli immobili reali. Le coordinate geografiche, fornite automaticamente da Google, possono contenere inesattezze. Segnalate eventuali errori e rimuoveremo o correggeremo gli annunci non conformi.

L'ESATTEZZA DI TUTTI I DATI PUBBLICATI INOLTRE SARA' CONFERMATA IN SEDE DI CONSULENZA.

Caratteristiche

Piano Piano terra
Ascensore No
Stato Nuovo / In costruzione
Riscaldamento Assente

Servizi e accessori

Porta blindata Cucina Terrazzo Impianto tv con parabola satellitare Infissi esterni in vetro / metallo Esposizione doppia

Posizione

Referente

Aste Florio

Storico

Pubblicato 28 Dec 2025
Disattivato 04 Apr 2026
Sul mercato 100 giorni
ID Annuncio 125445489

Recensioni

Vedi tutte
G

Giulia Lanzoni

4.0

Ricordo ancora il momento in cui ho visto il terreno e subito ho capito che era quello giusto. Sono stata subito seguita con pazienza e rapidità, trovando tutte le risposte alle mie domande senza stre...

D

Diana Geraci

4.3

Ho trovato l'investimento immobiliare perfetto grazie alla loro serietà e alla conoscenza approfondita del mercato locale. Sono stata seguita passo dopo passo, e mi hanno aiutata a fare scelte sicure...

B

Barbara Laurenti

4.0

Grazie mille per avermi seguita con tanta professionalità e competenza! Mi sono trovata davvero bene, sapevo di poter contare su un’agenzia affidabile e conosciuta bene il mercato locale, e così è sta...