Vendita Villa Nuovo

Villa unifamiliare via Papa Paolo VI, Calcio

Via Papa Paolo VI, Calcio, Bergamo

Prezzo
187
mq
4
Locali
3
Camere
2
Bagni

Recensisci questo Immobile

Devi essere registrato per lasciare una recensione.

Accedi

Nessuna recensione ancora. Sii il primo!

Descrizione

CALCIO:
proponiamo in vendita una villa di nuova costruzione, progettata per offrire comfort e funzionalità.
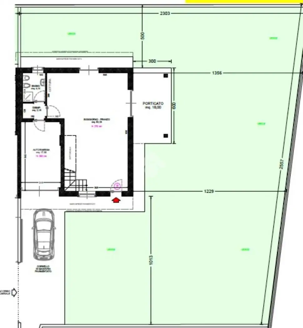
L'immobile, composto da quattro locali, assicura finiture moderne e impianti all'avanguardia. Gli interni sono studiati per accogliere la luce naturale, creando un ambiente accogliente e raffinato. La villa è circondata da un giardino privato, ideale per momenti di relax all'aperto. La posizione strategica nel comune di Calcio offre tranquillità e privacy, pur essendo ben collegata ai principali servizi e vie di comunicazione. Questa proprietà rappresenta un'opportunità unica per chi cerca una soluzione abitativa di qualità in un contesto esclusivo.

Caratteristiche

Ascensore No
Stato Nuovo / In costruzione
Riscaldamento Autonomo
Garage 1 in box privato/box in garage, 1 in parcheggio/garage comune

Servizi e accessori

Balcone Giardino privato

Posizione

Referente

Cassandra Bianchessi .

Storico

Pubblicato 27 Dec 2025
Aggiornato 15 Apr 2026
Sul mercato 110 giorni
ID Annuncio 125448265

Recensioni

Vedi tutte
B

Beatrice Tibaldi

4.0

Ho scelto questa agenzia perché mi è subito sembrata molto attenta ai dettagli e disponibile a seguire ogni mio passo. Sono stata davvero soddisfatta del supporto che mi hanno dato, soprattutto durant...