Asta Appartamento Nuovo

Appartamento all'asta via Corradino, Pomigliano d'Arco

Via Corradino, Pomigliano d'Arco, Napoli

Prezzo
75
mq
3
Locali
2
Camere

Recensisci questo Immobile

Devi essere registrato per lasciare una recensione.

Accedi

Nessuna recensione ancora. Sii il primo!

Descrizione

OTTIMA OCCASIONE - ASTA IMMOBILIARE

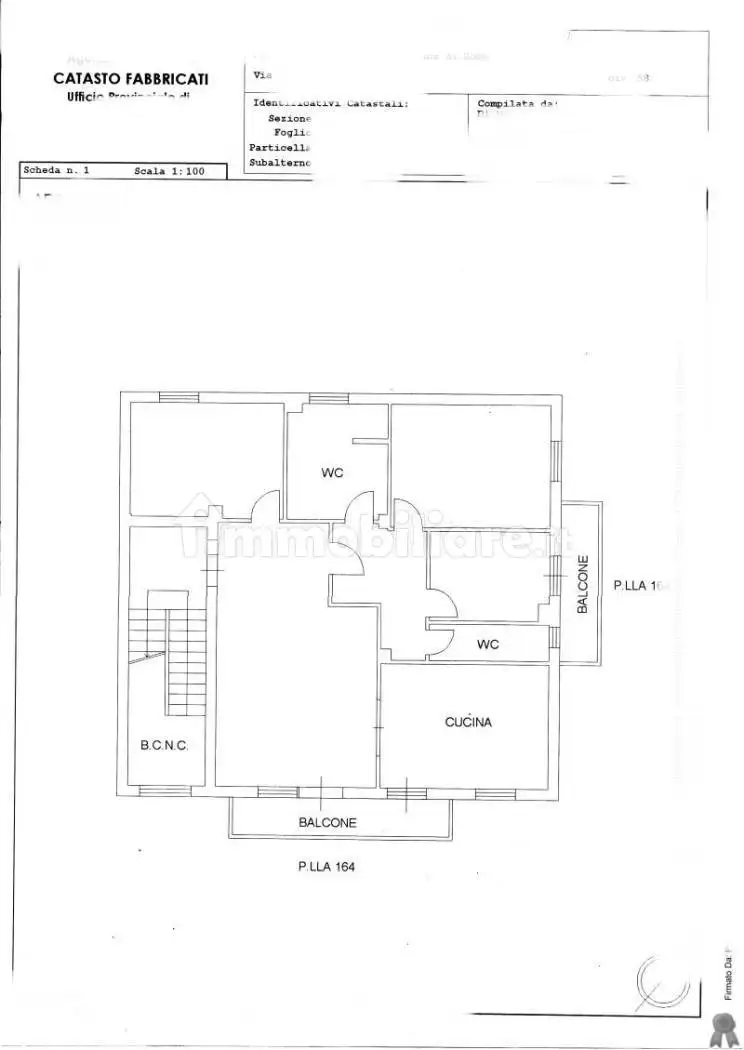
Piena ed intera proprietà dell’appartamento ubicato al piano terra del fabbricato ubicato in Pomigliano D’Arco alla Via Corradino n. 39. Nello specifico, l’appartamento è costituito da ingresso/soggiorno, cucina e due camere più servizio, il tutto per una superficie calpestabile di 75 mq. - Via Corradino
...

GLI AVVOCATI SPECIALIZZATI IN ASTE IMMOBILIARI DI SIMPLEX DOMUS GARANTISCONO UN ACQUISTO FACILE, SICURO ED ECONOMICO.

CHIAMA PER AVERE MAGGIORI INFORMAZIONI.

Il team di Avvocati di Simplex Domus è specializzato anche in acquisto in pre-asta e acquisto di crediti deteriorati NPL.

Comprare un immobile all’asta è una eccellente opportunità economica.

Ricordiamo che è possibile comprare un immobile all'asta tramite un mutuo e che tutti i clienti di Simplex Domus ricevono una consulenza mutuo gratuita.

Più di 1000 famiglie e aziende hanno scelto Simplex Domus.

Tutti gli annunci immobiliari hanno scopo pubblicitario e Simplex Domus non può garantire la totale esattezza o contemporaneità di tutte le informazioni riportate. Pertanto consigliamo di visionare tutta la documentazione del tribunale tramite un nostro Avvocato specializzato.

Grazie per aver visionato il nostro annuncio.

Caratteristiche

Piano 1°, con ascensore
Ascensore Si
Stato Buono / Abitabile
Riscaldamento Autonomo
Garage 1 in box privato/box in garage, 1 in parcheggio/garage comune

Servizi e accessori

Videocitofono Cancello elettrico Fibra ottica Porta blindata Balcone Terrazzo Impianto tv con parabola satellitare Cantina Giardino comune Infissi esterni in doppio vetro / pvc Esposizione doppia

Posizione

Referente

Simplex Domus

Storico

Pubblicato 24 Dec 2025
Disattivato 28 Feb 2026
Sul mercato 154 giorni
ID Annuncio 125462299

Recensioni

Vedi tutte
G

Greta Capraro

4.7

Durante il processo mi sono sentita molto rassicurata, perché sono stata seguita passo passo e tutto è stato molto chiaro. Ho trovato l’agenzia davvero efficiente, con risposte rapide e spiegazioni se...