Indietro
Vendita Casa indipendente Nuovo Luxury

Terratetto unifamiliare via Alcide de Gasperi, Centro, Altivole

Via Alcide de Gasperi, Altivole, Treviso

Prezzo
180
mq
4
Locali
3
Camere
3
Bagni

Recensisci questo Immobile

Devi essere registrato per lasciare una recensione.

Accedi

Nessuna recensione ancora. Sii il primo!

Descrizione

Vendita diretta senza mediazione, di una casa singola di nuova costruzione in centro ad Altivole a ridosso di tutti i servizi.
La casa offre ampi e luminosi spazi abitativi ed elevato confort abitativo, prestando particolare attenzione all’efficienza energetica ed all’ambiente.
Particolare attenzione è stata posta per l’isolamento del fabbricato, utilizzando triplo vetro per porte e finestre, mentre per il riscaldamento e raffrescamento viene utilizzata una pompa di calore abbinata ad un impianto fotovoltaico.
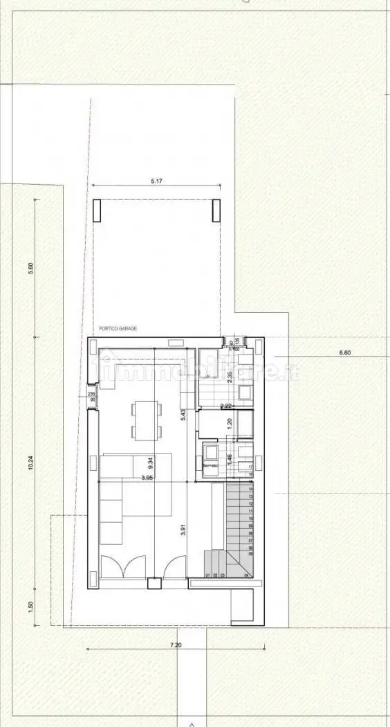
La casa si sviluppa su due piano fuori terra dove troviamo al piano terra un’ampia e luminosa zona giorno a sud di quasi 50 mq., con una grande vetrata scorrevole e porta laterale, ottenendo così una elevata illuminazione naturale, sempre al piano terra troviamo un disimpegno dal quale si accede ad un confortevole ed ampio bagno completo oppure alla lavanderia wc. All’esterno troviamo un giardino di generose dimensioni oltre 400 mq. su lotto di 550mq circa
Salendo le scale accediamo al reparto notte composto da tre camere, una matrimoniale una doppia ed una singola, oltre a disimpegno e bagno completo, essendo in progetto è possibile personalizzare spazi interni e finiture su specifiche richieste del cliente.
Per qualsiasi informazione non esitate a contattarci.
NOTA: Si avvertono i Signori clienti che gli indirizzi inseriti all'interno dell'annuncio sono puramente indicativi e non rispecchiano la realtà. Questa indicazione vuole essere un ausilio nell'indicazione della zona pur rispettando la Privacy dei venditori.

Per visionare l'immobile o per ricevere ulteriori informazioni contattateci senza impegno:
AGENZIA ASOLANA IMMOBILIARE di Luigi e Moira Piccolotto
Viale Tiziano 5/a
31011 - CASELLA D'ASOLO (TV)
Tel. + 39 0423 529464
Cell. 347.9411092 Claudio

Visita il nostro sito internet: www.asolanaimmobiliare.it

Puoi visionare altre proposte di immobili ad uso residenziale, agricolo, industriale-commerciale, direttamente sul nostro sito, troverai inoltre molte altre proposte presso la nostra sede, vienici a trovare.
ESEGUIAMO DA TRENT’ANNI COMPRAVENDITE, AFFITTANZE, LOCAZIONI, STIME, PERIZIE, E CONSULENZE IMMOBILIARI, LA NOSTRA ESPERIENZA AL TUO SERVIZIO

Caratteristiche

Piano Piano terra
Ascensore No
Stato Nuovo / In costruzione
Riscaldamento Autonomo
Garage 2 in box privato/box in garage

Servizi e accessori

Fibra ottica Porta blindata Accesso per disabili Terrazzo Giardino privato

Posizione

Storico

Pubblicato 25 Dec 2025
Disattivato 14 Apr 2026
Sul mercato 112 giorni
ID Annuncio 125483901

Recensioni

Vedi tutte
M

Marina Murgia

5.0

Grazie mille per avermi aiutata a trovare l’appartamento perfetto ad Asolo! Mi sono trovata davvero bene, sono state super disponibili e hanno dimostrato molta affidabilità e conoscenza delle normativ...

N

Nino Pagani

5.0

Stavo cercando un’agenzia affidabile e trasparente per vendere un appartamento di famiglia ad Asolo e ho trovato quella giusta. Sono stato molto soddisfatto del modo in cui hanno seguito ogni fase, as...

G

Gianluca Palmieri

4.7

Ricordo ancora la sensibilità con cui mi hanno seguito, anche nei momenti più difficili del divorzio. Mi hanno aiutato a trovare il modo giusto per vendere casa in modo rapido e senza stress, mostrand...

P

Pina Mancino

4.7

Appena ho varcato la soglia di questa agenzia, sono stata colpita dalla loro disponibilità e attenzione ai dettagli. Mi hanno seguita passo passo, ascoltando davvero le mie esigenze e dimostrando molt...

N

Nicoletta Cortese

4.7

Questa agenzia mi ha colpito subito per la sensibilità nel capire cosa cercavo e il loro grande rispetto delle normative. Mi ha seguita passo passo nelle visite, spiegandomi tutto con calma e professi...