Asta Villa

Villa

Piazza Duomo, 2, Termini Imerese, Palermo

Prezzo

Recensisci questo Immobile

Devi essere registrato per lasciare una recensione.

Accedi

Nessuna recensione ancora. Sii il primo!

Descrizione

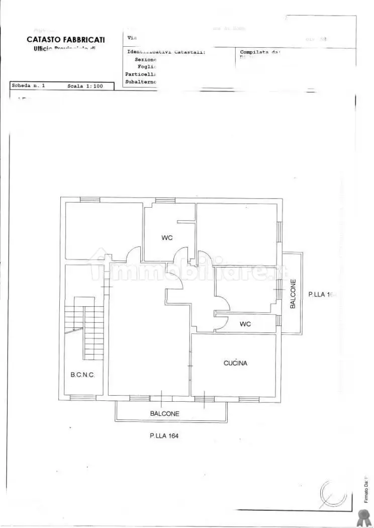
LOTTO UNICOPiena proprietà di villetta ubicata a Termini Imerese (PA) - Contrada Impalastro, piano T-1, con terreno di pertinenza e un fabbricato rurale diruto.Il bene in oggetto è costituito da un fabbricato isolato, in Termini Imerese, Contrada Impalastro, aduso civile abitazione, a due elevazioni fuori terra, composto da cucina, W.C., soggiorno-pranzo e veranda a piano terra; tre vani e ingresso a primo piano, della superficie convenzionale di 285,96 mq., in Catasto Fabbricati al foglio 22, particella 887, realizzato sopra terreno corrispondente alla ex particella 310 del foglio 22 del C.T. con annesso fabbricato rurale diruto riportato nel C.T. al foglio 22 particella 308. Urbanisticamente il bene ricade in zona E Verde agricolo, distante dal centro abitato, raggiungibile dalla strada vicinale Impalastro e, da qui, con una stradella privata. La zona non è servita da mezzi pubblici. La villetta è fornita di acqua e corrente elettrica.L’edificio è costituito da due elevazioni collegate da una scala esterna. All’interno, i soffitti del primo piano sono da ristrutturare per l’avvenuto “sfondellamento” dei solai di copertura in laterocemento, ossia per l’avvenuto distacco e la successiva caduta della parte inferiore delle pignatte, compreso lo strato di intonaco. Le macerie dovute allo “sfondellamento” dei soffitti del primo piano, che l’edificio presentava al suo interno, indicate in perizia, sono state rimosse a cura della Custodia. L’edificio necessita di una globale opera di manutenzione straordinaria.Non esiste il certificato energetico dell’immobile. Non esiste la dichiarazione di conformità dell'impianto elettrico. Non esiste la dichiarazione di conformità dell’impianto idrico. L’immobile pignorato non risulta inserito in contesto condominiale né avente parti comuni con altre unità immobiliari. Non si rileva l’esistenza di servitù gravanti sul bene pignorato. L’immobile risulta libero anche se in possesso ad uno dei debitori che ivi vi detiene propri arredi di scarso valore.I beni sono meglio descritti nella relazione di stima del 12/04/2016 a firma dell’esperto Arch. Salvatore Andrea Massaro e nella perizia integrativa del 15/04/2023 alle quali si fa espresso rinvio anche per tutto ciò che concerne l’esistenza di eventuali oneri e pesi a qualsiasi titolo gravati sui beni.Secondo quanto risulta dalle perizie dell’esperto estimatore, per quanto concerne la regolarità edilizia, l'immobile risulta regolare per la legge n° 47/1985. La costruzione non è antecedente al 01/09/1967. Non sono presenti vincoli artistici, storici o alberghieri. Non sono presenti diritti demaniali o usi civici. L'immobile non risulta agibile.Per il fabbricato in catasto al foglio 22 particella 887, risulta presentata al Comune di Termini Imerese, la richiesta di condono edilizio in data 01/04/1986, prot. n. 8472, ai sensi dell'art. 31 della Legge n. 47/85; L’oblazione complessiva dichiarata di £ 2.660.400 è stata integralmente pagata; L’abuso è stato realizzato “antecedentemente al 22/10/1980”.Risulta un provvedimento di diniego di concessione edilizia in sanatoria per carenza di documentazione.Non risulta emesso ordine di demolizione. Secondo la perizia dell’esperto estimatore, la richiesta di condono edilizio presentata al Comune in data 01/04/1986, prot. n. 8472, ai sensi dell'art. 31 della Legge n. 47/85 è regolare per la corrispondenza delle superfici indicate nella richiesta confrontate con quelle indicate negli elaborati progettuali agli atti del Comune a corredo della pratica di sanatoria, essendo in particolare, il piano terra, indicato in quegli elaborati grafici come spazio coperto ma senza pareti laterali e destinato a “Patio”, dunque computabile come superficie non residenziale; accertato che la superficie utile effettiva del piano terra, escludendo la parte ampliata di cui si è stimato il costo di demolizione, in considerazione dell’avvenuta chiusura del “patio”, è pari a mq 40,28; considerato che la chiusura del patio a piano terra ha determinato un cambio di destinazione d’uso rispetto a quanto dichiarato nella richiesta di condono edilizio presentata ai sensi dell'art. 31 della Legge n. 47/85 in data 01/04/1986, prot. n. 8472, e tale difformità è tuttavia sanabile ai sensi della legge 326/2003 essendovi prova documentale della sua esistenza alla data dell'accatastamento dell'intero edificio; accatastamento depositato il 05/03/2003 che infatti, in planimetria, descrive il piano terra come chiuso e provvisto di infissi;Risulta abuso non sanabile l’ampliamento relativo alla realizzazione della cucina e del vano wc nella parete Est di retroprospetto.L’aggiudicatario potrà presentare istanza di condono giacchè gli immobili pignorati si trovano nelle condizioni previste dall’articolo 40, sesto comma, della legge 28 febbraio 1985, n. 47 ovvero dall’articolo 46, comma 5 del decreto del Presidente della Repubblica 6 giugno 2001, n. 380.

Caratteristiche

Riscaldamento Assente

Posizione

Referente

Claudia Bonacqua

Storico

Pubblicato 04 Jan 2026
Disattivato 11 Mar 2026
Sul mercato 140 giorni
ID Annuncio 125503087

Recensioni

Vedi tutte
S

Sandro Polito

4.7

Durante il processo mi sono sentito tranquillo e supportato, grazie all'accompagnamento costante nelle visite e al modo pacato in cui hanno gestito ogni dettaglio. Sono stato aiutato a trovare un appa...

F

Federica Costantini

4.3

Ho trovato l'appartamento vista mare che cercavo grazie a un'agenzia molto professionale. Mi sono sentita seguita passo dopo passo, con tanta attenzione e sincerità nelle valutazioni, anche quando si...

F

Fabio Cirillo

4.0

Quello che mi ha spinto a scegliere questa agenzia è stata la trasparenza e l’attenzione alle mie esigenze, che ho trovato fin dal primo colloquio. Sono stato molto soddisfatto del modo in cui mi hann...