Appartamento
Asta
Asta Appartamento Nuovo

Appartamento

Via Foggia, 94, 70042 Mola di Bari BA, Italia, Mola di Bari, Bari

39.375 €
36
mq
2
Locali
2
Camere

Recensisci questo Immobile

Devi essere registrato per lasciare una recensione.

Accedi

Nessuna recensione ancora. Sii il primo!

Descrizione

Asta appartamento a Mola di Bari (BA) [SY548078]
Via Foggia, 94, 70042 Mola di Bari BA, Italia
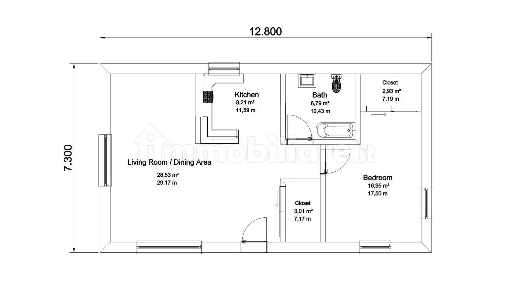
Appartamento al piano terzo costituito da ingresso-soggiorno che si affaccia sulla veranda scoperta con tettoia adibita a cucina non autorizzata. La zona notte è composta da una camera da letto, un bagno e una cameretta da letto posizionata in un vano individuato come cucina. L’alloggio sviluppa una superficie utile di 36,15 mq a cui va aggiunto un piccolo deposito di 1,00 mq ed il lastrico solare (ad uso esclusivo dell’esecutato) di 41,60 mq, che ospita un locale abusivo di 9,80 mq.

Proposta immobiliare in asta. Info dettagliate in agenzia o telefonicamente.

Possibilita’ di Mutuo al 100%

Per maggiori informazioni puoi contattare il nostro referente di zona

SU QUESTO IMMOBILE E’ POSSIBILE:

- Mutuo al 100%
- Visita Interni
- NO Oneri Notarili
- Nessuna Ipoteca
- Agevolazione Prima Casa

Le foto pubblicate potrebbero non corrispondere all'immobile specifico, i documenti ufficiali sono visionabili in filiale.

CENTRO ASTE OFFRE I SEGUENTI SERVIZI:

1. PRIMA CONSULENZA
Appuntamento presso una delle 50 Filiali in Italia per offrire chiarimenti sulle aste ed ascoltare le tue esigenze immobiliari.

2. MEDIAZIONE CREDITIZIA
Servizio esclusivo ad alto valore aggiunto, proponendo un ventaglio di prodotti tra i più completi con studio fattibilità per la partecipazione in asta con mutuo fino al 100%

3. ASSISTENZA TECNICO - LEGALE
- Ricerca Immobili ed invio settimanale per email
- Studio della perizia e della documentazione
- Accertamenti catastali per eventuali abusi edilizi
- Accompagnamento Visita Immobile
- Disbrigo pratiche per la partecipazione
- Rappresentanza Legale il giorno della vendita
- Rilascio del decreto di trasferimento in tempi brevi
- Assistenza per il Saldo Prezzo
- Compilazione F24 per Tasse
- Disbrigo Pratiche per Eventuale Sanatoria
- Assistenza alla Consegna Immobile

Per maggiori informazioni puoi contattare il nostro referente di zona
Data Asta: 17-03-2026
Codice Riferimento: SY548078

Caratteristiche

Piano
Ascensore No
Stato Buono / Abitabile
Riscaldamento Autonomo

Servizi e accessori

Cucina Impianto tv con parabola satellitare

Posizione

Referente

Alessio Niccolai

Storico

Pubblicato 02 Jan 2026
Aggiornato 14 Feb 2026
Sul mercato 50 giorni
ID Annuncio 125513849

Recensioni

Vedi tutte
S

Stefania Tedesco

4.3

Mi sono affidata a quest'agenzia perché cercavo chiarezza e professionalità fin dall'inizio, e sono stata davvero colpita dalla loro trasparenza. Mi hanno seguita passo passo, gestendo con grande effi...

N

Nicoletta Donati

4.3

Stavo cercando una casa più vicina ai miei genitori anziani, e ho trovato l’agenzia giusta per aiutarmi. Mi sono sentita subito seguita con grande cortesia e professionalità, e hanno trovato la posto...

A

Antonella Battaglia

4.3

Stavo cercando un ufficio a Firenze per la mia attività e ho trovato questa agenzia che si è mostrata davvero attenta alle mie esigenze. Mi hanno seguito passo passo, aiutandomi a trovare la soluzione...

A

Anna Rossetti

4.7

Ho trovato un meraviglioso appartamento con vista mare grazie a un'agenzia davvero competente e professionale. Sono stata seguita passo dopo passo con grande cura e attenzione, e la loro conoscenza de...