Vendita Appartamento

Appartamento

Via Antonio Gramsci, 10, 20060 Gessate MI, Italia, Gessate, MI,, Gessate, Milano

Prezzo
Ottimo Affare: 47% sotto la media
159
mq
4
Locali
4
Camere
2
Bagni

Recensisci questo Immobile

Devi essere registrato per lasciare una recensione.

Accedi

Nessuna recensione ancora. Sii il primo!

Descrizione

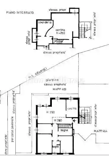
Asta appartamento a Gessate (MI) [SY601390]
Via Antonio Gramsci, 10, 20060 Gessate MI, Italia, Gessate, MI,
Appartamento ad uso abitazione posto al piano terra e seminterrato composto al piano terra da quattro locali, cucina, disimpegno, doppi servizi con annesso giardino esclusivo, ampio vano cantina con intercapedine al piano seminterrato collegati da scala interna, e con box al piano seminterrato anche esso collegato all’appartamento.

Possibilita’ di Mutuo al 100%

Per maggiori informazioni puoi contattare il nostro referente di zona 389-9416838 / 0306392931-0306587566

SU QUESTO IMMOBILE E’ POSSIBILE:

- Mutuo al 100%
- Visita Interni
- NO Oneri Notarili
- Nessuna Ipoteca
- Agevolazione Prima Casa

Le foto pubblicate potrebbero non corrispondere all'immobile specifico, i documenti ufficiali sono visionabili in filiale.

CENTRO ASTE OFFRE I SEGUENTI SERVIZI:

1. PRIMA CONSULENZA
Appuntamento presso una delle 50 Filiali in Italia per offrire chiarimenti sulle aste ed ascoltare le tue esigenze immobiliari.

2. MEDIAZIONE CREDITIZIA
Servizio esclusivo ad alto valore aggiunto, proponendo un ventaglio di prodotti tra i più completi con studio fattibilità per la partecipazione in asta con mutuo fino al 100%

3. ASSISTENZA TECNICO - LEGALE
- Ricerca Immobili ed invio settimanale per email
- Studio della perizia e della documentazione
- Accertamenti catastali per eventuali abusi edilizi
- Accompagnamento Visita Immobile
- Disbrigo pratiche per la partecipazione
- Rappresentanza Legale il giorno della vendita
- Rilascio del decreto di trasferimento in tempi brevi
- Assistenza per il Saldo Prezzo
- Compilazione F24 per Tasse
- Disbrigo Pratiche per Eventuale Sanatoria
- Assistenza alla Consegna Immobile

Per maggiori informazioni puoi contattare il nostro referente di zona 389-9416838 / 0306392931-0306587566
Data Asta: 26-03-2026
Codice Riferimento: SY601390

Caratteristiche

Piano 2
Ascensore No
Stato Buono / Abitabile
Riscaldamento Autonomo, a radiatori, alimentato a metano

Servizi e accessori

Impianto tv singolo

Posizione

Referente

Centro Aste Brescia

Storico

Pubblicato 16 Jan 2026
Disattivato 27 Mar 2026
Sul mercato 91 giorni
ID Annuncio 125513859

Recensioni

Vedi tutte
E

Emma Margiotta

5.0

Ho trovato l’appartamento vista mare perfetto grazie a questa agenzia, sono stata davvero contenta. Sono molto preparate sulle normative e le risposte sono arrivate sempre in tempi rapidi, il che ha r...

S

Simona Viola

4.0

Se cercate un'agenzia immobiliare affidabile e professionale, non posso che consigliarla! Mi sono sentita seguita e supportata passo dopo passo nella ricerca del mio appartamento con vista mare a Bres...