Vendita Villa Nuovo Luxury

Villa

Via Guglielmo Marconi, Cadorago, Como

Prezzo
150
mq
4
Locali
3
Camere
2
Bagni

Recensisci questo Immobile

Devi essere registrato per lasciare una recensione.

Accedi

Nessuna recensione ancora. Sii il primo!

Descrizione

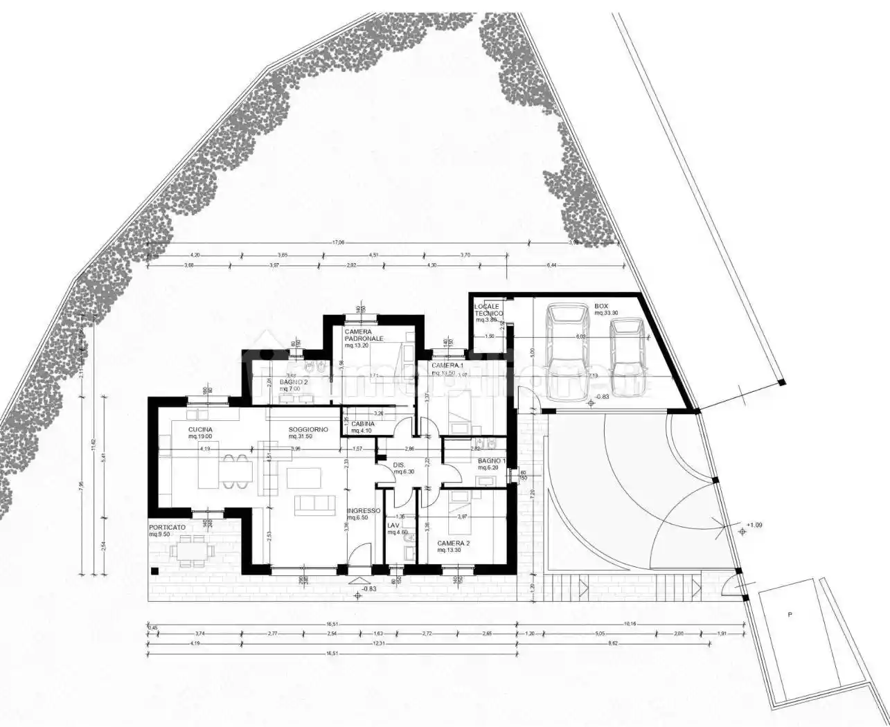
Si prevede la edificazione di una villai unifamiliare su un solo piano fuori terra, con box esterno; la copertura sarà a due falde; a soletta piana la copertura dei box. La struttura è prevista con sistema tradizionale eseguita in opera con fondazioni in c.a., murature portanti in c.a. per i box ed in laterizio di spess.30 cm con pilastri in c.a. per le abitazioni, i divisori in tavolati di cotto, la copertura sarà in legno di abete con perlinatura, il manto di copertura in cotto; i canali, i pluviali e le scossaline saranno in lamiera preverniciata grigia.
Le pareti perimetrali saranno isolate da pannelli in polistirene di 14 cm.
I locali sono dotati di vespaio aerato avente altezza non minore di 0,3 m e superfici di aerazione libera non inferiore a 1/100 della superficie del vespaio stesso, questo a protezione dall’umidità e dal gas Radon.
Gli interni saranno intonacati e rasati in gesso; le pavimentazioni della zona living ed i rivestimenti dei bagni in grès porcellanato; la zona notte avrà pavimenti in parquet; le facciate saranno in parte intonacate e colorate ai silicati in parte rivestite con pietra naturale (di Credaro o Luserna).
Sistemi di isolazione a cappotto saranno posti sulle pareti esterne, mentre materassini di isolazione saranno posti al di sotto della copertura.
Sulle coperture dei box verranno posti adeguati pannelli fotovoltaici che forniranno elettricità,
la pompa di calore collegata fornirà acqua calda, riscaldamento e raffrescamento tramite l’impianto a pavimento; sul colmo verrà posizionata la linea vita di sicurezza..

FINITURE:

Serramenti in PVC, provvisti di microventilazione, color antracite con chiusura incorporata tipo veneziana in alluminio dello stesso colore; i vetri termoisolanti ad alta prestazione; portoncino di ingresso blindato in metallo; chiusure box con porte sezionali in metallo dello stesso colore dei serramenti. Le facciate saranno in parte intonacate e colorate ai silicati, color grigio perla per le abitazioni e grigio per i box, in parte rivestite con pietra naturale (di Credaro o Luserna); la copertura sarà in tegole in cotto colore naturale. Le gronde e il tetto interno saranno con travi e perlinature a vista sbiancate. Scelta finiture interne da ampio capitolato.

ESTERNI:
Marciapiedi perimetrali ed accesso al box.
Allacciamento alle utenze.
Recinzioni
Cancello carraio automatizzato e cancello pedonale con video citofono.

Caratteristiche

Piano Piano terra
Stato Nuovo / In costruzione
Riscaldamento Autonomo
Garage 2 in box privato/box in garage, 1 in parcheggio/garage comune

Servizi e accessori

Accesso per disabili Impianto di allarme Cucina Giardino privato

Posizione

Agenzia Immobiliare

Storico

Pubblicato 31 Dec 2025
Disattivato 28 Feb 2026
Sul mercato 106 giorni
ID Annuncio 125548327