Asta Villa Nuovo

Villa all'asta Ivancich, Venezia

Ivancich, Venezia, Venezia

Prezzo
Ottimo Affare: 66% sotto la media
134
mq
5
Locali
4
Camere

Recensisci questo Immobile

Devi essere registrato per lasciare una recensione.

Accedi

Nessuna recensione ancora. Sii il primo!

Descrizione

OTTIMA OCCASIONE - ASTA IMMOBILIARE

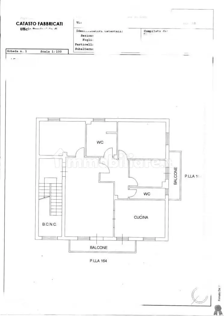
Abitazione singola con scoperto esclusivo e garage, su due piani fuori terra, terra e primo; al p. terra sono ubicati dei locali accessori di fatto adibiti ad abitazione, locale cucina, cameretta e bagno, oltre i locali disimpegni e vano scala; al p. primo soggiorno con zona cottura, bagno, due camere e una stanza, oltre a disimpegno; sul fronte est è presente un balcone dotato di vano scala (accesso esterno al piano primo); al piano terra sul fronte ovest è presente un porticato. - Ivancich

...

GLI AVVOCATI SPECIALIZZATI IN ASTE IMMOBILIARI DI SIMPLEX DOMUS GARANTISCONO UN ACQUISTO FACILE, SICURO ED ECONOMICO.

CHIAMA PER AVERE MAGGIORI INFORMAZIONI.

Il team di Avvocati di Simplex Domus è specializzato anche in acquisto in pre-asta e acquisto di crediti deteriorati NPL.

Comprare un immobile all’asta è una eccellente opportunità economica.

Ricordiamo che è possibile comprare un immobile all'asta tramite un mutuo e che tutti i clienti di Simplex Domus ricevono una consulenza mutuo gratuita.

Più di 1000 famiglie e aziende hanno scelto Simplex Domus.

Tutti gli annunci immobiliari hanno scopo pubblicitario e Simplex Domus non può garantire la totale esattezza o contemporaneità di tutte le informazioni riportate. Pertanto consigliamo di visionare tutta la documentazione del tribunale tramite un nostro Avvocato specializzato.

Grazie per aver visionato il nostro annuncio.

Caratteristiche

Piano 1°, con ascensore
Ascensore Si
Stato Buono / Abitabile
Riscaldamento Autonomo
Garage 1 in box privato/box in garage, 1 in parcheggio/garage comune

Servizi e accessori

Cancello elettrico Fibra ottica Porta blindata Videocitofono Balcone Terrazzo Impianto tv con parabola satellitare Cantina Giardino comune Infissi esterni in doppio vetro / pvc Esposizione doppia

Posizione

Zona: Chirignago (Mestre, Chirignago, Marghera, Catene)

Referente

Simplex Domus

Storico

Pubblicato 30 Dec 2025
Disattivato 28 Feb 2026
Sul mercato 97 giorni
ID Annuncio 125565253

Recensioni

Vedi tutte
G

Greta Capraro

4.7

Durante il processo mi sono sentita molto rassicurata, perché sono stata seguita passo passo e tutto è stato molto chiaro. Ho trovato l’agenzia davvero efficiente, con risposte rapide e spiegazioni se...