Indietro
Casa indipendente
Asta
Asta Casa indipendente Nuovo

Casa indipendente

Via Oliva, 19, Lusernetta, Torino

30.000 €
154
mq
5+
Locali

Recensisci questo Immobile

Devi essere registrato per lasciare una recensione.

Accedi

Nessuna recensione ancora. Sii il primo!

Descrizione

OCCASIONE: IMMOBILE ALL’ASTA!
Valore immobile € 53.120
Offerta minima € 30.000
Risparmio potenziale € 23.120
Pari al 43%

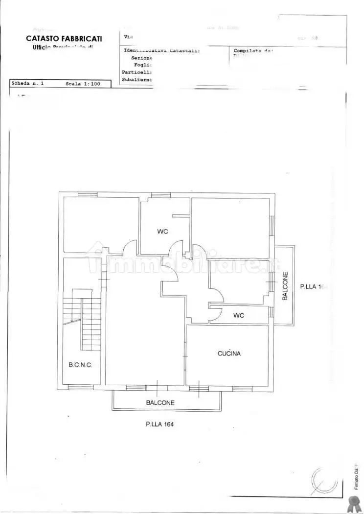
Fabbricato elevato a due piani fuori terra e destinato ad abitazione composta da: - piano terra: cucina, disimpegno, bagno, soggiorno, ripostiglio; - piano primo: n. 4 camere da letto, disimpegno, bagno e n. 2 balconi, collegati da scala interna in legno.B) Tettoia/deposito alle coerenze: abitazione e cortile pertinenziale con area verde privata.C) Terreno pertinenziale.

La procedura è monitorata dal nostro partner STUDIO///AYMAR, esperto in Aste e “Saldi & Stralci”.
Professionista qualificato grazie a:
1. i suoi 117 anni di esperienza;
2. la omologazione, per il specifico settore, ottenuta dalla CCIAA di Torino;
3. le certificazioni SAA e SOM!
Per informazioni contattare telefonicamente il nostro centralino al n. 0115683700 .
Il Broker Aste, Dott. Aymar Geom. Valentino, con i suoi 38 anni di esperienza personale, insieme ad i suoi
collaboratori, potrà approfondire e soddisfare le Vostre aspettative e quanto di Vostro interesse quali:  Se Udienza: 1) Analisi dell’immobile; 2) Analisi dello sviluppo del processo della procedura; 3)
Analisi analitica della documentazione completa; 4) Calcolo delle tempistiche; 5) Sviluppo del conto
economico; 6) Sviluppo delle scadenze finanziarie; 7) Contatti, eventuali, con banca o mediatore
creditizio per ottenere la pre-delibera necessaria per finanziare l’operazione; 8) Contatti vari con il
Tribunale, il Giudice, il Perito, il Delegato alla vendita, il Custode giudiziario; 9) Compilazione
formale richiesta visita dell’immobile; 10) Assistenza alla visita dell’immobile, secondo quanto
disposto dal Custode Giudiziario; 11) Assistenza alla decisione se partecipare o non partecipare; 12)
Redazione, conforme, della domanda per partecipare all’udienza; 13 )Assistenza per la raccolta di
quanto necessario da allegare domanda; 14) deposito della domanda, per partecipare all’udienza,
fisica o telematica; 15) assistenza in udienza: fisica, secondo quanto disposto dal Delegato alla
Vendita. Telematica: completa e assistenza all’eventuale gara telematica; 16) Aggiudicazione o non
aggiudicazione dell’immobile; 17) Assistenza post aggiudicazione per la redazione e la consegna dei
documenti necessari; 18) Verifica dei conteggi, inviati dal Delegato alla Vendita, per il saldo prezzo;
19) Assistenza per il saldo prezzo; 20) Contatti vari con il Custode Giudiziario fino alla consegna
dell’immobile; 21) consegna chiavi; 22) Contatti vari con il Delegato alla Vendita fino alla redazione
decreto di trasferimento; 23) Assistenza per il ritiro del Decreto di Trasferimento; 24) Verifica
eventuali conteggi amministratore condominiale; 25) Eventuali coordinamenti del/dei tecnici per le
regolarizzazioni urbanistiche o catastali a carico dell’aggiudicatario
 Se Saldo & Stralcio: attività di coordinamento con debitore, creditore, avvocati e Tribunale per
addivenire all’accordo cosiddetto “Contestuale”.
Attraverso le nostre convenzioni potrai inoltre, in caso di acquisto prima casa e avendo i requisiti necessari,
finanziare l’operazione fino al 100% del prezzo di acquisto.

Caratteristiche

Ascensore No
Riscaldamento Assente

Posizione

Storico

Pubblicato 01 Jan 2026
Aggiornato 15 Feb 2026
Sul mercato 51 giorni
ID Annuncio 125602857

Recensioni

Vedi tutte
P

Pina De Matteis

4.7

Voglio ringraziare di cuore per l’aiuto ricevuto, sono stata davvero fortunata a trovare questa agenzia. Mi sono trovata subito a mio agio, hanno ascoltato attentamente le mie esigenze e mi hanno guid...

V

Viviana De Marco

4.3

Le mie esperienze precedenti con agenzie erano state complicate e poco trasparenti, ma questa volta ho trovato tutto diverso. L'agenzia mi ha seguita passo passo, aiutandomi a scegliere tra un’ampia s...

D

Donatella Franca

5.0

Ho trovato l'appartamento ideale a Torino grazie all'agenzia, che ha dimostrato una conoscenza approfondita del mercato locale e grande trasparenza in ogni fase. Sono stata seguita con cura e pazienza...

M

Miriam Colella

4.7

Ho venduto la mia casa a Torino con successo, grazie a un'agenzia che mi ha seguita con molta attenzione e professionalità. Avevo bisogno di un supporto chiaro e trasparente, e ho trovato un’ampia sce...

E

Elisa Bonetti

4.0

Ricordo il momento in cui ho trovato la casa perfetta in pochi giorni grazie alla loro vasta scelta di immobili. Mi sono sentita seguita passo passo e aiutata a scegliere l’appartamento più adatto all...