Indietro
Vendita Palazzo - Edificio Nuovo

Palazzo - Edificio

LOCALITA' VRUNCISE, Magisano, Catanzaro

80.000 €
Ottimo Affare: 54% sotto la media
610
mq
5+
Locali

Recensisci questo Immobile

Devi essere registrato per lasciare una recensione.

Accedi

Nessuna recensione ancora. Sii il primo!

Descrizione

OTTIMO AFFARE, A San Pietro Magisano proponiamo in vendita intero stabile composto da 3 Piani fuori terra cosi composto:
Piano Terra: NR 2 appartamenti di 98 mq e 105 mq per un totale di 203 Mq
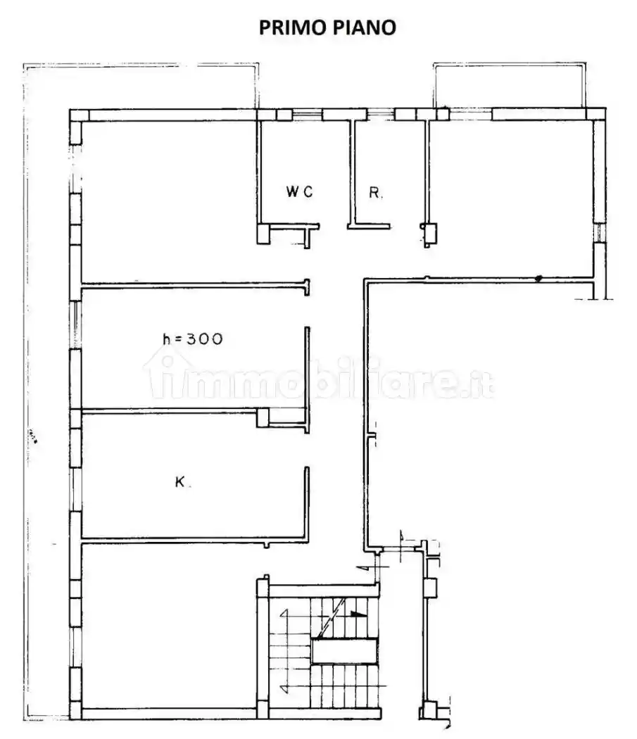
Primo Piano: NR 2 appartamento di 69 mq e 149 mq per un totale di 218 Mq
Piano Secondo: Nr 2 Appartamenti per un totale di 214 mq attualmente allo stato rustico quindi da completare internamente.
Il fabbricato per intero misura circa 640 mq, ottima opportunità di investimento.
Nelle foto sono allegate le planimetrie di ogni singolo appartamento.

Caratteristiche

Riscaldamento Assente

Storico

Pubblicato 01 Jan 2026
Aggiornato 24 Feb 2026
Sul mercato 54 giorni
ID Annuncio 125610187

Recensioni

Vedi tutte
F

Fabio Allegra

4.7

Stavo cercando una seconda casa al mare a Stalettì e avevo bisogno di qualcuno che mi seguisse passo passo. L'agenzia è stata davvero precisa nella documentazione e mi ha aiutato molto nella fase di r...

M

Maurizio Sorrentino

4.7

Appena ho incontrato il team sono stato colpito dalla loro attenzione ai dettagli e dalla sincerità nelle valutazioni. Durante la trattativa, ho trovato sempre disponibile e attento a gestire lo stres...

M

Mauro Gualtieri

4.3

Ho trovato subito l’appartamento perfetto a Stalettì, grazie alla loro professionalità e velocità nelle risposte. Sono stato molto soddisfatto del supporto continuo e dell’attenzione alle mie esigenze...