Asta Appartamento Nuovo

Appartamento

Strda Corneto, Vetralla, Viterbo

Prezzo
181
mq
5+
Locali
6
Camere

Recensisci questo Immobile

Devi essere registrato per lasciare una recensione.

Accedi

Nessuna recensione ancora. Sii il primo!

Descrizione

OTTIMA OCCASIONE - ASTA IMMOBILIARE

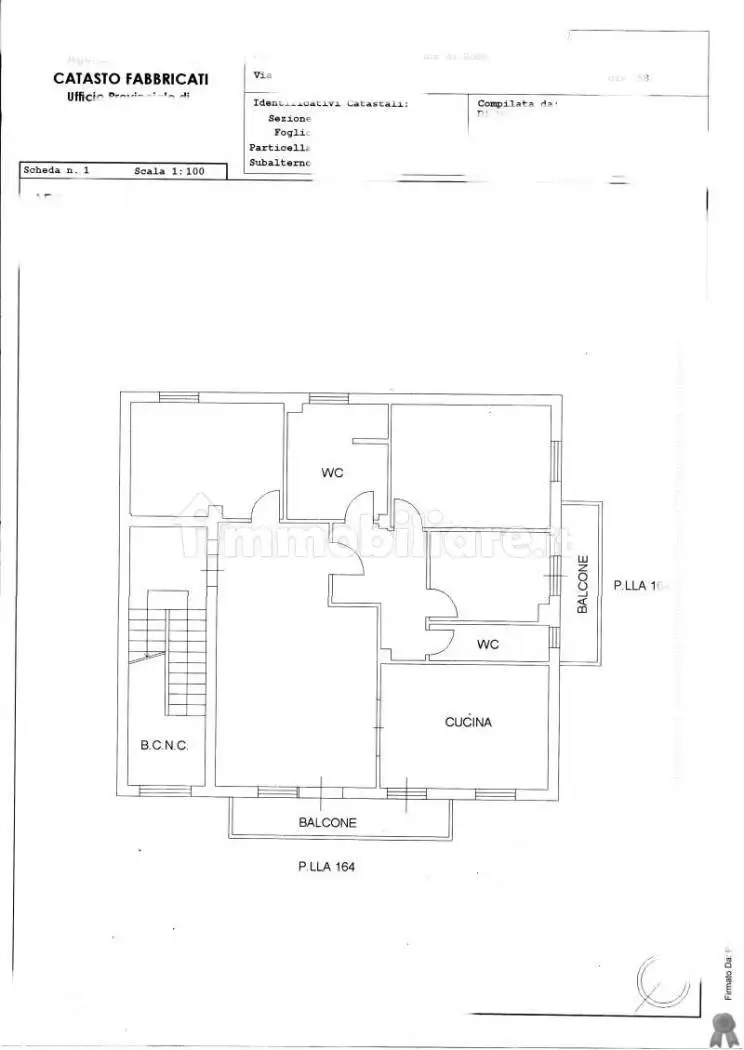
Diritti della piena proprietà 1/1 gravati da livello su appartamento con limitrofo locale accessorio e area pertinenziale comune a servizio di tutte le unità immobiliari ricadenti nel fabbricato. Accesso alla pubblica via da particella estranea alla vendita, con calcolo di costo per servitù. Conforme a autorizzazioni edilizie rilasciate, non rinvenute certificazioni impianti e certificato abitabilità. Trasferimento soggetto a imposta di registro, ipotecaria e catastale. Immobile occupato dal debitore. - Strda Corneto

GLI AVVOCATI SPECIALIZZATI IN ASTE IMMOBILIARI DI SIMPLEX DOMUS GARANTISCONO UN ACQUISTO FACILE, SICURO ED ECONOMICO.

CHIAMA PER AVERE MAGGIORI INFORMAZIONI.

Il team di Avvocati di Simplex Domus è specializzato anche in acquisto in pre-asta e acquisto di crediti deteriorati NPL.

Comprare un immobile all’asta è una eccellente opportunità economica.

Ricordiamo che è possibile comprare un immobile all'asta tramite un mutuo e che tutti i clienti di Simplex Domus ricevono una consulenza mutuo gratuita.

Più di 1000 famiglie e aziende hanno scelto Simplex Domus.

Tutti gli annunci immobiliari hanno scopo pubblicitario e Simplex Domus non può garantire la totale esattezza o contemporaneità di tutte le informazioni riportate. Pertanto consigliamo di visionare tutta la documentazione del tribunale tramite un nostro Avvocato specializzato.

Grazie per aver visionato il nostro annuncio.

Caratteristiche

Piano 1°, con ascensore
Ascensore Si
Stato Buono / Abitabile
Riscaldamento Autonomo
Garage 1 in box privato/box in garage, 1 in parcheggio/garage comune

Servizi e accessori

Videocitofono Cancello elettrico Fibra ottica Porta blindata Balcone Terrazzo Impianto tv con parabola satellitare Cantina Giardino comune Infissi esterni in doppio vetro / pvc Esposizione doppia

Posizione

Referente

Simplex Domus

Storico

Pubblicato 04 Jan 2026
Disattivato 28 Feb 2026
Sul mercato 137 giorni
ID Annuncio 125632133

Recensioni

Vedi tutte
G

Greta Capraro

4.7

Durante il processo mi sono sentita molto rassicurata, perché sono stata seguita passo passo e tutto è stato molto chiaro. Ho trovato l’agenzia davvero efficiente, con risposte rapide e spiegazioni se...