Vendita Appartamento Nuovo Luxury

Quadrilocale via degli Uffici del Vicario 33, Montecitorio, Roma

Via degli Uffici del Vicario, Roma, Roma

Prezzo
175
mq
4
Locali
2
Camere
2
Bagni

Recensisci questo Immobile

Devi essere registrato per lasciare una recensione.

Accedi

Nessuna recensione ancora. Sii il primo!

Descrizione

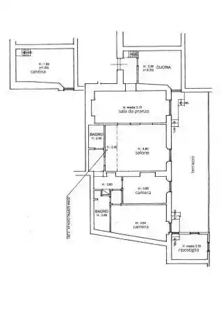
Nel cuore pulsante del centro storico di Roma, a pochi passi da Montecitorio e dalle vie più iconiche della Capitale, proponiamo in vendita un appartamento di grande charme situato in Via degli Uffici del Vicario, una delle strade più eleganti e riservate del centro. L’immobile, di circa 160 mq, si trova all’interno di un palazzo d’epoca di rappresentanza e si presenta in ottime condizioni interne. Gli spazi interni sono ampi, ben distribuiti e rifiniti con gusto: l’ingresso introduce a un luminoso salone doppio, ideale per accogliere ospiti o godersi momenti di relax in un ambiente elegante e tranquillo. La cucina è abitabile, spaziosa e funzionale, perfetta sia per la vita quotidiana che per occasioni conviviali. La zona notte è composta da due camere da letto matrimoniali, silenziose e luminose, servite da due bagni, moderni e ben rifiniti. Ogni ambiente è caratterizzato da altezze importanti, luce naturale e dettagli architettonici che conferiscono all’appartamento uno stile classico ma attuale. Il vero punto di forza dell’appartamento è il terrazzo privato di 45 mq, uno spazio raro nel centro di Roma, ideale per cene all’aperto, momenti di relax o per godersi una vista suggestiva sui tetti e le meraviglie del centro storico. Una soluzione ideale per chi desidera vivere in uno dei quartieri più affascinanti e centrali di Roma, senza rinunciare a comfort, spazio e riservatezza. Contattaci per ulteriori informazioni o per fissare un appuntamento. Questa è un’opportunità rara nel cuore di Roma.

Caratteristiche

Piano 4°, con ascensore
Ascensore Si
Stato Buono / Abitabile
Riscaldamento Autonomo

Servizi e accessori

Cancello elettrico Porta blindata Esposizione esterna Armadio a muro Balcone Terrazzo Cantina Db_fullname_external_fixtures.id_7m

Posizione

Zona: Montecitorio (Centro Storico)

Storico

Pubblicato 04 Jan 2026
Disattivato 25 Feb 2026
Sul mercato 143 giorni
ID Annuncio 125651319

Recensioni

Vedi tutte
R

Renato Masi

4.7

Voglio ringraziare di cuore per l’assistenza fantastica che ho ricevuto, sono stato davvero colpito dall’attenzione ai dettagli e dalla cura con cui sono stato seguito in ogni fase dell’investimento....

E

Elia Aiello

4.7

Una delle cose che mi ha colpito di più è stata l’attenzione ai dettagli e la cura che hanno avuto nel seguire ogni fase della vendita. Mi sono trovato molto bene perché hanno capito subito le mie esi...

S

Simone Capasso

4.7

Ho trovato un appartamento ideale per i miei figli universitari grazie a un'agenzia che ha saputo ascoltare attentamente le nostre esigenze. Sono stato seguito con attenzione e professionalità durante...

G

Guido Ferri

4.3

L'inizio di questa estate ricorderò sempre come il momento in cui ho trovato la mia casa al mare grazie alla loro pazienza e alla profonda conoscenza del mercato locale. Mi hanno seguito passo dopo pa...