Vendita Appartamento

Appartamento

Corso Vittorio Emanuele, Sciacca, Agrigento

Prezzo su richiesta
110
mq
4
Locali
2
Camere
2
Bagni

Recensisci questo Immobile

Devi essere registrato per lasciare una recensione.

Accedi

Nessuna recensione ancora. Sii il primo!

Descrizione

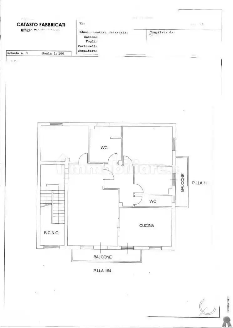
Nel cuore del centro storico di Sciacca, in C.so V. Emanuele, posto al secondo piano di una piccolissima palazzina di soli due unità abitative, si vende appartamento di 100 mq. totalmente ristrutturato con terrazza esclusiva soprastante. L' appartamento è composto da: ingresso, soggiorno con balcone nel corso principale, cucinino con sala pranzo, anch'esso con balcone sul corso, signorile bagno, piccola lavanderia con balconcino, camera da letto singola, camera da letto matrimoniale con vano spogliatoio e bagno annesso. L' appartamento sapientemente ristrutturato è stato definito con materiali di pregio, riscaldamenti autonomi, climatizzato. Nella vendita è compreso terrazzo soprastante anch'esso ristrutturato, molto panoramico, dove insiste una tettoia. Occasione per chi è alla ricerca di un appartamento signorile con terrazza nel cuore del centro storico di Sciacca. Per maggiori info, contattate al 3282821863.

Caratteristiche

Piano 2
Ascensore No
Stato Ottimo / Ristrutturato
Riscaldamento Autonomo, ad aria, alimentazione elettrica

Servizi e accessori

Esposizione esterna Impianto di allarme Impianto tv singolo Infissi esterni in doppio vetro / PVC Porta blindata

Posizione

Referente

Metroquadro.net

Storico

Pubblicato 14 Jan 2026
Aggiornato 23 Feb 2026
Sul mercato 41 giorni
ID Annuncio 125732771

Recensioni

Vedi tutte
V

Valeria Baldini

4.7

Ho trovato il terreno perfetto per costruire e sono stata seguita con grande attenzione alle mie esigenze. L'agenzia è stata molto flessibile negli orari, rendendo tutto il processo più semplice e sen...

T

Tiziana Bianco

4.3

Dopo aver provato diverse agenzie in passato, questa volta ho trovato davvero quella giusta. Mi sono sentita ascoltata e capita fin dal primo momento, e hanno seguito ogni passo con grande attenzione...

S

Salvatore Volpe

4.3

Voglio ringraziare di cuore per l’assistenza fantastica ricevuta durante la vendita della mia casa a Sciacca! Ho trovato un team attento e molto disponibile, che ha capito le mie esigenze e mi ha segu...

S

Sandra Cecchini

4.0

Quello che mi ha colpito di più è stata l’ampia scelta di immobili disponibili, è stato come entrare in un mondo di opzioni! Mi sono sentita molto seguita e ascoltata, grazie all’attenzione alle esige...