Vendita Appartamento

Appartamento

Via Palombarese, 409, Fonte Nuova, Roma

139.000 €
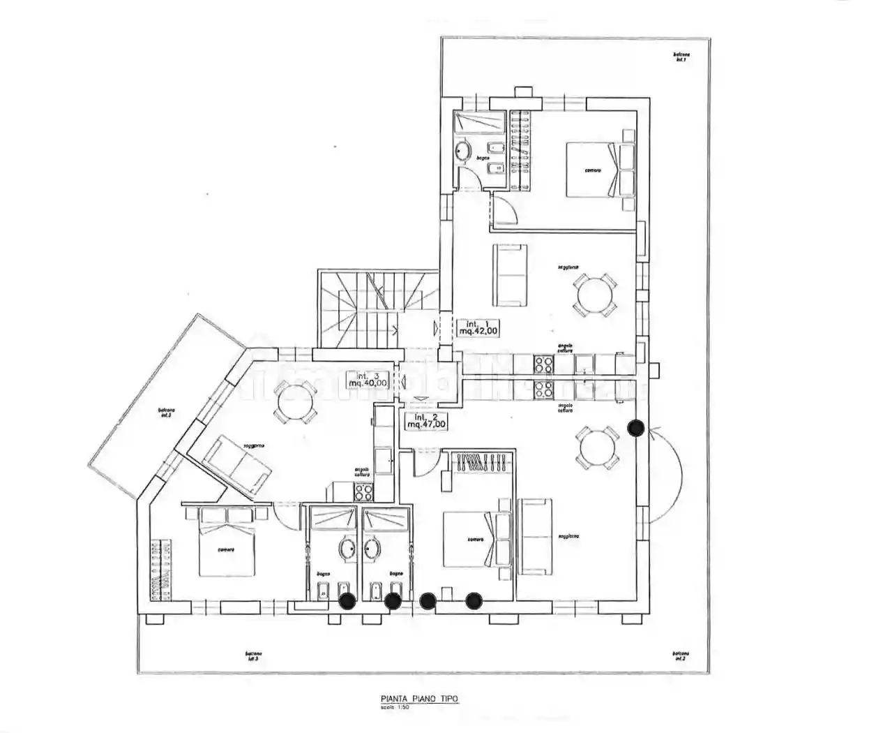
45
mq
2
Locali
1
Camere
1
Bagni

Recensisci questo Immobile

Devi essere registrato per lasciare una recensione.

Accedi

Nessuna recensione ancora. Sii il primo!

Descrizione

Fonte Nuova – Via Palombarese | Nuove Costruzioni in Classe A

In posizione strategica, direttamente su Via Palombarese, proponiamo nuove costruzioni pensate per chi desidera comfort, efficienza energetica e tutti i servizi a portata di mano.
Il progetto prevede 6 esclusivi appartamenti bilocali, ideali sia come abitazione principale sia come investimento.

Caratteristiche principali:
Classe energetica A
Bilocali moderni e funzionali
Ampio balcone perimetrale
Posto auto e posto moto inclusi
Finiture di qualità e impianti di ultima generazione

Zona ottimamente servita da attività commerciali, scuole, mezzi pubblici e collegamenti principali.

Consegna prevista: giugno 2026

Un’opportunità unica per vivere o investire in una casa nuova, efficiente e ben collegata.

Contattaci oggi stesso per maggiori informazioni, planimetrie e prenotazioni in anteprima.

Il presente annuncio ha valore puramente indicativo e non costituisce elemento contrattuale

Caratteristiche

Piano 1
Ascensore No
Stato Nuovo / In costruzione
Riscaldamento Autonomo, a radiatori, alimentato a metano

Servizi e accessori

Cancello elettrico Esposizione esterna Impianto tv singolo Infissi esterni in doppio vetro / PVC Porta blindata VideoCitofono

Posizione

Referente

Home Area s.r.l.

Storico

Pubblicato 15 Jan 2026
Aggiornato 23 Feb 2026
Sul mercato 40 giorni
ID Annuncio 125748009

Recensioni

Vedi tutte
T

Teresa Sanna

4.7

Grazie di cuore per l’aiuto prezioso. Sono stata davvero colpita dalla tempestività con cui avete risposto alle mie richieste e dalla capacità di ascolto che avete dimostrato, facendomi sentire rassic...

S

Sandra Simonetti

4.7

All'inizio ero un po' freaking out perché non sapevo bene come fare, ma sono stata subito seguita con grande cortesia e professionalità. Mi sono sentita davvero aiutata in ogni fase, sempre con sereni...

S

Serena Valli

4.7

Ho trovato la casa dei miei sogni a Fonte Nuova e sono stata davvero felice del supporto che ho ricevuto. La gestione della burocrazia è stata impeccabile e la disponibilità del team mi ha aiutata a s...

S

Sergio Pace

4.0

Vorrei ringraziare di cuore per l’ottima consulenza e l’attenzione dedicata. Ho trovato l’investimento immobiliare perfetto grazie all’ampia scelta di immobili e alla conoscenza approfondita del merca...