Vendita Villa

Villa

Via Lago Patria, 21, Giugliano in Campania, Napoli

Prezzo
Ottimo Affare: 52% sotto la media
100
mq
5+
Locali
2
Camere
2
Bagni

Recensisci questo Immobile

Devi essere registrato per lasciare una recensione.

Accedi

Nessuna recensione ancora. Sii il primo!

Descrizione

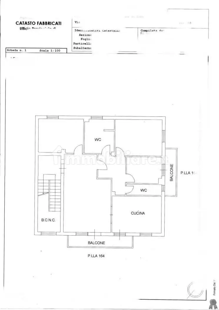
L'agenzia immobiliare CASAÉ di Varcaturo propone, in vendita, villa singola di circa 100mq commerciali, situata all’interno di un parco privato custodito, in zona centrale di Lago Patria, nei pressi della "Tomba di Scipione", a pochi passi dalle principali attività commerciali e servizi.

L’immobile si sviluppa su due livelli:
- Piano terra: ingresso in salone con camino, cucina con angolo cottura e un bagno.
- Primo piano: due camere da letto, ripostiglio e un ulteriore bagno.

Completa la proprietà uno spazio esterno pavimentato di circa 50 mq, ideale per momenti di relax, e posto auto assegnato all’interno del parco.

La soluzione si presenta attualmente locata, rendendola ideale per uso investimento, ma adatta anche come futura abitazione principale o casa vacanze.

Contesto tranquillo e riservato, a breve distanza dal lago e dalle principali vie di collegamento.

Contattaci per maggiori informazioni o per fissare un appuntamento di visita allo 081 8392666.

Caratteristiche

Ascensore No
Stato Buono / Abitabile
Riscaldamento Autonomo, a radiatori, alimentato a gpl

Servizi e accessori

Caminetto Esposizione doppia Fibra ottica Impianto tv centralizzato Infissi esterni in vetro / metallo Porta blindata

Posizione

Referente

Stella srl Affiliato Casa È

Storico

Pubblicato 12 Jan 2026
Aggiornato 31 May 2026
Sul mercato 139 giorni
ID Annuncio 125757501

Recensioni

Vedi tutte
F

Francesco De Paolis

4.7

Durante la visita dell’appartamento vista mare, ho apprezzato subito la professionalità e la pazienza dell’agente, che mi ha seguito passo dopo passo. Ho trovato ciò che cercavo grazie a un’assistenza...

R

Renata Polito

4.3

Stavo cercando un magazzino a Giugliano in Campania per la mia attività e ho trovato questa agenzia che si è dimostrata molto professionale. Mi è piaciuta la loro chiarezza nelle spiegazioni e l’atten...

F

Francesca Sorrentino

4.3

Ho trovato un’agenzia affidabile e molto disponibile. Mi hanno seguita passo dopo passo, ascoltando attentamente le mie esigenze, e sono riusciti a vendere il locale commerciale in tempi rapidi. Sono...