Indietro
Villetta a schiera
Vendita
Vendita Villetta a schiera Luxury

Villetta a schiera

Strada Loreto, 18, Moncalieri, Torino

615.000 €
138
mq
4
Locali
2
Camere
2
Bagni

Recensisci questo Immobile

Devi essere registrato per lasciare una recensione.

Accedi

Nessuna recensione ancora. Sii il primo!

Descrizione

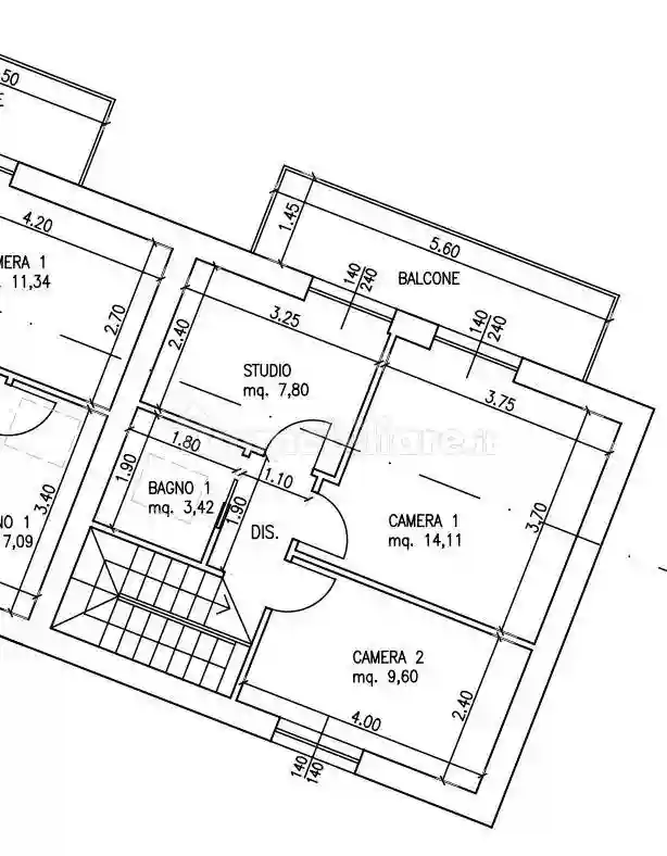
**Moncalieri - Villetta a schiera di nuova costruzione in Zona Testona** Scopri il tuo nuovo rifugio a Moncalieri, in una delle zone più tranquille e ricercate. Questa splendida villetta a schiera libera si tre lati, di circa 128 m², è la soluzione ideale per chi cerca comfort e modernità. Con una classe energetica A3, l'immobile è dotato di impianti fotovoltaici (3 kw + eventuali aggiunte e batterie), pompe di calore ed impianto VMC per il ricircolo forzato dell'aria, garantendo un notevole risparmio energetico.

L'ingresso al piano terra ti accoglie in un disimpegno che conduce a un ampio soggiorno con angolo cottura, perfetto per momenti di convivialità. Al piano terra trovi anche un bagno e un pratico ripostiglio. Il giardino privato di circa 190 mq con bellissima piscina a stile spiaggia offre uno spazio all'aperto ideale per rilassarsi o divertirsi con amici e familiari.

Salendo al piano superiore, oltre al secondo bagno, troverai 2 camere da letto di cui una con accesso al terrazzo, e un studio trasformabile anche in bellissima cabina armadio anch'essa con uscita sul terrazzo.

La possibilità di personalizzare gli spazi interni rende questa casa unica e perfettamente adattabile alle tue esigenze.

Completa la soluzione un box auto al piano terra che offre ulteriore comodità.

La consegna è prevista per metà 2027 e l'acquisto avviene direttamente dall'impresa costruttrice, SENZA SPESE DI AGENZIA. Per rendere il tuo sogno realtà, COMPRESO NEL PREZZO, avrete anche l'assistenza della nostra arredatrice che vi seguirà passo a passo con la progettazione degli spazi interni e del suo arredamento fornendovi un rendering 3D della casa arreda ed ultimata a vostro gusto, inoltre vi offriremo un voucher con lo sconto del 30% per l'acquisto dei mobili!

Contattaci per maggiori informazioni e per prenotare una visita!

Caratteristiche

Ascensore No
Stato Nuovo / In costruzione
Riscaldamento Autonomo, a pavimento, alimentato a fotovoltaico

Servizi e accessori

Cancello elettrico Esposizione doppia Fibra ottica Impianto tv singolo Infissi esterni in doppio vetro / PVC Piscina Porta blindata VideoCitofono

Posizione

Zona: Testona - San Michele (Testona, San Michele, Moriondo, Maiole)

Referente

Costruzioni Giorgia srl

Storico

Pubblicato 13 Jan 2026
Aggiornato 18 Feb 2026
Sul mercato 37 giorni
ID Annuncio 125796805

Recensioni

Vedi tutte
C

Camilla Loi

4.3

Se state cercando un'agenzia immobiliare a Torino, vi consiglio di rivolgervi a questa: mi sono trovata davvero bene. Sono stata seguita passo passo, hanno dimostrato grande competenza nella trattativ...

V

Valeria De Santis

4.3

Stavo cercando di vendere la mia casa a Torino dopo un divorzio e ho trovato un’agenzia davvero fantastica. Mi ha seguita passo passo, è stata sempre puntuale negli appuntamenti e ha avuto un’ampia sc...

L

Liliana Marchini

4.7

Ho trovato il terreno perfetto per costruire il mio nuovo progetto, e sono stata accompagnata con grande pazienza e professionalità in ogni fase del processo. L'agenzia si è dimostrata seria e disponi...

V

Viviana De Falco

4.3

Rispetto alle altre esperienze che ho avuto, questa agenzia si è distinta per efficienza e professionalità. Sono stata seguita passo passo nella gestione burocratica, che si sono rivelate veloci e sen...