Vendita Villa Luxury

Villa

Via Paolo Valbonesi, 21, Forlì, Forli Cesena

Prezzo
450
mq
5+
Locali
4
Camere
3+
Bagni

Recensisci questo Immobile

Devi essere registrato per lasciare una recensione.

Accedi

Nessuna recensione ancora. Sii il primo!

Descrizione

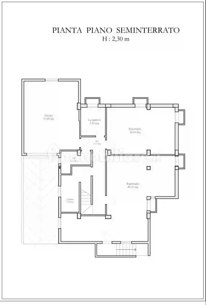
Proprietà di prestigio – Villa indipendente su lotto privato di circa 900 mq, con riqualificazione energetica e consegna in classe A4

Elegante villa singola realizzata nel 2008, caratterizzata da solida qualità costruttiva, ampi spazi abitativi e un’impostazione architettonica di alto livello, inserita in contesto residenziale riservato e di pregio.

La proprietà si distingue per il portico perimetrale sui quattro lati, elemento architettonico di valore che valorizza la vivibilità degli ambienti in armonia con il giardino privato di circa 900 mq, ampio, riservato e ben proporzionato.

Il giardino rappresenta un plus raro in ambito urbano e si presta anche all’inserimento di una piscina, incrementando ulteriormente il comfort abitativo e il livello complessivo della residenza.

Il lotto, di generose dimensioni, presenta edificabilità residua, che consente un eventuale ampliamento della superficie esistente e offre interessanti prospettive di personalizzazione e valorizzazione patrimoniale nel tempo.

L’ampia autorimessa, attualmente per due auto, è ampliabile fino a quattro posti auto; il lotto, con affaccio su due vie, consente inoltre la potenziale realizzazione di un secondo accesso carrabile.

L’immobile sarà oggetto di riqualificazione completa a cura della proprietà (società immobiliare costruttrice), con consegna prevista ristrutturata e in classe energetica A4, in linea con i più moderni standard di efficienza energetica, sostenibilità e qualità abitativa.

Soluzione ideale per chi ricerca una residenza indipendente di alto profilo, già costruita, con elevata privacy, ampi spazi, possibilità di sviluppo futuro e caratteristiche coerenti con un’abitazione di prestigio.

Caratteristiche

Stato Ottimo / Ristrutturato
Riscaldamento Autonomo

Servizi e accessori

Cucina Esposizione nord, sud, est, ovest Impianto di allarme Infissi esterni in doppio vetro / legno

Posizione

Zona: Spazzoli - Medaglie D'Oro (Spazzoli, Medaglie D'Oro, Parco della Resistenza, Stadio)

Agenzia Immobiliare

Storico

Pubblicato 15 Jan 2026
Disattivato 12 Mar 2026
Sul mercato 126 giorni
ID Annuncio 125824983