Vendita Appartamento

Appartamento

Gragnano Trebbiense, Piacenza

79.000 €
Buon Prezzo: 19% sotto la media
70
mq
3
Locali
2
Camere
1
Bagni

Recensisci questo Immobile

Devi essere registrato per lasciare una recensione.

Accedi

Nessuna recensione ancora. Sii il primo!

Descrizione

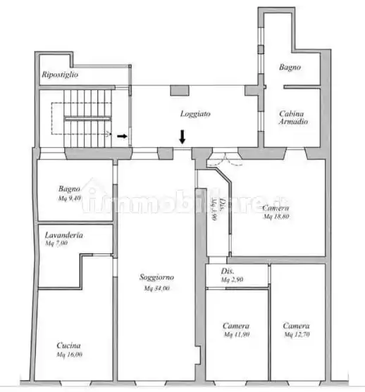
GRAGNANO VIC.ZE - APP.TO PIANO PRIMO ED ULTIMO CON INGRESSO INDIPENDENTE composto da soggiorno con balcone, cucina abitabile, due camere da letto, bagno. Parzialmente arredato. PRONTA CONSEGNA. Ottime finiture: cartongesso con faretti. SENZA SPESE CONDOMINIALI.

Per qualsiasi ulteriore informazione e per visite in merito a questo annuncio potete contattarci ai riferimenti sotto indicati:
L'IMMOBILIARISTA tel. 0523.579856, cell. 334.9700529, email: info@immobiliarista.com
Ci trovate a Piacenza (PC) in via Conciliazione n. 58, l'ufficio è posto al piano 1° (si accede dalla galleria negozi Zeppi, palazzina accanto l'Esselunga).
SI RICEVE PREVIO APPUNTAMENTO
Classe Energetica: E

Caratteristiche

Piano 1
Ascensore No
Stato Ottimo / Ristrutturato
Riscaldamento Autonomo

Posizione

Referente

L'Immobiliarista di Castignoli Massimo S.A.S.

Storico

Pubblicato 15 Jan 2026
Aggiornato 24 Feb 2026
Sul mercato 41 giorni
ID Annuncio 125838411

Recensioni

Vedi tutte
F

Francesca Romani

5.0

Stavo cercando una prima casa a Piacenza e ho trovato l'agenzia molto affidabile e disponibile. Mi sono sentita seguita passo dopo passo, senza stress, e hanno saputo ascoltare le mie esigenze. Sono d...

E

Elena Pellicano

4.3

Quel dettaglio che mi ha colpito di più è stata la cura con cui hanno seguito ogni passo della mia scelta, rendendo tutto molto semplice. Dopo anni di affitti, finalmente ho trovato la casa perfetta g...

C

Cinzia Del Vecchio

4.3

Apprezzavo molto la cura con cui hanno seguito ogni dettaglio, dal trovare l’appartamento giusto alle pratiche burocratiche. Sono stata colpita dalla loro professionalità e disponibilità, hanno reso t...

C

Clara Della Valle

4.3

Ho trovato un bilocale perfetto a Piacenza grazie a questa agenzia. Mi sono sentita seguita passo dopo passo, con grande professionalità e chiarezza nelle spiegazioni. È stato un percorso semplice e s...