Vendita Appartamento

Appartamento

Via Seriola, Ospitaletto, Brescia

350.000 €
147
mq
4
Locali
3
Camere
2
Bagni

Recensisci questo Immobile

Devi essere registrato per lasciare una recensione.

Accedi

Nessuna recensione ancora. Sii il primo!

Descrizione

OSPITALETTO
**Vendesi Appartamento Nuova costruzione in Zona Residenziale! **

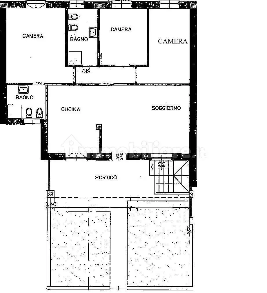
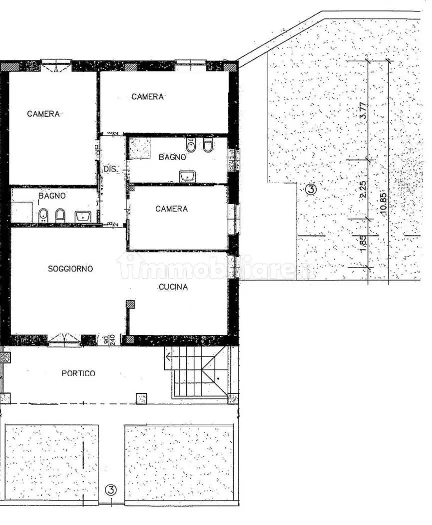
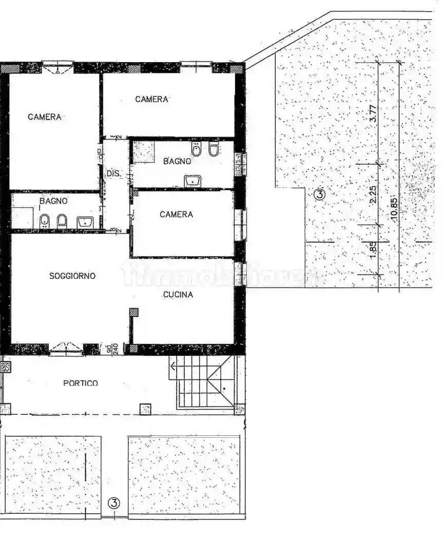
Se stai cercando un’abitazione che unisca comfort, qualità e modernità, questo appartamento è la soluzione perfetta per te! Situato in un esclusivo complesso in fase di realizzazione, questo immobile al piano terra ti accoglie con un ingresso indipendente e un giardino privato, ideale per goderti momenti di relax all’aria aperta. Immagina di trascorrere le tue serate sul delizioso portico vivibile, perfetto per cene estive o semplicemente per leggere un buon libro.

L'interno dell'appartamento è un abbraccio di spazio e luminosità: troverai un ampio soggiorno che si apre sulla cucina abitabile, creando un’atmosfera accogliente e conviviale. La disposizione funzionale include tre camere, un disimpegno e due bagni per garantirti tutto il comfort di cui hai bisogno.

Ma non finisce qui! Avrai accesso esclusivo al piano interrato dotato di lavanderia, dove ti attende una spaziosa autorimessa di 56 mq. E se desideri uno spazio extra, non preoccuparti: hai la possibilità di trasformarne una parte in cantina o taverna, per creare l’ambiente che hai sempre sognato!

Questo appartamento è dotato di tutti i comfort moderni: dal riscaldamento a pavimento tramite pompa di calore alla ventilazione meccanica forzata, fino all’impianto fotovoltaico da 4 kW. E non dimentichiamo la predisposizione per l'aria condizionata. Le finiture sono di alto livello e l’immobile è classificato in classe energetica A4, garantendoti efficienza e sostenibilità.

Cosa aspetti? Questa è l’occasione che stavi aspettando! Inoltre, hai la fantastica possibilità di personalizzare le finiture a tuo gusto, rendendo questa casa veramente unica e tua.

Contattaci per maggiori informazioni e per prenotare una visita! Non lasciarti sfuggire il tuo sogno immobiliare!
EURO 350.000,00

Caratteristiche

Piano T
Ascensore No
Stato Nuovo / In costruzione
Riscaldamento Autonomo, a pavimento

Servizi e accessori

Cancello elettrico Esposizione interna Fibra ottica Impianto tv singolo Infissi esterni in doppio vetro / legno Porta blindata

Posizione

Referente

Castegnato Case Di Binetti Nicole

Storico

Pubblicato 16 Jan 2026
Aggiornato 25 Feb 2026
Sul mercato 40 giorni
ID Annuncio 125869911

Recensioni

Vedi tutte
R

Romeo Giannone

4.7

Se state cercando un’agenzia immobiliare affidabile, vi consiglio di rivolgervi a questa. Ho trovato un team disponibile e professionale che mi ha seguito passo passo nella vendita del mio locale comm...

E

Elia Giannini

4.0

Sono stato molto soddisfatto del risultato: sono riuscito a vendere casa rapidamente e senza stress, grazie alla guida dell’agenzia. Mi hanno seguito passo passo durante le visite, accompagnandomi con...