Vendita Appartamento

Appartamento

Baronissi, Salerno

Prezzo
96
mq
3
Locali
2
Camere
2
Bagni

Recensisci questo Immobile

Devi essere registrato per lasciare una recensione.

Accedi

Nessuna recensione ancora. Sii il primo!

Descrizione

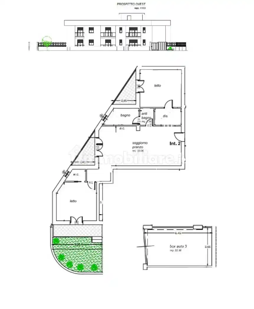
GUACCI IMMOBILIARE propone in vendita , nel cuore di Sava di Baronissi, all’interno di un moderno complesso residenziale di nuova costruzione, proponiamo appartamento esclusivo in cantiere con lavori in fase avanzata.

✨ Soluzione ideale per chi cerca comfort, qualità e ampi spazi esterni.

L’appartamento è composto da soggiorno/pranzo di 28mq, due camere da letto, due bagni, disimpegno e ampia balconata.

Caratteristiche

Piano 1
Ascensore Si
Stato Nuovo / In costruzione

Servizi e accessori

Cancello elettrico Fibra ottica Porta blindata VideoCitofono

Referente

Agenzia Immobiliare di Guacci Anthony

Storico

Pubblicato 18 Mar 2026
Disattivato 05 Apr 2026
Sul mercato 69 giorni
ID Annuncio 125872115

Recensioni

Vedi tutte
A

Aurora Padovani

4.7

Ho trovato un’agenzia immobiliare fantastica a Baronissi! Sono stata seguita con molta attenzione e professionalità, e mi hanno spiegato tutto con grande chiarezza, rendendo il processo di vendita mol...

E

Elisa Traverso

4.7

Appena ho visto la loro attenzione ai dettagli durante la visita, ho capito che potevo affidarmi a professionisti seri. Sono stata seguita passo dopo passo, dalla ricerca alla firma, con molta pratici...