Vendita Appartamento

Appartamento

Via emilia , 13 13, Rubano, Padova

157.500 €
Ottimo Affare: 54% sotto la media
184
mq
5+
Locali
2
Bagni

Recensisci questo Immobile

Devi essere registrato per lasciare una recensione.

Accedi

Nessuna recensione ancora. Sii il primo!

Descrizione

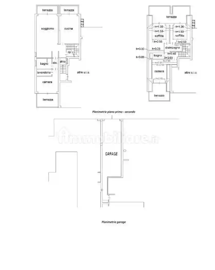
Appartamento sviluppato su due livelli, composto al primo piano da: ingresso, soggiorno e cucina entrambi con accesso alla terrazza, bagno finestrato, disimpegno e camera con terrazza;
al piano secondo (sottotetto) da:
due locali soffitta con accesso su unico terrazzo, disimpegno, bagno e camera con terrazza;
garage al piano semi interrato.
L'immobile viene venduto tramite asta giudiziaria.
Il prezzo indicato si riferisce all'offerta minima accettata per la partecipazione.
MetroQuadro fornisce un servizio di assistenza al fine di rendere più facile e sicuro l'acquisto di un immobile proveniente dal mercato giudiziario: analisi preventiva, conteggio costi accessori ed occulti, assistenza in tutte le fasi della procedura, compresa la liberazione dell'immobile se occupato.
L'acquisto dell'immobile può essere totalmente finanziato tramite mutuo.
Consulenza gratuita per un possibile mutuo con un nostro consulente del credito.

Caratteristiche

Piano 1
Ascensore No
Stato Buono / Abitabile

Posizione

Referente

MetroQuadro Soluzioni Immobiliari

Storico

Pubblicato 14 Jan 2026
Aggiornato 24 Feb 2026
Sul mercato 42 giorni
ID Annuncio 125877333

Recensioni

Vedi tutte
S

Simone Olivetti

5.0

Appena arrivato a Treviso, sono rimasto colpito dalla precisione con cui mi hanno seguito in ogni fase. Mi hanno aiutato a trovare un affitto perfetto, sempre trasparenti e onesti nelle valutazioni. È...

A

Arturo Mereu

4.3

Ho scelto questa agenzia perché mi ha davvero colpito l’attenzione alle esigenze della mia famiglia e la disponibilità del personale. Mi sono sentito seguito passo dopo passo, con tanta pazienza e gen...

O

Oreste Pagano

4.3

Apprezzavo molto la puntualità con cui sono stati fissati gli appuntamenti e l’onestà nelle valutazioni del mio appartamento. Sono stato colpito dalla loro capacità di seguire ogni fase della vendita...

M

Marco Sabbatini

4.0

Durante il processo mi sono sentito subito a mio agio, grazie alla sincerità e trasparenza nelle valutazioni che mi hanno dato. L'agenzia si è mostrata molto flessibile sugli orari, facilitando ogni i...