Vendita Appartamento

Appartamento

Via Sandro Pertini, Nuoro, Nuoro

Prezzo su richiesta
86
mq
3
Locali
2
Camere
2
Bagni

Recensisci questo Immobile

Devi essere registrato per lasciare una recensione.

Accedi

Nessuna recensione ancora. Sii il primo!

Descrizione

Residenza Via Pertini Piano Terra

Edificio condominiale pluripiano composto da 12 unità immobiliari residenziali in costruzione. Nuoro Via Pertini.

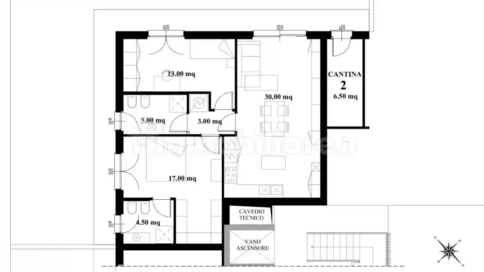
Appartamento n.2 e pertinenze

Situato al piano terra, ha una superficie lorda di 86 mq, una superficie netta calpestabile di 72 mq e sarà trasferito insieme a una cantina di 6.50 mq e un giardino esclusivo di 125 mq esteso sui due lati di proprietà che dispone di un’area di parcheggio riservata. L’accesso all’appartamento, tramite apertura scorrevole, è posto all’interno del giardino, separato dagli spazi comuni.

Gli ambienti sono in ordine descritti come segue:

Ingresso verso ampia zona giorno-pranzo-angolo cottura, disimpegno con spazio destinato alla lavanderia, due camere da letto; matrimoniale, singola e due bagni.

Prestazioni energetiche e comfort

Gli impianti di riscaldamento e condizionamento saranno autonomi.

L’intero stabile verrà servito di idonea infrastruttura atta a garantire la trasmissione di fibra ottica di ultima generazione, (FTTH) “Fiber To The Home”, “fibra fino a casa”.

L’Attestato di Prestazione Energetica (A.P.E.) ricadrà in classe A, trattandosi di edificio categoria NZEB “Nearly Zero Energy Building”, “Edificio a energia quasi zero”.

Data di consegna dei lavori

La data di consegna è stimata per Novembre del 2026.

Prezzo di vendita

Prezzo di vendita su richiesta.

Allegati e rappresentazioni grafiche

Planimetrie della proprietà, con rispettivo orientamento nello spazio e l’intero progetto, renderizzazioni tridimensionali.

*gli arredi hanno scopo rappresentativo, non sono inclusi nella vendita*

*Presentazione e anteprime non oggetto contrattuale, soggette a cambiamenti*

Caratteristiche

Piano T
Stato Nuovo / In costruzione

Posizione

Referente

Agenzia Immobiliare Dui

Storico

Pubblicato 21 Jan 2026
Aggiornato 24 Feb 2026
Sul mercato 35 giorni
ID Annuncio 125885453

Recensioni

Vedi tutte
E

Emanuela Tedesco

5.0

Ricordo ancora quel momento in cui ho trovato il terreno perfetto per costruire, grazie a un team davvero competente e sempre trasparente. Mi sono sentita seguita passo passo in ogni fase della tratta...

D

Diana Quattrocchi

4.7

Ho trovato la casa perfetta vicino ai miei genitori grazie a un'agenzia immobiliare molto competente e ben radicata nel mercato di Nuoro. Mi sono sentita seguita con attenzione e professionalità, senz...

E

Emanuele Timpano

4.7

Ho scelto questa agenzia perché cercavo qualcuno che capisse davvero le mie esigenze e potesse aiutarmi a trovare casa vicino ai miei genitori. Mi sono trovato molto bene grazie alla loro gestione del...

M

Manuel Laino

4.0

Ho scelto questa agenzia perché mi ha colpito la loro professionalità e la puntualità negli appuntamenti. Sono stato molto soddisfatto del modo in cui mi hanno seguito passo passo nella ricerca del te...