Indietro
Vendita Rustico - Casale

Rustico - Casale

Via Cannetaccia, Cave, Roma

Prezzo
65
mq
3
Locali
2
Camere
1
Bagni

Recensisci questo Immobile

Devi essere registrato per lasciare una recensione.

Accedi

Nessuna recensione ancora. Sii il primo!

Descrizione

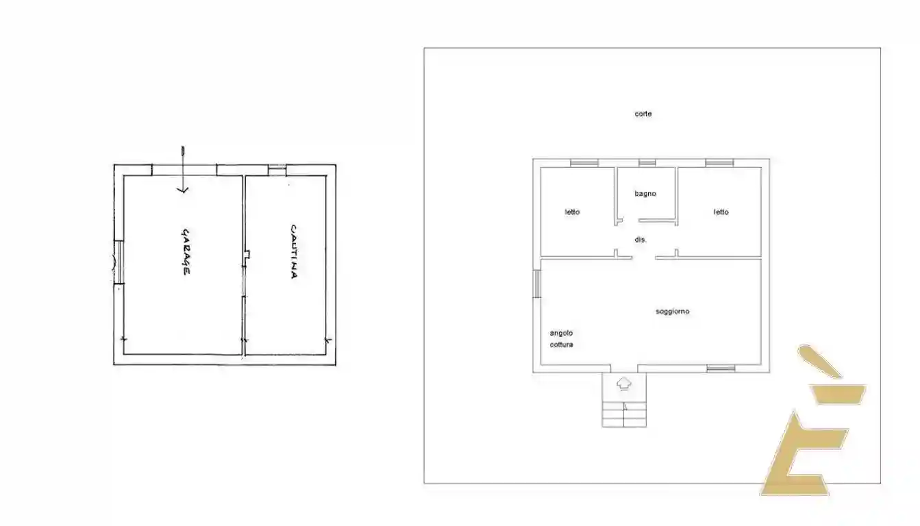
CAVE – VIA DELL’AGRICOLTURA – LOCALITÀ CANNETACCIA: Proponiamo in vendita un rustico su due livelli con regolare concessione rilasciata dal Comune di Cave situato su un lotto di terreno di 1600 mq.
Il rustico, che si presenta attualmente in stato grezzo, è composto al piano rialzato da un ampio soggiorno con angolo cottura dotato di camino, un disimpegno che conduce alle due camere da letto e al bagno con finestra.
Al piano terra troviamo un comodo garage con accesso diretto ad un’ampia cantina, ottima per lo stoccaggio di attrezzature.
L'immobile offre l'occasione di personalizzare gli spazi secondo i propri gusti e necessità, permettendo di creare ambienti unici e su misura, mentre l’ampio terreno esterno offre la possibilità di realizzare giardini, aree relax o vivai.
Questa è un'opportunità imperdibile per chi desidera realizzare la propria casa dei sogni in un contesto tranquillo e immerso nella natura.
Ecco cinque motivi per acquistare l’immobile:
- Ampio terreno
- Silenzioso
- Possibilità di personalizzazione
- A pochi minuti dai servizi essenziali
- Immerso nel verde
Per info ed appuntamenti, potete contattarci al numero 06.74.78.341, oppure potete inviare un SMS o Whatsapp al numero 393.81.51.312

Caratteristiche

Piano R
Ascensore No
Stato Da ristrutturare

Servizi e accessori

Caminetto

Posizione

Referente

Immobiliare Tuscolana srl

Storico

Pubblicato 15 Jan 2026
Disattivato 31 May 2026
Sul mercato 135 giorni
ID Annuncio 125907981

Recensioni

Vedi tutte
I

Italo Ferrante

4.7

Ho trovato finalmente la casa dei miei sogni grazie a un team che mi ha seguito passo dopo passo con grande professionalità. La rapidità con cui sono stato accompagnato nelle visite e la cura nei dett...

V

Vanessa Morrone

4.7

Durante il processo di ricerca mi sono sentita subito a mio agio grazie alla professionalità dell'agenzia. Sono stata molto soddisfatta per la precisione nella gestione della documentazione e l’ampia...

C

Carlotta Ferrari

4.3

Durante tutto il processo mi sono sentita davvero tranquilla e supportata, perché hanno seguito ogni passo con grande professionalità. Mi sono trovata subito a mio agio, grazie alla loro conoscenza ap...

L

Letizia Delfino

4.3

Ho trovato l'appartamento perfetto per i miei figli universitari grazie a un'agenzia immobiliare davvero eccezionale. Mi sono sentita seguita e ascoltata in ogni fase, con grande professionalità e att...

I

Irene Spada

4.3

Fin dal primo incontro, mi ha colpito la disponibilità e l’attenzione ai dettagli dell’agenzia. Mi sono sentita seguita passo passo, con grande professionalità e affidabilità, nella ricerca dell’uffic...