Vendita Rustico - Casale

Rustico - Casale

Via G. Milicia, San Pier Niceto, Messina

Prezzo
Ottimo Affare: 69% sotto la media
111
mq

Recensisci questo Immobile

Devi essere registrato per lasciare una recensione.

Accedi

Nessuna recensione ancora. Sii il primo!

Descrizione

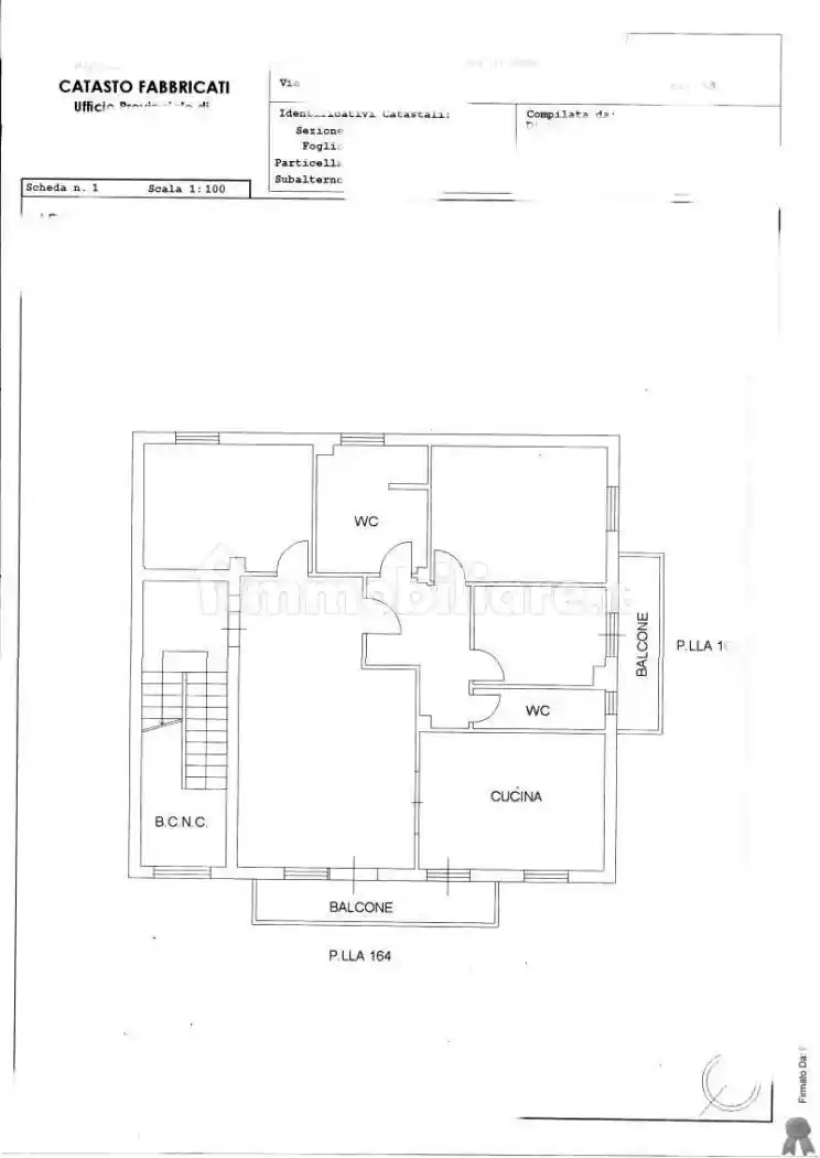
A San Pier Niceto, in via Milicia, proponiamo in vendita un rudere disposto su due livelli: piano terra e primo piano. L’immobile, totalmente da ristrutturare, rappresenta un’ottima opportunità per chi desidera realizzare una casa personalizzata in un contesto tranquillo e suggestivo.
Gode di una vista mozzafiato sul paesaggio circostante, ideale per chi ama la quiete e la natura. Completa la proprietà un piccolo spazio esterno vivibile, perfetto per momenti di relax all’aperto.

La soluzione si presta a diventare la propria abitazione principale o una casa vacanze.
Contattaci per maggiori informazioni o per fissare un appuntamento!

Caratteristiche

Ascensore No
Stato Da ristrutturare

Posizione

Referente

NextCasa

Storico

Pubblicato 22 Jan 2026
Aggiornato 06 Apr 2026
Sul mercato 75 giorni
ID Annuncio 125929395

Recensioni

Vedi tutte
C

Claudia Sabatini

5.0

Ho trovato il bilocale perfetto senza stress grazie a questa agenzia. Mi sono sempre trovata bene con la loro puntualità e cortesia agli appuntamenti, sembrava davvero che volessero aiutarmi a trovare...

E

Edoardo Marino

4.7

Ho trovato l’agenzia molto professionale e attenta alle mie esigenze. Mi hanno seguito passo dopo passo, aiutandomi a scegliere il terreno giusto per costruire senza stress. Consiglio vivamente a chi...

D

Donatella Franca

4.7

Quando ho incontrato l'agente, sono stata subito colpita dalla sua cortesia e dalla trasparenza con cui mi ha seguito in ogni fase della vendita del mio appartamento di famiglia. Mi sono sentita davve...

L

Luisa Costa

4.3

Cercavo un appartamento vicino all’università per i miei figli, e sono stata davvero soddisfatta dell’assistenza ricevuta. L’agenzia è stata molto tempestiva nelle risposte e mi ha accompagnato con at...

M

Margherita De Simone

4.0

La mia scelta di rivolgermi a questa agenzia è stata dettata dalla loro attenzione ai dettagli e dalla cortesia con cui sono stata seguita durante tutto il percorso. Mi hanno aiutata a trovare un appa...